QQ登录

只需一步,快速开始

登录 | 注册 | 找回密码

三维网

 找回密码
 注册

QQ登录

只需一步,快速开始

展开

通知     

查看: 8310|回复: 32
收起左侧

[求助] 韩国斗山连杆定位销孔径公差0.012如何控制

[复制链接]
发表于 2012-5-20 07:14:16 | 显示全部楼层 |阅读模式 来自: 中国江苏扬州

马上注册,结识高手,享用更多资源,轻松玩转三维网社区。

您需要 登录 才可以下载或查看,没有帐号?注册

x
公司接到韩国斗山的一款连杆。1 D! o( C, O- @& S, ?$ O" N$ s9 O
定位销孔径公差为0.012,加工中心加工中不容易控制此孔径,我们目前使用的是铰刀。- j# T/ u: ^  I# O
韩国质量检测人员只认可数据,不认可塞规,
: X  \  ?, [. ~" m# p我们测量时,用内测千分尺测量数据比三坐标测量数据大0.01,好为难。& a( N) [7 {: H% a$ z, `) y
一般情况下,韩国仅认可三坐标的数据,可是,我们发现,三坐标测量连杆小头孔孔径、定位孔孔径时,并不准确。- P0 G- H5 d0 c1 H: {
1 A2 T/ W# d/ n
像大家求助,1 用什么刀具什么方法才能够保证0.012的孔径公差。
& X* r4 S/ h' i7 }$ ^8 E8 p8 m( V6 d8 i
                 2 测量使用什么量具更好。
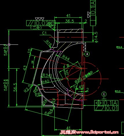
斗山定位销.jpg
发表于 2012-5-20 09:29:29 | 显示全部楼层 来自: 中国上海
用内径气动仪,

评分

参与人数 1三维币 +2 收起 理由
渔樵 + 2 应助

查看全部评分

发表于 2012-5-20 09:49:30 | 显示全部楼层 来自: 中国广东东莞
铰刀加工公差0.012的孔应该比较难。你的孔距公差是多少?如果是加工精度达不到,可否用慢走丝线切割?你的图纸不全,仅供参考。韩国仅认可三坐标的数据是因为千分尺只能测到0.01mm。

评分

参与人数 1三维币 +2 收起 理由
渔樵 + 2 技术讨论

查看全部评分

 楼主| 发表于 2012-5-20 16:07:27 | 显示全部楼层 来自: 中国江苏扬州
本帖最后由 洪亮zhang 于 2012-5-20 16:15 编辑
/ ?; j2 c8 s  f: g7 e) ^$ i7 ]
铰刀加工公差0.012的孔应该比较难。你的孔距公差是多少?如果是加工精度达不到,可否用慢走丝线切割?你的图纸不全,仅供参考。韩国仅认可三坐标的数据是因为千分尺只能测到0.01mm。
" j" i9 A' B9 C  r3 _% X+ q4 itangcarlos3d 发表于 2012-5-20 09:49 http://www.3dportal.cn/discuz/images/common/back.gif
我们使用的是微米千分尺,是进口的。4 x- _3 F$ c: w

. O9 J+ t3 p( z5 }: k图纸是连杆盖,它需要同连杆杆身的两个定位销配合。$ ^! e, z7 D2 U- }: C) L
8 Z6 b. U8 g2 K& y
慢走丝,我们使用的是加工中心,希望是在现有的加工中心解决问题。
 楼主| 发表于 2012-5-20 16:10:05 | 显示全部楼层 来自: 中国江苏扬州
今天上午,用三坐标检测了内径千分尺的标准环规,三坐标数据比标准环规小了0.011
发表于 2012-5-20 16:29:42 | 显示全部楼层 来自: 中国广东东莞
今天上午,用三坐标检测了内径千分尺的标准环规,三坐标数据比标准环规小了0.011" z" y& _5 n, i4 u' n2 |
洪亮zhang 发表于 2012-5-20 16:10 http://www.3dportal.cn/discuz/images/common/back.gif
: D; a. B3 L4 d# k% ~# M

% K# I+ P. Z. I, }# ?; m那就是三坐标测量机可能有问题。测一测三坐标测量机所带的标准块看看误差有多少?
 楼主| 发表于 2012-5-20 17:29:10 | 显示全部楼层 来自: 中国江苏扬州
本帖最后由 洪亮zhang 于 2012-5-20 17:30 编辑
% N2 p; i) E$ B5 H$ e
那就是三坐标测量机可能有问题。测一测三坐标测量机所带的标准块看看误差有多少?' [8 ]. V7 t' i, V2 l/ q& D/ F! J3 m1 f
tangcarlos3d 发表于 2012-5-20 16:29 http://www.3dportal.cn/discuz/images/common/back.gif
上个月,海克斯康刚刚对本公司的三坐标进行了检测,是合格的
, @* `0 S+ C9 e5 \. T( ~0 A) O& D1 u& W/ d1 d6 `' N. j
我们发现,三坐标对小孔的检测并不可靠。
8 A  f9 \! m! X& e
. \2 E5 ?$ r4 d' t) |: v/ ?. v, ^每天,都会按照要求对小球进行检测的。
发表于 2012-5-20 17:36:29 | 显示全部楼层 来自: 中国广东东莞
本帖最后由 tangcarlos3d 于 2012-5-20 17:37 编辑 0 T$ z" r, q  f; P
' q% e5 z: @+ w+ a, u- x
不过测量小孔是用的探针测量杆直径非常小,容易变形。估计是探针测量杆变形引起的读数误差(示值比实际值大)造成的。
 楼主| 发表于 2012-5-20 17:40:59 | 显示全部楼层 来自: 中国江苏扬州
不过测量小孔是用的探针测量杆直径非常小,容易变形。估计是探针测量杆变形引起的读数误差(示值比实际值大)造成的。8 s- E$ }' e% o; d* |0 a* L: C* W" }
tangcarlos3d 发表于 2012-5-20 17:36 http://www.3dportal.cn/discuz/images/common/back.gif
我们的三坐标数据比标准环规小了0.011,不是变大。
发表于 2012-5-20 21:19:10 | 显示全部楼层 来自: 中国山东青岛
6毫米孔 1丝2公差。绞刀应该可以控制。关键是测量,三坐标这么不靠谱吗?请韩方提供认可的量具吧。
发表于 2012-5-23 21:02:33 | 显示全部楼层 来自: 中国广东广州
调,,调到三座标检出OK就做就是了,这棒子那么死板也是没办法了,
发表于 2012-5-24 16:37:28 | 显示全部楼层 来自: 中国江苏苏州
涂层螺旋合金铰刀。测量根据客户来的  公差只有0.012.检具不一样误差就大了!这材料是不是球铁的啊?
发表于 2012-5-25 23:34:36 | 显示全部楼层 来自: 中国贵州黔东南苗族侗族自治州
可采用铰刀加工。8 @7 R- S' v; N9 E
不认可塞规是可以理解的,塞规检查不能检测中间大的情况。
7 ?" t" E1 _7 O. M) d, A2 v三坐标和内径千分尺之间肯定有差异,就看认哪种,工作环境对测量结果影响比较大。该孔可采用气动量仪检查。1 k: _6 ^, v2 L
有一点不能理解,就是你的图孔内标注了平面度是什么意思?
发表于 2012-5-26 21:09:09 | 显示全部楼层 来自: 中国重庆
我也不明白,这里孔标平面度什么意思?7 }# h2 G* e( P
楼主能说说棒子怎么检的这个平面度不?
 楼主| 发表于 2012-5-27 21:20:41 | 显示全部楼层 来自: 中国江苏扬州
我也不明白,这里孔标平面度什么意思?, ?$ V4 }$ Q2 u0 R: @) ~
楼主能说说棒子怎么检的这个平面度不?
. _& x' F, m! P3 zxxfd19 发表于 2012-5-26 21:09 http://www.3dportal.cn/discuz/images/common/back.gif
询问技术部门,答复是标错了,此处应当标在结合面。
 楼主| 发表于 2012-5-27 21:27:45 | 显示全部楼层 来自: 中国江苏扬州
请看这张截图。
连杆盖.jpg
 楼主| 发表于 2012-5-27 21:32:49 | 显示全部楼层 来自: 中国江苏扬州
应当更改为如图所示:
更改.jpg
发表于 2012-5-28 08:29:21 | 显示全部楼层 来自: 中国湖南岳阳
三坐标测小直径孔时是有偏小的情况,如果想要提高测量精度的话就要提高孔壁粗糙度。用滚压头试试,我公司就是这样解决问题的。
 楼主| 发表于 2012-6-2 18:57:51 | 显示全部楼层 来自: 中国江苏扬州
三坐标测小直径孔时是有偏小的情况,如果想要提高测量精度的话就要提高孔壁粗糙度。用滚压头试试,我公司就是这样解决问题的。
' M2 i- W7 F' s" bwudang2 发表于 2012-5-28 08:29 http://www.3dportal.cn/discuz/images/common/back.gif
有道理,试试看
发表于 2012-6-3 10:07:52 | 显示全部楼层 来自: 中国山西太原
定位销孔φ6mm公差为0.012mm,用铰刀铰孔精度可以达到,关键是测量,建议用内径测量仪,据实际情况选用不同价位的测量仪器,来满足测量要求。% J, _- x/ p- q: s, T
测量精度达0.001mm的:
0 `9 `( {& [. U* ~4 Y) }2 ahttp://www.007swz.com/leebtest/products/yingxiangyi_71876.html
# f: v2 {9 J; H8 T- c$ \: x& B精较高的:
; ^+ h& I! q* y* r http://cn.made-in-china.com/show ... 87%8F%E4%BB%AA.html
* \' w# Z* W$ W4 ]测量范围:内径 ¢3 ~ ¢30mm
) ]. ?) Q* }1 J; x 仪器精度:0.1um - ^7 ~! j9 P" Q0 o
系统精度:0.2um
发表于 2012-6-4 12:56:15 | 显示全部楼层 来自: 中国天津
本帖最后由 lht 于 2012-6-4 13:14 编辑
. ?4 Q' x1 p$ p8 y8 z) u5 }# T+ ~* V. h  H& `
用4-6测量范围的内径千分表就行了。
6 \  T! r/ t$ U3 S* y+ ?- t9 z! l0 \+ R5 s4 t
另外,除非你的CMM为计量型,否则不要用CMM检测孔径,有误差;同时还要考虑生产现场与检验部门的量具是否统一、标准、实用。9 u& ?( `+ b/ g) h

6 n9 R: H5 P! Q5 J“用慢走丝线切割”这种说法只能说是误人子弟了,一般只有在小作坊生产的人才能有此认知。
发表于 2012-6-5 18:20:37 | 显示全部楼层 来自: 中国江苏苏州
用气动内径仪测量  0.012绞刀可以实现 我们0-0.005都是绞刀作的 当然特制的刀 机床也要手动换刀
发表于 2012-6-7 21:50:06 | 显示全部楼层 来自: 荷兰
气动量仪比较贵,小批量建议用内径千分表加标准环规,用比较测量法测量。积累一定的数据(25组以上)做MSA分析,如果得出双R特性小于10%,客户是会接受的,除非他们真是棒槌。
发表于 2012-6-7 21:52:31 | 显示全部楼层 来自: 荷兰
本帖最后由 薛勇 于 2012-6-7 21:53 编辑 ' ?6 K/ H. v7 \' D/ Q/ S& u

" }) g! \* u5 E  ^0 L( h对于7级精度的孔很多厂家都有标准刀具的解决方案,关键是要把预制孔控制好,同时确认机床主轴精度,如果主轴精度(跳动)不好,可采用浮动刀柄。6 Q  d1 h4 H. O4 G4 E9 U9 M
( |0 i9 f7 D1 y  n% U
祝你好运!
 楼主| 发表于 2012-6-8 22:06:01 | 显示全部楼层 来自: 中国江苏扬州
目前,使用的方法是Φ6的环规、内径百分表、Φ6的塞规(通端)联合测量。5 S+ e: N& a% |. v, Q
最好笑的是结果:我们将内径百分表测量孔径6.00-6.02(三坐标测量孔径5.988-6.010)连杆送往韩国确认,原意是韩国确认哪个孔径正确,我们就将孔径控制在该孔径范围,& x; F& S1 G3 {6 i+ P! `6 P
结果,韩国检测人员未对该范围孔径提出异议,
- f" h- z3 z6 c呵呵,原来韩国人也被三坐标纠结了。
发表回复
您需要登录后才可以回帖 登录 | 注册

本版积分规则


Licensed Copyright © 2016-2020 http://www.3dportal.cn/ All Rights Reserved 京 ICP备13008828号

小黑屋|手机版|Archiver|三维网 ( 京ICP备2023026364号-1 )

快速回复 返回顶部 返回列表