QQ登录

只需一步,快速开始

登录 | 注册 | 找回密码

三维网

 找回密码
 注册

QQ登录

只需一步,快速开始

展开

通知     

查看: 8989|回复: 6
收起左侧

[求助] BT30、40、50及ISO40、50、60及DIN69871锥柄尺寸图

[复制链接]
发表于 2012-5-21 12:34:08 | 显示全部楼层 |阅读模式 来自: 中国河北廊坊

马上注册,结识高手,享用更多资源,轻松玩转三维网社区。

您需要 登录 才可以下载或查看,没有帐号?注册

x
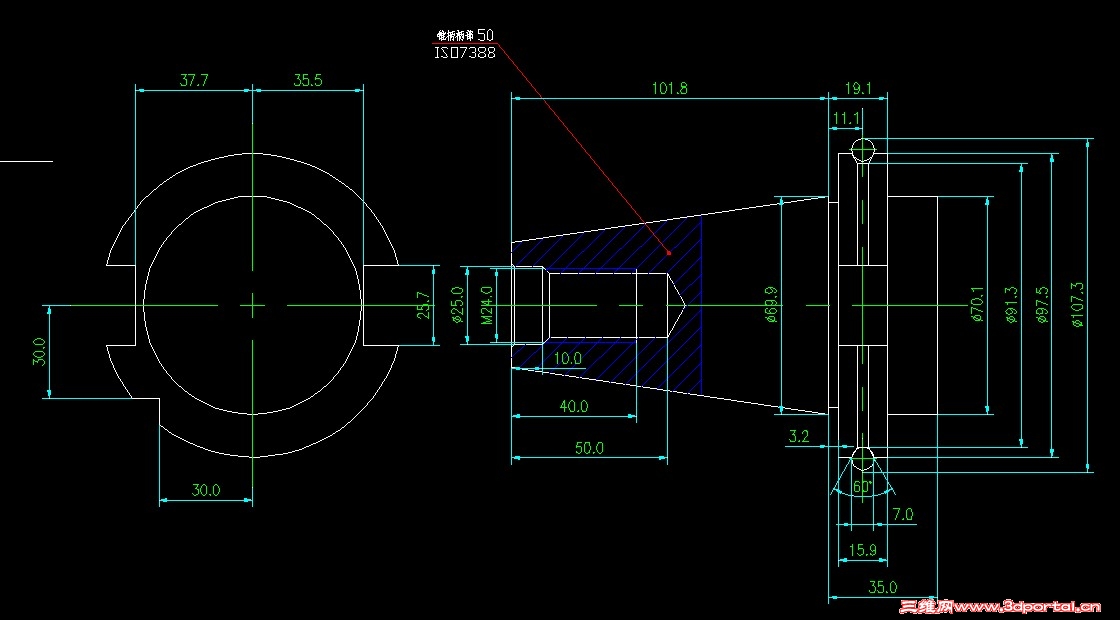
求助:锥柄BT30、40、50
5 g" K/ l/ ~; _iso40、50、60
( T/ \. e  B$ A! x  \DIN6987140、50、60的各个尺寸,要详细的。
( _  F. h' Q" U不胜感激。或者哪位大侠给发个衔接也行。
发表于 2012-5-21 13:37:09 | 显示全部楼层 来自: 中国湖南岳阳
求助:锥柄BT30、40、50  H1 \1 o2 v4 e+ C) m9 M
iso40、50、60- v6 Z. C  I  f8 h) m
DIN6987140、50、60的各个尺寸,要详细的。+ E! V+ s4 {7 {) q5 o
不胜感激。或者哪位大侠给发个衔接也行。. ~5 |' ~4 D% P0 F/ g
abc77626390 发表于 2012-5-21 12:34 http://www.3dportal.cn/discuz/images/common/back.gif
2 M0 A( z0 p; t3 u! C

  t6 G2 f. x! F& j$ _, c只有40、50的参数。
1.jpg
2.jpg
3.jpg
4.jpg

评分

参与人数 1三维币 +2 收起 理由
天际孤帆 + 2 鼓励交流

查看全部评分

发表于 2012-5-21 14:30:34 | 显示全部楼层 来自: 新加坡
给楼主几个论坛里的资料供参考
( z, p9 e; n: Z; dBT,NT刀柄尺寸规格表. h$ }$ \8 A( h3 V0 H3 G; L5 p! `1 G
http://www.3dportal.cn/discuz/vi ... &extra=page%3D24 R) |$ f& v7 E! _  d
3种刀柄的CAD图纸
! L' l/ y: H% G" i: s% k! P1 R/ t, ghttp://www.3dportal.cn/discuz/vi ... &extra=page%3D2

评分

参与人数 1三维币 +2 收起 理由
天际孤帆 + 2 鼓励交流

查看全部评分

 楼主| 发表于 2012-5-21 20:36:24 | 显示全部楼层 来自: 中国河北廊坊
本帖最后由 abc77626390 于 2012-5-21 20:38 编辑
" j* u6 [8 Q# }0 O7 p+ p* N, d- K, m* Q( b% _3 M* j
其实我这里有bt40、50的图,只是想看看与标准的有什么区别,例如公差等等。& S% f* a, N. {/ G6 a0 n9 c
我这么这里iso锥柄都是用的din96871的尺寸,但是就是想清楚比对一下两种锥柄除了抓刀槽尺寸以外,还有哪些不一样的地方。
3 z7 F! q' j& F. E先奉献自己的bt40、50图,是公司自己用的。cad2007版本以上可以打开(包括07)

BT锥柄.rar

113.32 KB, 下载次数: 46

 楼主| 发表于 2012-5-21 20:37:08 | 显示全部楼层 来自: 中国河北廊坊
本帖最后由 wakang 于 2012-5-26 11:17 编辑 6 N- {1 _: Z$ O/ {5 c

8 y2 h. j& N! b" ?3 X$ w7 ^( F如果哪位有din69871锥柄和iso的详细尺寸图,还是不胜感激的!!!
" V/ j. G9 m5 j$ Z3 a- e4 N4 a 搜狗浏览器截图.jpg
发表于 2013-1-13 14:35:03 | 显示全部楼层 来自: 中国黑龙江哈尔滨
感谢楼主分享!
发表于 2013-8-23 10:33:59 | 显示全部楼层 来自: 中国福建厦门
谢谢分享~~~~~~
发表回复
您需要登录后才可以回帖 登录 | 注册

本版积分规则


Licensed Copyright © 2016-2020 http://www.3dportal.cn/ All Rights Reserved 京 ICP备13008828号

小黑屋|手机版|Archiver|三维网 ( 京ICP备2023026364号-1 )

快速回复 返回顶部 返回列表