QQ登录

只需一步,快速开始

登录 | 注册 | 找回密码

三维网

 找回密码
 注册

QQ登录

只需一步,快速开始

展开

通知     

查看: 8170|回复: 14
收起左侧

[求助] 草图标注颜色问题

[复制链接]
发表于 2012-6-8 21:59:10 | 显示全部楼层 |阅读模式 来自: 中国江苏扬州

马上注册,结识高手,享用更多资源,轻松玩转三维网社区。

您需要 登录 才可以下载或查看,没有帐号?注册

x
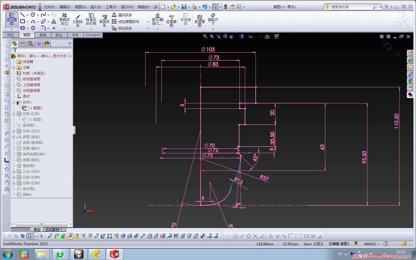
本人刚用SW不久.有个问题想请教各位高手.有没有办法将一个完全定义的草图标注的颜色改成和草图图素不一样的颜色.如下图所示.我很难将将标注引线和草图中的直线区分开来.CIMATRON草图没这个疑问
A.jpg
B.jpg
发表于 2012-6-9 08:40:49 | 显示全部楼层 来自: 中国江苏无锡
在系统选行里的颜色设置可以的
发表于 2012-6-9 09:26:14 | 显示全部楼层 来自: 中国江苏南京
我也经常遇见此类问题  没有好的方法吗
 楼主| 发表于 2012-6-9 11:18:08 | 显示全部楼层 来自: 中国江苏扬州
具体在哪里设置.请二楼详细指点一下.谢谢
发表于 2012-6-9 13:22:47 | 显示全部楼层 来自: 中国上海
楼主,你这界面颜色有点奇芭呀。一般的颜色不是你这样的,线条圆弧颜色在没完全约束前是蓝色的,尺寸标注完全后颜色会自动变成黑色。你这颜色确实是不好区分。楼主是不是动了什么设置了?建议楼主在论坛下过一个国标模板和工程图模板,用现成的再根据自己的需要做些修改。
发表于 2012-6-9 16:26:38 | 显示全部楼层 来自: 中国广东珠海
在“工具”选项里面有个“系统选项”里面的“颜色”可以修改颜色。自己再慢慢找一下.
发表于 2012-6-9 16:27:30 | 显示全部楼层 来自: 中国广东珠海
楼主可能是个女人,喜欢用这中颜色画图和标注!
发表于 2012-6-9 22:12:41 | 显示全部楼层 来自: 中国辽宁本溪
你把颜色返回到默认就可以了
发表于 2012-6-10 11:06:06 | 显示全部楼层 来自: 中国辽宁盘锦
楼主可能是个女人,喜欢用这中颜色画图和标注!
2 }8 g' z' e) B! d+ q( ~欧翔 发表于 2012-6-9 16:27 http://www.3dportal.cn/discuz/images/common/back.gif
注册性别男,别乱猜了
发表于 2014-2-17 08:49:18 | 显示全部楼层 来自: 中国上海
和楼主一样,我也想知道这是怎么设置的,就不另开一贴来问了。5 A" g! `2 x6 _0 K- d: k/ T) X
楼主的意思是用颜色把草图中的线与尺寸区分开,也就是如何把他们改成不同的颜色!! p$ J3 w- X! _, J3 O
拜托楼上各位讲些有点实质性的东西,简明扼要
发表于 2014-2-18 13:20:12 | 显示全部楼层 来自: 中国湖南长沙
   颜色太多也不好把
发表于 2014-2-18 21:28:42 | 显示全部楼层 来自: 中国江苏镇江
搞的花里胡哨的,新手啊!
% Z$ z& G. e" O5 t" ~建议回到默认!
发表于 2014-5-17 21:21:05 | 显示全部楼层 来自: 中国广东广州
为何草图绘制的中心线是灰色的,很难看清啊,怎么设置成黑色,系统-选项-颜色-草图未激活 那里已经设置成了黑色了呀
发表于 2014-7-28 14:21:46 | 显示全部楼层 来自: 中国湖南长沙
约束完的线条和标注的尺寸颜色默认都是一样的,黑色。在草图选项里可以修改颜色,但它们还是一样的,不能单独修改。
) n& U( g/ E9 j6 g9 R' E* g6 ?9 L6 H这么久了,还没人解决么?# b) V; z, l* _! G; G% u* n0 Q/ k
发表于 2014-7-29 11:21:52 | 显示全部楼层 来自: 中国湖南长沙
完全定义的不是黑色吗?错误的是红色,没定义的是蓝色
* ?$ t5 O! {. r
发表回复
您需要登录后才可以回帖 登录 | 注册

本版积分规则


Licensed Copyright © 2016-2020 http://www.3dportal.cn/ All Rights Reserved 京 ICP备13008828号

小黑屋|手机版|Archiver|三维网 ( 京ICP备2023026364号-1 )

快速回复 返回顶部 返回列表