QQ登录

只需一步,快速开始

登录 | 注册 | 找回密码

三维网

 找回密码
 注册

QQ登录

只需一步,快速开始

展开

通知     

查看: 2045|回复: 3
收起左侧

[已解决] 粗糙度标注位置

[复制链接]
发表于 2012-6-22 13:28:05 | 显示全部楼层 |阅读模式 来自: 中国广东深圳

马上注册,结识高手,享用更多资源,轻松玩转三维网社区。

您需要 登录 才可以下载或查看,没有帐号?注册

x
本帖最后由 sunping888 于 2012-6-25 17:15 编辑
% d0 O- L' b' p! }1 ~  v5 ~
) {: S9 ^9 [' R! w6 n QQ截图20110622132728.jpg / l- H0 |$ u4 ~# O$ _2 j8 S
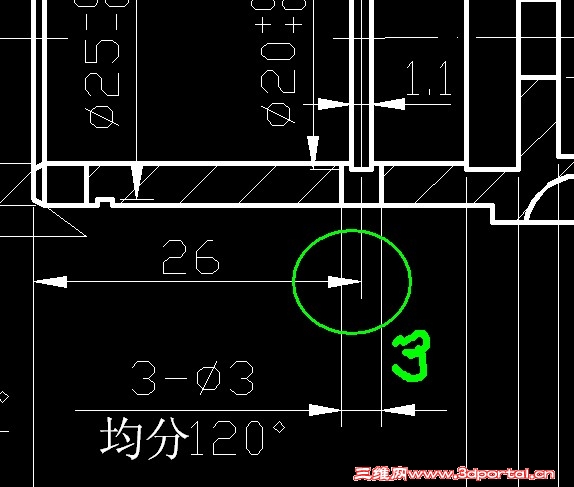
粗糙度标注在1或者2处,表达的意思是一样的吗?谢谢 QQ截图20110622133207.jpg   Q5 V  O8 P& k% l8 `
' _9 ~* Y. A& f( H$ G+ e) n9 s) |
3处的情况如何避免。谢谢
发表于 2012-6-22 15:48:23 | 显示全部楼层 来自: 中国浙江衢州
1的标注应该是错的。3没别的视图这个事避免不 了。尺寸标注是尽量避免交叉不是不能交叉。但是线条不能通过尺寸数字
发表于 2012-6-22 17:35:01 | 显示全部楼层 来自: 中国山西太原
1  标注不规范。1 z( x  z5 A0 Q8 O2 X: d
2  正确。
- @) E, i/ F8 W' n) N3  尺寸线尽量避免交叉,此处的避免方法,将3-φ3调到上面,26调到下面就可避免尺寸线相交。
发表于 2012-6-25 21:44:45 | 显示全部楼层 来自: 中国上海
赞同楼上!!!!!!
发表回复
您需要登录后才可以回帖 登录 | 注册

本版积分规则


Licensed Copyright © 2016-2020 http://www.3dportal.cn/ All Rights Reserved 京 ICP备13008828号

小黑屋|手机版|Archiver|三维网 ( 京ICP备2023026364号-1 )

快速回复 返回顶部 返回列表