QQ登录

只需一步,快速开始

登录 | 注册 | 找回密码

三维网

 找回密码
 注册

QQ登录

只需一步,快速开始

展开

通知     

goto3d 说: 在线网校重磅上线MC2022&Inventor2022全新课程,虞为民老师、大表哥同事精彩讲解,快去围观!
2021-06-25
查看: 1748|回复: 10
收起左侧

[求助] 请教

[复制链接]
发表于 2012-7-19 10:39:17 | 显示全部楼层 |阅读模式 来自: 中国广东深圳

马上注册,结识高手,享用更多资源,轻松玩转三维网社区。

您需要 登录 才可以下载或查看,没有帐号?注册

x
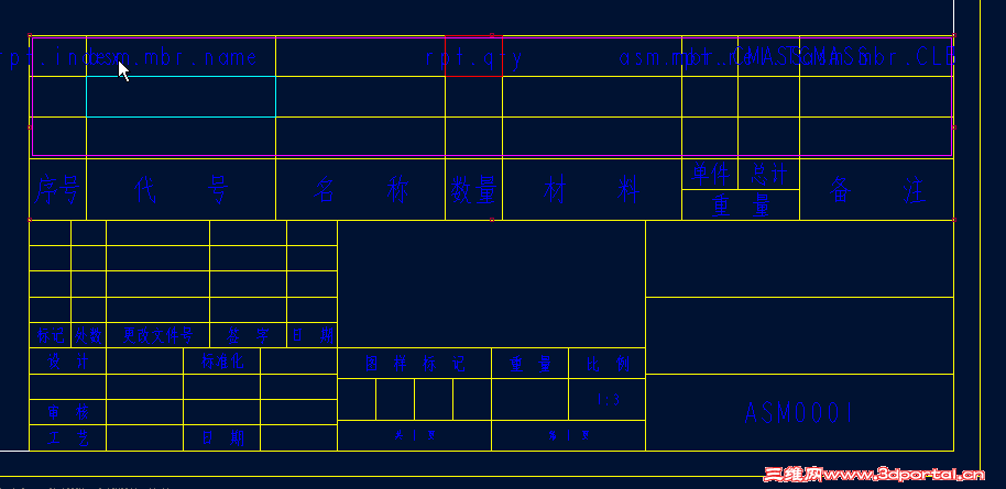
请教各位:在BOM中的数量有没有办法让它的值为小数?应对实际情况的一个纸箱装4个产品,而每个产品的纸箱为0.25,单个产品的BOM中的纸箱数量为0.25可以实现吗.急盼赐教,万分感谢。
发表于 2012-7-19 20:30:09 | 显示全部楼层 来自: 中国广东江门
装配中的数量值在PRO/E系统中,系统是按你装配中的数量而默认的,不可能是小数,BOM表是按你配置好的参数自动显示的,因此也不可能有小数出现
发表于 2012-7-19 20:40:04 | 显示全部楼层 来自: 中国广东东莞
这个 &rpt.qty /4
 楼主| 发表于 2012-7-23 09:50:55 | 显示全部楼层 来自: 中国广东深圳
谢以上两位兄台: &rpt.qty /4 我好像也搞不了,结果显示就是&rpt.qty /4,这样。
 楼主| 发表于 2012-7-23 09:54:06 | 显示全部楼层 来自: 中国广东深圳
谢了兄台,但是我&rpt.qty /4,这个做不了,结果显示还是&rpt.qty /4,不是1/4
发表于 2012-7-23 15:59:46 | 显示全部楼层 来自: 中国广东汕头
那是因为你这不是它所认识的参数。并且要把参数的属性从整数改为数值。估计直接用这个公式应该不行,你自己要另外设定参数。
发表于 2012-7-23 19:28:04 | 显示全部楼层 来自: 中国广东东莞
我回答你的只是给你个思路,具体得你自己去摸索下,, 细节问题得注意了。 看我做的吧! 肯定可以。$ s5 G+ v( R. u9 N$ m

3 ~  D4 K6 I0 e$ O- U4 k( G 1.png 9 Y! a. f: s+ Q/ a7 [8 T

$ h) p7 G! Q7 O% e8 v. c2 k 2.png ! z8 |* R) d+ u" [2 X) X) R
+ F3 @' [1 m, g' {) s
3.png 8 q& A4 A- S- T9 K+ A

6 Z* Z6 q: o7 r5 R# { 4.png 6 I. b5 s# n' H

6 g& _) Y4 y! Q" t

评分

参与人数 1三维币 +5 收起 理由
唐依依 + 5 技术讨论

查看全部评分

 楼主| 发表于 2012-8-6 09:06:55 | 显示全部楼层 来自: 中国广东深圳
谢谢高手兄台指点。
 楼主| 发表于 2012-8-6 09:16:57 | 显示全部楼层 来自: 中国广东深圳
兄台,能否再帮我试探下,我只是想要其中的某一项为1/4,其它的还是实际数量的。这样一弄全部又都下改了,。。。
发表于 2012-8-7 17:36:19 | 显示全部楼层 来自: 中国广东深圳
这些你可以在零件模式下完成,如图片
2012-8-7 星期二 17-34-06.png
发表于 2012-8-7 20:47:32 | 显示全部楼层 来自: 中国广东江门
学习下,,谢谢!
发表回复
您需要登录后才可以回帖 登录 | 注册

本版积分规则


Licensed Copyright © 2016-2020 http://www.3dportal.cn/ All Rights Reserved 京 ICP备13008828号

小黑屋|手机版|Archiver|三维网 ( 京ICP备2023026364号-1 )

快速回复 返回顶部 返回列表