QQ登录

只需一步,快速开始

登录 | 注册 | 找回密码

三维网

 找回密码
 注册

QQ登录

只需一步,快速开始

展开

通知     

查看: 1835|回复: 19
收起左侧

[求助] 扫描收尾怎么收

[复制链接]
发表于 2012-7-30 10:11:33 | 显示全部楼层 |阅读模式 来自: 中国江苏南京

马上注册,结识高手,享用更多资源,轻松玩转三维网社区。

您需要 登录 才可以下载或查看,没有帐号?注册

x
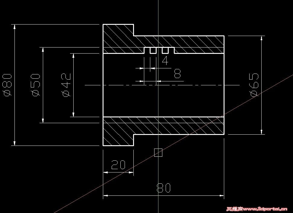
未命名.jpg 我矩形螺纹做出来,头被我切掉了,郁闷!!
* i4 Z( L/ L" N: _下面的图就是我想要做的,和我前面求助的帖子的套筒,有内矩形螺纹,我自己搞出来头头被我切掉一块!!郁闷!* P$ X/ m% J/ Y5 H
怎么搞啊?最好有教程或者文件,我可以研究下!小弟不才啊!求大神门多多指教!希望三维网越办越好!!!加油4 d0 h2 e: p6 V. C0 U; `$ o+ T9 Z; R
333顶顶顶顶.jpg
! C$ ]" J0 w4 W2 F6 i0 n2 q) M- t5 M% D) B3 F3 q
发表于 2012-7-30 11:02:29 | 显示全部楼层 来自: 中国山东济南
是这么个意思吗?
未命名.jpg
 楼主| 发表于 2012-7-30 11:23:58 | 显示全部楼层 来自: 中国江苏南京
3dpsoso 发表于 2012-7-30 11:02 static/image/common/back.gif
1 J$ a* Q# P6 |; Z是这么个意思吗?
) B  G- f8 \% C+ P2 V3 _$ A: y
从低端切到顶端,但是顶端要是平整的
发表于 2012-7-30 11:42:57 | 显示全部楼层 来自: 中国广东肇庆
本帖最后由 keilei001 于 2012-7-30 11:44 编辑
( ]2 n# N/ R, f4 P1 f, ]5 T8 `  J# j1 ]0 e3 l
一般来说,只有螺栓用外螺纹才设收尾,传动用的外螺纹和内螺纹不收尾或设置退刀槽。
发表于 2012-7-30 14:08:13 | 显示全部楼层 来自: 中国山东济南
boy-shl 发表于 2012-7-30 11:23 static/image/common/back.gif
% e9 \: U. b# V( q' T从低端切到顶端,但是顶端要是平整的

' F' _3 Z, u6 ]. r6 Mcad图上不是只有两扣。要平的是什么意思?还是用途说话的明白
 楼主| 发表于 2012-7-30 14:39:28 | 显示全部楼层 来自: 中国江苏南京
keilei001 发表于 2012-7-30 11:42 static/image/common/back.gif
2 n- M# a* [8 E! }! }一般来说,只有螺栓用外螺纹才设收尾,传动用的外螺纹和内螺纹不收尾或设置退刀槽。

8 B( v+ t. @. w明白了!!!!!!!!!!!!!
发表于 2012-7-30 20:56:33 | 显示全部楼层 来自: 中国山东青岛
楼主是这样吗?
零件2.JPG
零件1.JPG
 楼主| 发表于 2012-7-31 08:21:30 | 显示全部楼层 来自: 中国江苏南京
jie7788 发表于 2012-7-30 20:56 static/image/common/back.gif" }( D& f7 g# }  @- S% v/ y
楼主是这样吗?

. k+ t9 |# u+ k3 I. z/ ~+ i) [我靠,大神啊,好厉害!!!是这样子的!给个教程吧?或者给个文件之类我研究下!最好教程+文件了 呵呵
发表于 2012-7-31 08:30:16 | 显示全部楼层 来自: 中国浙江金华
给个教程吧?或者给个文件之类我研究下
发表于 2012-7-31 09:28:19 | 显示全部楼层 来自: 中国福建漳州
变径螺纹+扫描应该就可以了。
发表于 2012-7-31 10:08:22 | 显示全部楼层 来自: 中国辽宁盘锦
boy-shl 发表于 2012-7-31 08:21 static/image/common/back.gif
( y; p8 Z+ Z* E2 i! W我靠,大神啊,好厉害!!!是这样子的!给个教程吧?或者给个文件之类我研究下!最好教程+文件了 呵呵:l ...
. h+ W7 e- t* X$ O
搜一下以前的帖子,很多介绍的
发表于 2012-7-31 10:23:33 | 显示全部楼层 来自: 中国浙江台州
:good:good:good:good
发表于 2012-7-31 17:43:00 | 显示全部楼层 来自: 中国湖北襄阳
拜托,内螺纹不能用变径吧。
+ M2 C' ^: a& I9 v& y% O! Y螺纹线上下多画点,然后主体上下口倒角,就看起啦顺眼多了
发表于 2012-8-1 11:07:31 | 显示全部楼层 来自: 中国福建漳州
xflhf 发表于 2012-7-31 17:43 static/image/common/back.gif' h4 x" a( p( L- h, f
拜托,内螺纹不能用变径吧。
: q4 b1 ^$ \# D3 w* q- r螺纹线上下多画点,然后主体上下口倒角,就看起啦顺眼多了

2 L) G9 P, s8 f这样可否?求指点!对内螺纹不是很清楚 螺纹1.PNG * D: i" d% e2 D; N! Y, u
螺纹2.PNG
发表于 2012-8-2 15:28:47 | 显示全部楼层 来自: 中国湖北襄阳
ylh3527 发表于 2012-8-1 11:07 http://www.3dportal.cn/discuz/static/image/common/back.gif
! F, `: i( o! b: n2 S1 {, x这样可否?求指点!对内螺纹不是很清楚
& ]9 b: y9 o  D" R1 U5 n

$ \2 }9 Y. Q) a% _你的这个没有把原零件切除完整,看看7楼的就知道了。
6 f, {( p) x: X4 c+ ~+ R, t先把内孔倒角,然后建立的螺旋线开始和结束分别超过你零件的上面和下面,然后用螺旋线的开始部分的点做一个基准面,画出牙型,然后扫描切除就行了
发表于 2012-8-2 15:40:11 | 显示全部楼层 来自: 中国福建漳州
xflhf 发表于 2012-8-2 15:28 static/image/common/back.gif8 S% Q* U; r; f' [* j& S5 ~' u$ \
你的这个没有把原零件切除完整,看看7楼的就知道了。
9 A/ \0 N; i3 s2 d. Z先把内孔倒角,然后建立的螺旋线开始和结束分别超 ...
" @/ N! n: M% o
他问的是收尾额 我画的也是收尾
发表于 2012-8-2 15:40:37 | 显示全部楼层 来自: 中国湖北襄阳
我试了一下,说的不是很准,只需要建立一个超过原零件上表面的基准面就行了6 M; X4 f5 S3 N  o" @7 j3 |
* y& L) Q' j- y% S* J1 Z
未命名.JPG
发表于 2012-8-2 15:41:42 | 显示全部楼层 来自: 中国湖北襄阳
终于会贴图了,内牛满面啊
发表于 2012-8-3 09:04:04 | 显示全部楼层 来自: 中国山东青岛
boy-shl 发表于 2012-7-31 08:21 static/image/common/back.gif
8 V+ B* M; P  Z; O  J3 {% c/ U我靠,大神啊,好厉害!!!是这样子的!给个教程吧?或者给个文件之类我研究下!最好教程+文件了 呵呵:l ...

9 H- M+ t7 B' Y" W2 H你加我QQ吧~ 给你传过去84388557
发表于 2012-8-3 10:08:10 | 显示全部楼层 来自: 中国浙江绍兴
螺纹是用扫描切除来完成的,看一下我做的零件。

螺母.rar

323.37 KB, 下载次数: 12

发表回复
您需要登录后才可以回帖 登录 | 注册

本版积分规则


Licensed Copyright © 2016-2020 http://www.3dportal.cn/ All Rights Reserved 京 ICP备13008828号

小黑屋|手机版|Archiver|三维网 ( 京ICP备2023026364号-1 )

快速回复 返回顶部 返回列表