|
|

楼主 |
发表于 2012-8-4 12:05:14
|
显示全部楼层
来自: 中国台湾
yuanmeto 发表于 2012-8-4 11:07 static/image/common/back.gif
/ W, q, P" _( x0 I在X6上我没走过平行铣削,但用等高走过以下斜面和圆角.走出来的效果非常光滑.
6 A& M/ Q# y, S0 r. e; g' U* f我看你的设置,我建议你把曲 ...
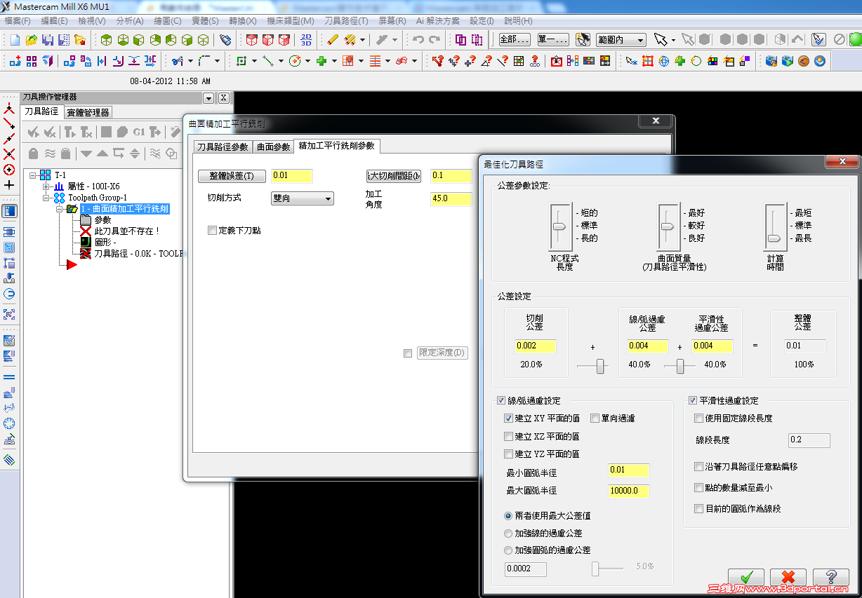
) P- S) A. _8 A. j7 L9 h" g謝謝 yuanmeto 大大的教導1 k7 H" G2 W5 V
經過反覆測試,$ Y7 H' Z5 f. _- x4 a0 C
以下的參數是銑出來最好的了,
3 q! n) R% Q a6 H# ~還請各位不吝賜教。: J$ l7 n0 N: N r. P$ D! x
9 g0 B! ^! Y/ O) j" k% F0 y' {6 V
1 G) Z( `$ {+ P6 A% t
|
|