QQ登录

只需一步,快速开始

登录 | 注册 | 找回密码

三维网

 找回密码
 注册

QQ登录

只需一步,快速开始

展开

通知     

查看: 1645|回复: 4
收起左侧

[求助] 内外圆磨外发加工

[复制链接]
发表于 2012-9-14 15:39:59 | 显示全部楼层 |阅读模式 来自: 中国广东惠州

马上注册,结识高手,享用更多资源,轻松玩转三维网社区。

您需要 登录 才可以下载或查看,没有帐号?注册

x
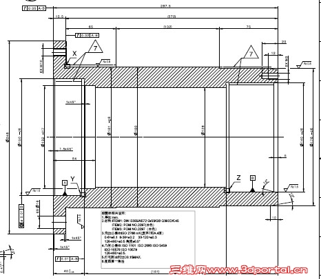
哪有内外圆磨加工达到此工件的?
0 M0 E% h3 ?1 O: |2 d0 G, [附图中点划线是要磨加工的,还有其它的工件,这个是个代表。$ s( |4 y1 {$ N& t9 k3 K9 D
有可以加工的可以找我,谢谢!6 `6 c* [  J; b6 c* i4 N
E-mail : Jason@aimhk.com.hk

产品

产品
 楼主| 发表于 2012-9-14 15:41:42 | 显示全部楼层 来自: 中国广东惠州
如有把握,需全图可联系我
发表于 2012-9-14 20:39:13 | 显示全部楼层 来自: 中国山东烟台
图片太小了,看不清楚,加工部位及形位公差
发表于 2012-9-14 21:16:25 | 显示全部楼层 来自: 中国广东东莞
mengfansheng 发表于 2012-9-14 20:39 static/image/common/back.gif" W! C, _' O% [  q9 W
图片太小了,看不清楚,加工部位及形位公差

' T: K( }: s- B2 S0 Z9 w就是标有内部有“7”字三角型指示处的四处内、外圆柱面。右边内孔为基准A,左边内孔为基准B,并对基准A有0.01的同轴度公差要求。但图中尺寸标注的是极限方式,与中国的不同。
发表于 2012-9-14 23:51:48 | 显示全部楼层 来自: 中国江西九江
图纸不清楚,请上传清晰点
发表回复
您需要登录后才可以回帖 登录 | 注册

本版积分规则


Licensed Copyright © 2016-2020 http://www.3dportal.cn/ All Rights Reserved 京 ICP备13008828号

小黑屋|手机版|Archiver|三维网 ( 京ICP备2023026364号-1 )

快速回复 返回顶部 返回列表