QQ登录

只需一步,快速开始

登录 | 注册 | 找回密码

三维网

 找回密码
 注册

QQ登录

只需一步,快速开始

展开

通知     

查看: 2714|回复: 10
收起左侧

[求助] 各位来帮忙分析下这跳动产生的原因

[复制链接]
发表于 2012-9-18 10:18:50 | 显示全部楼层 |阅读模式 来自: 中国江苏常州

马上注册,结识高手,享用更多资源,轻松玩转三维网社区。

您需要 登录 才可以下载或查看,没有帐号?注册

x
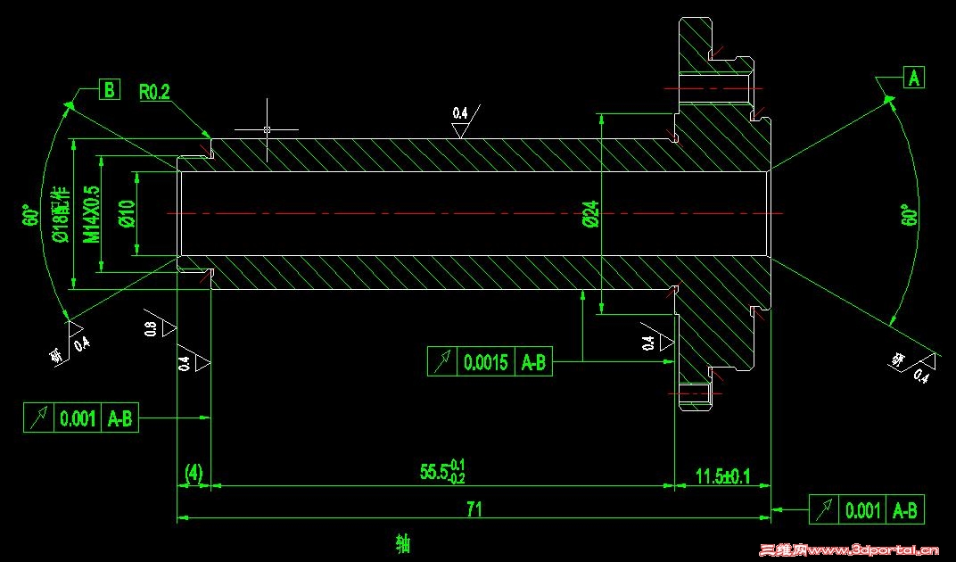
如图所示,我先说下目前的磨加工工艺。
! T# F  a# B) i$ i& H% E轴套:1:穿锥度芯棒,外圆磨磨四个端面及φ43外圆至尺寸;2:φ43孔及端面定位(每批次校工装内孔跳动0.002以内,并且定位面重新磨出)粗磨φ18孔至φ17.95;3:定位方式与工装与粗磨一样,精磨φ18内孔及90°斜面(磨斜面有专用磨头,角度固定)。7 E9 l5 b+ z" [/ x$ T! C0 v
轴:两顶尖顶中心孔端面外圆一次磨好(分粗精磨),外圆与φ18内孔相配,(配合间隙-0.004,留余量研磨,最终配合间隙0.002-0.003),$ _8 \- z% K; ^' @
所有零件的尺寸及形位公差都复合图纸要求。但是最后装配好后固定轴,用百分表打轴套的φ26端面发现端面跳动在0.01,有部分会出现0.02甚至0.03。6 I* ?! n! S  J- J: ^9 u" S
轴φ24端面上排列了一圈φ3的钢珠,正好与轴套90°的斜面相切。钢珠的大小误差在0.002。
: N2 J- _& H5 b, ]我想问下研磨会不会导致形位公差的超差,因为轴套的内孔,90°斜面以及轴的φ18外圆最后都经过手工研磨。

! D1 e$ [  i- P1 t" D

组装图

组装图

轴

轴套

轴套
发表于 2012-9-18 13:26:41 | 显示全部楼层 来自: 中国广东惠州
1.研磨工序必须在形位加工之前;  F! L. E% z! G' U7 H/ X
2.轴套设计内孔定位部分短,为什么不能将二端设计为定位部分,孔的精度都可以保证,中间掏空就行了,请问为什么釆用这种容易产生误差的设计;7 c" G& N0 W2 T
3.轴采用配制方式,实际控制是否符合配合最佳要求;/ S! f+ L8 Z& h/ V; I. w! z+ X$ J
4.外圆磨削与端面磨削(靠磨砂轮修整与面的精度)加工质量;
5 U% [( G1 d4 c+ t9 T3 N5.装配时的松紧程度你们凭什么控制合格合理。
发表于 2012-9-19 02:04:37 | 显示全部楼层 来自: 美国
很明显,问题出在垂直度上。
& r2 G$ V% S6 m! u6 _2 k. sA,B 基准(斜)面太小,不足以保证轴与安装端面的垂直度,应当以轴的中心线为基准A,右侧大端面为基准B,不可以用研磨的60度倒角面为基准。
( r- E5 O0 G; V4 b  w图示18外径的轴是关键尺寸,现在选用了配做,是不合适的。6 \* ], L$ O* F. ]% Y2 s3 A. p
图3是正确的,公差为+0.021也是正确的,为什么图2会用配做?1 I* G, r* I9 r0 Q
另配合面太短,应当在远端也设置一段配合面确保配合的间隙可以控制在比较小的范围。
/ P0 x! O  \9 v. J
发表于 2012-9-19 02:22:39 | 显示全部楼层 来自: 美国
轴套零件的加工如下:
# w' y; T  `2 T$ s9 ^1、开料、车基准外圆,
5 p' p( N" S/ y% H2、车长度、车台阶、车螺纹、车43,如车床无法保证跳动度,可留磨量由磨床加工# N) a3 ?( l+ B& r5 m* K* c, s; {
3、磨43;
! ^9 P- W$ S# c/ `, d, c8 [7 f7 W4、以43或基准外圆为基准,做内孔18定位,(两端)2 T; x8 y2 H  Y/ t
上述工序以基准外圆为基准装夹,工序2为一次装夹,可保证各端面与基准轴的垂直度,工序3只为保证尺寸精度;8 o1 l. k$ h  t# X/ U2 ^
轴的加工建议如下:) ^/ A- e; n& |! a$ O0 i. ?7 ?
1、开料、车基准外圆,车18外径,车端面、车避空;
/ J" N$ t% @9 E9 \& R# F2、磨18外径、磨端面,如需配组,则磨18外径后分选;# a  v' O& I% O; c
3、车内孔10,如要求不高可钻,是否需要铰、研磨按需要处理;车60度,研磨至光洁度;7 T& R7 f6 K; R

/ F: V& I) H2 f; Q! T: e装配时,先检查18定位阶段的同轴度再装配。
发表于 2012-9-20 12:36:44 | 显示全部楼层 来自: 中国河南新乡
有些地方不应该是自由尺寸,如90度。
 楼主| 发表于 2012-9-21 08:23:23 | 显示全部楼层 来自: 中国江苏常州
zhouxinrui 发表于 2012-9-20 12:36 static/image/common/back.gif+ y+ [0 e& n( A
有些地方不应该是自由尺寸,如90度。
/ b& s0 H% v8 i$ Z, E0 S: }
90度是由专机磨出来的,角度固定的。
 楼主| 发表于 2012-9-21 08:26:51 | 显示全部楼层 来自: 中国江苏常州
HUA见证发展 发表于 2012-9-18 13:26 static/image/common/back.gif% D  I* k+ z- {8 \% X
1.研磨工序必须在形位加工之前;
7 f. P+ H5 b. K3 \$ O& O  c2.轴套设计内孔定位部分短,为什么不能将二端设计为定位部分,孔的精度都可 ...

+ @* ^' ]$ z; s4 n1 [) ~9 p内孔测量是三针扭簧仪,测量精度在0.0001
$ U# {- a% K' ]" ~! Z& D外圆测量是数显千分尺,测量精度是0.001,此结构是电子经纬仪、全站仪竖轴的典型结构,宾得也是采用的这种结构及配合尺寸。
 楼主| 发表于 2012-9-21 08:28:14 | 显示全部楼层 来自: 中国江苏常州
wjk8399 发表于 2012-9-19 02:04 static/image/common/back.gif6 M; G8 N% |) }8 Z6 n
很明显,问题出在垂直度上。5 Q4 ^$ H: K! J. k" j! O
A,B 基准(斜)面太小,不足以保证轴与安装端面的垂直度,应当以轴的中心线为 ...
9 z) _4 Z5 F0 a8 u
内孔测量是三针扭簧仪,测量精度在0.0001& m6 I& y8 J2 U; N' Y$ E# @( a4 p
外圆测量是数显千分尺,测量精度是0.001,此结构是电子经纬仪、全站仪竖轴的典型结构,宾得也是采用的这种结构及配合尺寸。加工工艺也是有日本方面提供的,在国外属于90年代级别的产品了,工艺很成熟了。
发表于 2012-9-22 00:41:32 | 显示全部楼层 来自: 美国
sjer86 发表于 2012-9-21 08:28 static/image/common/back.gif
. z. r5 G6 s/ @$ |内孔测量是三针扭簧仪,测量精度在0.0001, P) A: j$ c0 N2 Z. u
外圆测量是数显千分尺,测量精度是0.001,此结构是电子经纬仪、 ...
. d' Q5 d; E! s
不管是谁的工艺,先测一下垂直度是多少,然后测一下内孔和轴配的地方间隙值,取值后做个CAD 图确认一下,如果间隙比较大的情况下,垂直度能达到多少来判定跳动度是否合理。
 楼主| 发表于 2012-9-24 08:16:52 | 显示全部楼层 来自: 中国江苏常州
wjk8399 发表于 2012-9-22 00:41 static/image/common/back.gif! A( I- B/ U2 ?& \
不管是谁的工艺,先测一下垂直度是多少,然后测一下内孔和轴配的地方间隙值,取值后做个CAD 图确认一下, ...

- y9 h. H/ V3 E$ M轴的外圆与端面的垂直度在0.0015,配合间隙为0.002-0.003
发表于 2012-9-25 00:42:38 | 显示全部楼层 来自: 美国
回楼上,& z$ S# G2 m' u3 N3 F
' |! l4 ]6 y# R6 {4 `
如果按照图纸2的要求的话,你们是以两端60度倒角为测量基准测端面跳动度不大于0.001和0.0015,那么手工研磨这个基准倒角面后,应当再次测量轴的各跳动度,同时,右侧端面没有相关的垂直度,无法保证右侧倒角;这个可能性不是很大,但是有可能的,可以测一下。
% E  C2 |, s! y% {而根据图纸3的要求,测量基准为18的轴线,测量位置为两端面,这个内孔面短了一些,可以试制几件长定位面或两端定位面,再检测一下端面跳动度有否改善。
发表回复
您需要登录后才可以回帖 登录 | 注册

本版积分规则


Licensed Copyright © 2016-2020 http://www.3dportal.cn/ All Rights Reserved 京 ICP备13008828号

小黑屋|手机版|Archiver|三维网 ( 京ICP备2023026364号-1 )

快速回复 返回顶部 返回列表