QQ登录

只需一步,快速开始

登录 | 注册 | 找回密码

三维网

 找回密码
 注册

QQ登录

只需一步,快速开始

展开

通知     

查看: 2183|回复: 8
收起左侧

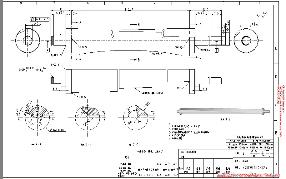
[已答复] 请高人指教这个螺旋怎么加工

[复制链接]
发表于 2012-9-26 12:28:51 | 显示全部楼层 |阅读模式 来自: 中国江苏南京

马上注册,结识高手,享用更多资源,轻松玩转三维网社区。

您需要 登录 才可以下载或查看,没有帐号?注册

x
本帖最后由 asdolmlm 于 2012-9-26 12:52 编辑
8 ]# S' k* {9 i) R2 p+ f5 p( q
# o9 |# m4 f  v: ]7 Q请高人指教这个螺旋除了用数控加工中心加工外还可以用什么方法加工,请详解加工工艺
1 [  E1 h4 z+ k3 U9 ^4 q/ U6 F) z" K) R
8 J9 n' N) h9 I. a! h  |  r
  Y9 k( J7 A" K: S' o2 N( s
8.jpg

修改后刀片.pdf

56.37 KB, 下载次数: 6

发表于 2012-9-26 13:07:37 | 显示全部楼层 来自: 中国四川成都
钳工打磨几年就可以了  O(∩_∩)O哈哈~   9 ?  e0 Y) d8 N+ z
最好就是粗加工在普通机床上进行 精加工在数控加工中心进行   

评分

参与人数 1三维币 +3 收起 理由
洪哥 + 3 感谢帮助!

查看全部评分

发表于 2012-9-26 13:29:57 | 显示全部楼层 来自: 中国浙江台州
又细又长,感觉不太好搞

评分

参与人数 1三维币 +2 收起 理由
洪哥 + 2 讨论

查看全部评分

发表于 2012-9-26 14:36:59 | 显示全部楼层 来自: 中国广东汕头
如果是规则的螺旋面的话,可以用立铣和分度头外加挂轮组可以加工。根据螺距选择挂轮。这是用手机上网,未详细看图,不对之处见谅。

评分

参与人数 1三维币 +3 收起 理由
洪哥 + 3 感谢帮助!

查看全部评分

 楼主| 发表于 2012-9-26 15:20:01 | 显示全部楼层 来自: 中国江苏南京
感谢指导,能否看图后详解加工工艺和挂轮计算
发表于 2012-9-30 23:11:14 | 显示全部楼层 来自: 中国浙江杭州
看样子比较复杂。
发表于 2012-10-1 09:07:59 | 显示全部楼层 来自: 中国天津
在电脑上把图看了一下:图不是单一螺旋面,所以用普通铣床加挂轮一次搞不定。要用四轴数控铣床才能加工。另外工件刚性不足,要加辅助支撑,以免工件变形。

评分

参与人数 1三维币 +3 收起 理由
洪哥 + 3 感谢帮助!

查看全部评分

 楼主| 发表于 2012-10-1 20:59:16 | 显示全部楼层 来自: 中国江苏南京
非常感谢你的意见 。是的,工件的工艺比较复杂  。因考虑到加工成本,加工中心就没选择,四轴的加工中心加工过成本更高,大多用的是三轴的。我的想法是用铣床挂轮把螺旋先加工出来,热处理,外圆磨,然后再用线切割把螺旋后面的部分去掉,也具是二次加工。这样不知能否保证变形。请指教
发表于 2013-4-17 16:23:41 | 显示全部楼层 来自: 中国浙江宁波
学习......
发表回复
您需要登录后才可以回帖 登录 | 注册

本版积分规则


Licensed Copyright © 2016-2020 http://www.3dportal.cn/ All Rights Reserved 京 ICP备13008828号

小黑屋|手机版|Archiver|三维网 ( 京ICP备2023026364号-1 )

快速回复 返回顶部 返回列表