QQ登录

只需一步,快速开始

登录 | 注册 | 找回密码

三维网

 找回密码
 注册

QQ登录

只需一步,快速开始

展开

通知     

查看: 926|回复: 1
收起左侧

[求助] 求钣金思想

[复制链接]
发表于 2012-10-18 12:06:03 | 显示全部楼层 |阅读模式 来自: 中国江苏苏州

马上注册,结识高手,享用更多资源,轻松玩转三维网社区。

您需要 登录 才可以下载或查看,没有帐号?注册

x
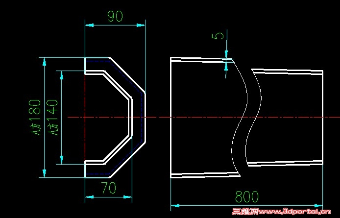
我钣金接触的不多,所以遇到的问题蛮多,以以下示例求钣金思路。. [5 P; Q- ^' j% f9 b1 b2 Z2 K& V
见附件,希望上传PART(2010或以下版本)! [7 \3 f1 S$ E$ G& S
这个和大小头,天方地圆应该差不多吧,
: V0 h1 m1 R! R5 H( v% o! p折弯半径和折弯系数在实际应用有标准可查的吧
2P94LYFW{7{NN[05@%I9[%T.jpg
发表于 2012-10-18 12:31:04 | 显示全部楼层 来自: 中国江苏无锡
这样可以吗?
, Z( ?, i# H& X% }' [( l5 W 18.钣金思路.gif & l* A8 ~/ Y9 a# n

6 l! C  J8 E; E) z+ [5 v
发表回复
您需要登录后才可以回帖 登录 | 注册

本版积分规则


Licensed Copyright © 2016-2020 http://www.3dportal.cn/ All Rights Reserved 京 ICP备13008828号

小黑屋|手机版|Archiver|三维网 ( 京ICP备2023026364号-1 )

快速回复 返回顶部 返回列表