QQ登录

只需一步,快速开始

登录 | 注册 | 找回密码

三维网

 找回密码
 注册

QQ登录

只需一步,快速开始

展开

通知     

goto3d 说: 在线网校重磅上线MC2022&Inventor2022全新课程,虞为民老师、大表哥同事精彩讲解,快去围观!
2021-06-25
查看: 7404|回复: 39
收起左侧

[讨论] 用PROE出工程图

[复制链接]
发表于 2006-7-1 14:50:56 | 显示全部楼层 |阅读模式 来自: 中国安徽蚌埠

马上注册,结识高手,享用更多资源,轻松玩转三维网社区。

您需要 登录 才可以下载或查看,没有帐号?注册

x
有谁用PROE出过符合国标的工程图吗?请上传一张上来看看。
发表于 2006-7-1 16:16:19 | 显示全部楼层 来自: 中国重庆
Pro/E中的标准是美国的标准,
% ~1 m8 w. O9 r要出符合我国国标的,很难啊
! z6 s5 S- l/ b+ I/ K总有这样那样的感觉不对!
发表于 2006-7-2 23:17:32 | 显示全部楼层 来自: 中国山东青岛
自己做个模板吧
发表于 2006-7-2 23:32:10 | 显示全部楼层 来自: 中国广东广州
好东西这个是要支持的啦!感谢楼主的无私奉献。
发表于 2006-7-3 11:06:58 | 显示全部楼层 来自: 中国广东深圳
我总认为proe 所标的二维图不如cad,但不少人会反对,说cad已被淘汰。从以往的贴图一看还没有见到过真正符合国标的drw图,如果真有那么好,各位不妨贴一个二维图来看看吧!(我总是把drw图转到cad再标尺寸)
发表于 2006-7-3 17:51:15 | 显示全部楼层 来自: 中国上海
我4年前就习惯了用PRO出工程图了。从长远讲我觉得PRO好一些,纯属个人意见。
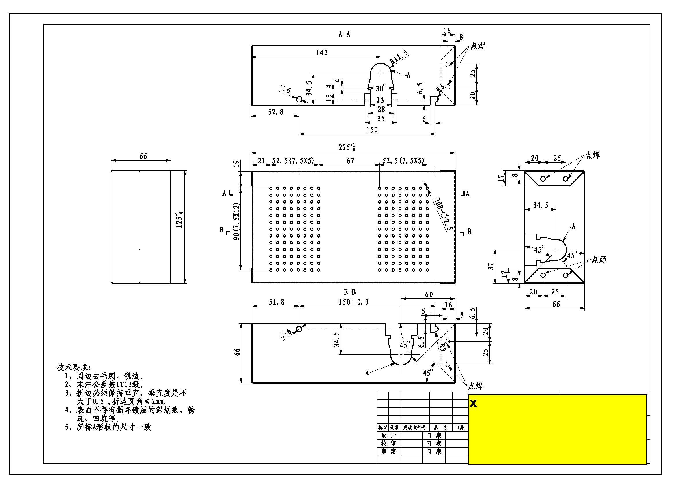
散热器盖(TDX(W)IC-0771-06.JPG
发表于 2006-11-1 23:53:50 | 显示全部楼层 来自: 中国上海
打印的时候怎么选择打印区域呢?
发表于 2006-11-2 08:21:03 | 显示全部楼层 来自: 中国浙江嘉兴
6楼做的好呀,我对PRO出工程图感觉太累,可能不常用的关系
9 K$ M; m, V' {5 V8 |' `- n对于目前的各位同行,可能用CAD出图的多一点
发表于 2006-11-2 09:11:09 | 显示全部楼层 来自: 中国湖北武汉
我用PRO出工程图老是打印的有问题,是不是设置有问题???
发表于 2006-11-2 09:33:09 | 显示全部楼层 来自: 中国江苏无锡
给坛友看看,我们一直用PROE出工程图,感觉不错,
1 B8 k6 W: L  ~2 e, z8 H虽然有时候回遇到一些问题,但都能够解决掉的,
$ J1 m$ Q% b3 }, K; D# S总之,PROE出图很方便,不会像CAD图容易发生错误
7 D7 X- V9 x4 _; b# v0 O可能是PROE上手比较难吧,大家都不愿去突破自己用CAD的常规* U0 d% R) r) o' ?8 d# ~; e
或习惯;# m) S0 R8 j3 {+ g5 {! `7 t/ ?1 b
发一张简约的图给大家看看哦
02.JPG
发表于 2006-11-2 12:59:40 | 显示全部楼层 来自: 中国河南洛阳
PROE出工程图挺好用的,可以先用PROE出,然后拿到CAD下修改,那样效率高
发表于 2006-11-2 19:52:49 | 显示全部楼层 来自: 中国江苏无锡
pro/e转成cad的图后,里面所有的线宽都一样的,怎么改过来啊?4 B; m8 h0 f$ u$ d5 |
还有,谁知道怎么把pro/e工程图里局部剖的边界线改成细线??其实我觉得,要用pro/e出符合国际标准的工程图,最重要的是各种设置,不过好像没什么详细介绍这方面东西的资料。& o, O# m) ~& H! a7 p0 K& n
, ]- ]2 e% b6 f/ T2 q
[ 本帖最后由 wyldtc 于 2006-11-2 19:54 编辑 ]
发表于 2006-11-2 20:53:31 | 显示全部楼层 来自: 中国湖南长沙
哪个老兄上传摸版用一用呀
发表于 2006-11-13 22:38:43 | 显示全部楼层 来自: 中国浙江杭州
呵呵,这个比较简单4 w. x7 K' ?' I: E! \
我们用proe出图两年了
发表于 2007-1-11 22:12:30 | 显示全部楼层 来自: 新加坡
感觉还是用ProE出工程图比较好,三维零件和二维图保持关联,更改极其方便。
发表于 2007-1-11 22:19:38 | 显示全部楼层 来自: 中国广东韶关
我都是用破衣画好,转到CAD拿去打印
发表于 2007-1-11 23:13:34 | 显示全部楼层 来自: 中国福建厦门
OJJ 学长的工程图也不是全部符合工程图规范啊
% S! ^' Q! r: ^! c0 [* N# M尺寸都显示在尺寸线的上面
# h0 i; F* s7 |6 Q4 G9 u' o正规的工程图应该是在尺寸线之间的
7 p# l, a. ]% ], ~水平命令倒是能实现这样的功能
2 K. V% o8 C& W0 M可郁闷的是    竖直方向的尺寸标记也是水平的   郁闷啊 !4 p0 ~& ^. n9 I8 I0 }* R( \5 n
两者不可兼得啊!
1 y! k/ r6 Y2 ]% i郁闷很久了   
: C0 ~7 v0 o  V5 p' ^& _
8 O7 H1 n% \# f6 H+ I) D
9 I, c- V* i2 K& o6 k7 |* F! l
$ W- v  T; i" b; Z7 Y( E2 Q  T+ w另:上面两个出图得学长能不能告诉我怎么才能让中心线显在图上啊  7 y" y! }, ^, o7 d% y" g0 g2 e
我的工程图没有中心线啊  . j" C6 I" Q+ [' N# x
郁闷
发表于 2007-1-12 08:44:35 | 显示全部楼层 来自: 中国广东佛山
这两年一直用PROE出图,CAD都快忘了。用PROE出图个人感觉最大的好久就是它与模型的关联性,不容易出错。至于出图不符合国标,因为PROE的配置文件的高置项很宽,只要配置的好,出的图一样能国标!(至少是差不多国标)。还有PROE出图不方便,但我觉得只要用得好,PROE出图比CAD还方便,还快(特别是比较复杂的图,又不容易出错!). \! c( E7 z6 I& t5 V$ v% m
说了优点,现在在该说说它的缺点了:对开一些国标中的简化画法,如齿轮( ,一想到用PROE画齿轮我就.....),有时出的图根本就没办法(用简化表示可以达到,但一想到那繁琐的程序,还是用CAD得了。)
发表于 2007-1-12 09:18:04 | 显示全部楼层 来自: 中国山东临沂
PROE的工程图真的很好用,觉的它不好用的,完全是个人习惯问题
发表于 2007-1-12 17:02:06 | 显示全部楼层 来自: 中国浙江宁波
用习惯了还是pro/e出2d图方便些
发表于 2008-11-7 00:30:48 | 显示全部楼层 来自: 中国广东东莞
kan yi xia) @4 ~  w# C/ _, Z2 s5 B- W& J
proe出图纸真的很麻烦
发表于 2008-11-7 08:30:07 | 显示全部楼层 来自: 中国安徽合肥
平面图目前我还是觉得没有什么软件能代替AUTOCAD,我一般是用破衣转换后再到AUTOCAD环境中来编辑,破衣的工程图画出来很难看的,功能真是不敢恭维。破衣是三维老大,我的大部分三维造型都是在破衣中完成的。另外,我在教授AUTOCAD课程时,尽管AUTOCAD三维部分我会全部讲到,但我不提倡大家去用它。AUTOCAD绝对是工程图老大。哪一个软件都不可能完全取代另一个软件,希望大家客观面对软件的优缺点。
发表于 2008-11-7 17:08:42 | 显示全部楼层 来自: 中国吉林长春
没用过CAD出图,感觉 PRO/E 出图还可以。
Snapww2.png
发表于 2008-11-7 18:08:26 | 显示全部楼层 来自: 中国浙江绍兴
请教,proe出工程图时图框很淡,怎么处理?
发表于 2008-11-7 18:21:20 | 显示全部楼层 来自: 中国
还是用CAD出的好,还很方便!
发表回复
您需要登录后才可以回帖 登录 | 注册

本版积分规则


Licensed Copyright © 2016-2020 http://www.3dportal.cn/ All Rights Reserved 京 ICP备13008828号

小黑屋|手机版|Archiver|三维网 ( 京ICP备2023026364号-1 )

快速回复 返回顶部 返回列表