QQ登录

只需一步,快速开始

登录 | 注册 | 找回密码

三维网

 找回密码
 注册

QQ登录

只需一步,快速开始

展开

通知     

查看: 3086|回复: 5
收起左侧

[求助] 非标检具设计学习从哪开始学呢

[复制链接]
发表于 2012-12-17 13:29:34 | 显示全部楼层 |阅读模式 来自: 中国重庆

马上注册,结识高手,享用更多资源,轻松玩转三维网社区。

您需要 登录 才可以下载或查看,没有帐号?注册

x
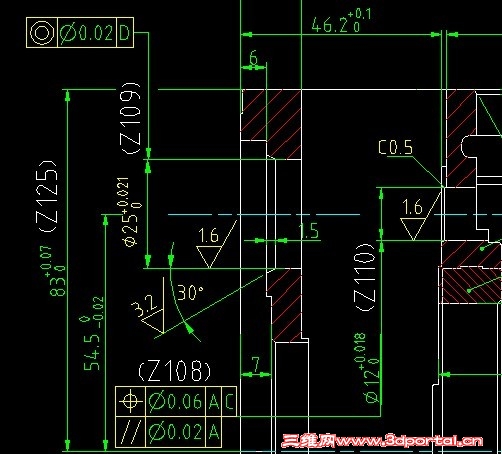
   没接触过检具设计,现在让我设计个 位置度检具,真是不知道怎么下手啊。看了下GB8069越来越晕。哎 大虾们,我应该看哪本学习资料呢,可能是我基础太差了吧。还是我太笨呢。
( d5 I* i- T: Z  D" }5 o7 Z  q* x& N直径25和12这两个的位置度检具。
  {$ C* @- U3 ]: Y* L9 a
111.jpg
发表于 2012-12-17 13:52:46 | 显示全部楼层 来自: 中国广东东莞
图纸太小,基准A、C、D是什么?在那里?看不清。
# r# ?9 |' ~4 ~+ d6 m6 G有本《检验夹具设计-谢诚编著》,可以下载看看。
6 E' e6 Z1 d! {+ z地址: http://www.3dportal.cn/discuz/fo ... 0%BE%DF%C9%E8%BC%C6

评分

参与人数 1三维币 +2 收起 理由
mengfansheng + 2 应助

查看全部评分

 楼主| 发表于 2012-12-17 14:35:49 | 显示全部楼层 来自: 中国重庆
这本书看过也没什么用啊。
111.jpg
发表于 2012-12-17 18:45:00 | 显示全部楼层 来自: 中国山东烟台
精度挺高,建议三坐标检测
发表于 2012-12-17 21:38:12 | 显示全部楼层 来自: 中国广东东莞
楼主3楼的图应该是一张展开图,如果有3D图参考更好。  a" o  M/ b& _) H
但觉得图纸的尺寸、形位公差标注有些不合理:9 \7 ~8 V' P: @% M1 }0 V
1. 基准A孔的定位长度很短,而上凭平面对它的平行度是0.05mm,造成测不准或废品率高。
/ Z5 I) J- o! t2. 基准C本身的平面度是0.05,而左侧面对它的平行度误差也是0.05,造成左平面没有公差。. d9 C$ }2 Z1 s0 W0 ~
3. 左平面的平面度和平行度误差都是0.05,平面度就没有必要标注。7 ^1 r$ [3 ?; D, W) I( Q1 w
4. 同理,由于基准C本身的平面度是0.05,所以孔54.5-0.02的位置度0.06就太严了,达不到。

评分

参与人数 1三维币 +2 收起 理由
mengfansheng + 2 应助

查看全部评分

发表于 2012-12-24 14:59:54 | 显示全部楼层 来自: 中国江苏苏州
本帖最后由 lonthin 于 2012-12-24 15:01 编辑 ! ]; O- N7 y9 B0 n) y6 ]
tangcarlos3d 发表于 2012-12-17 21:38 http://www.3dportal.cn/discuz/static/image/common/back.gif# N" B$ V, D" L5 d( m+ J; M( s6 q
楼主3楼的图应该是一张展开图,如果有3D图参考更好。
7 v3 y% R9 b' }: e; j% L1 Z; l2 \但觉得图纸的尺寸、形位公差标注有些不合理:8 t5 X5 N6 L9 P7 m
1. 基 ...
$ @! ~- D  t/ u- `, r2 b* S- ^
- `$ g% I! W9 a+ y8 D6 {
2. 基准C本身的平面度是0.05,而左侧面对它的平行度误差也是0.05,造成左平面没有公差。4 |4 |2 I) U( C/ m
7 E0 y: B" L/ K7 |+ n" z$ P
这位老师的看法好像有些偏颇,基准C的平面度是0.05与左侧面的平行度公差0.05没有关系,因为测量的时候基准是放在标准台面上,实际上只用了基准的3个最高点,基准从C面转移到了测量台上,所以C面的平面度公差是0.05并不能造成左平面没有公差。 不过话虽这样说,但是一般情况下用作基准的面的要求都要比被测量面高一些。
发表回复
您需要登录后才可以回帖 登录 | 注册

本版积分规则


Licensed Copyright © 2016-2020 http://www.3dportal.cn/ All Rights Reserved 京 ICP备13008828号

小黑屋|手机版|Archiver|三维网 ( 京ICP备2023026364号-1 )

快速回复 返回顶部 返回列表