QQ登录

只需一步,快速开始

登录 | 注册 | 找回密码

三维网

 找回密码
 注册

QQ登录

只需一步,快速开始

展开

通知     

查看: 2101|回复: 9
收起左侧

[求助] 此件加工工艺和流程

[复制链接]
发表于 2012-12-31 09:13:55 | 显示全部楼层 |阅读模式 来自: 中国上海

马上注册,结识高手,享用更多资源,轻松玩转三维网社区。

您需要 登录 才可以下载或查看,没有帐号?注册

x
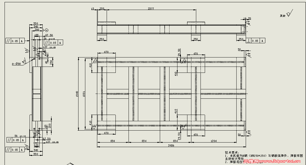
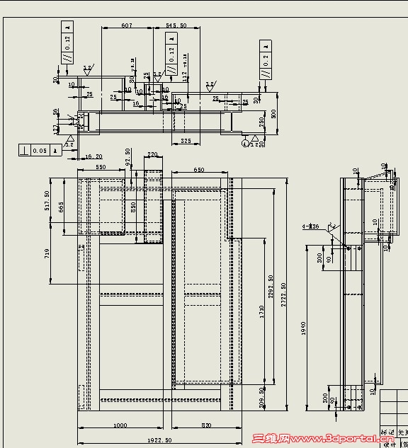
此件加工工艺和流程 如何写  相关帖子http://www.3dportal.cn/discuz/forum.php?mod=viewthread&tid=1197738&extra=page%3D1一个底座出口集装箱装柜需要,一个底座现在用两个底座用键定位螺栓拼接而成
底座1.png
底座2.jpg
底座.jpg
 楼主| 发表于 2012-12-31 13:54:49 | 显示全部楼层 来自: 中国上海
高手指点!!
发表于 2012-12-31 14:42:07 | 显示全部楼层 来自: 中国安徽合肥
我不是高手,我是来学习的。
发表于 2012-12-31 18:01:22 | 显示全部楼层 来自: 中国黑龙江哈尔滨
机械加工大致步骤:
" Y# ~  h3 `+ M+ Y+ b2 h0 i# z第一,先用立车或者龙门铣加工两个底板的底平面。
( r' f! K& O" h第二,然后翻过来按底平面为基准加工上面的加工面。
' I2 ~+ o- N& ?+ R* l# V  d4 s* z3 e3 R如果你的龙门铣足够大就可以将侧面的组装平面与螺栓孔和定位键一并加工出来。
- y8 O: D% d* P' T+ _但是我建议你将定位键改成水平和垂直的定位销。
发表于 2013-1-1 07:58:21 | 显示全部楼层 来自: 加拿大
因为不了解 你的设备情况 和 批量状况- `1 P: j: m$ d$ v
从图纸尺寸上来看 如果上龙门铣 需要比较在的设备。加工第二个 还要上直角铣头
$ A9 n, A/ W8 ^2 `8 k) F4 N第二种方案 可以以落地镗床来加工。如果镗床的工装台略小的话 可以增加一个平台装夹3 ?- _, T- r8 e
1.划线考料。; @; L5 D) X' o0 S
2.落地镗 安装角铣头。加工底面+ v, K, I; [3 A( R/ d
3.以底面为基准 分别加工各侧面  ~4 N# v( X* W
因为滑枕行程受限的话 可以旋转工作台 不过注意接刀情况% H7 D1 @! Q; c( s
4.转工作台 换下角铣头 加工侧面 钻孔。
& o: c" \4 ]/ Z5 K  p$ w5.钳修 检测
# T. A& N8 j" x
发表于 2013-1-2 10:05:17 | 显示全部楼层 来自: 中国山西太原
此底座由两件拼装而成,尺寸较大。应按下述工序进行:' m5 b/ b7 `/ N0 u$ f. G: K
1  分别焊接两部件,为防止焊接变形,应进行人工时效处理。2 F6 Y. @# y5 z3 V
2  加工拼装结合面和定位槽及连接螺栓孔。
5 L5 Q2 w+ p. ~6 F+ ~! n4 c3  加定位键将两件组合,并用螺栓紧固。# z, K3 b7 O5 B2 A
4  在龙门铣上一次装夹,加工成各平面。
发表于 2013-1-10 02:34:53 | 显示全部楼层 来自: 美国
不太可能做到,平行度0.05,垂直度0.05,组焊件啊,焊好之后上龙门铣也保证不了,装夹时也会有变形的,这个工艺要求不合适的。高度差正负0.35,小孔光洁度3.2~~~在集装箱里用来做底座。。。。。。。
' ~6 N, ]& m$ A0 e$ x4 J0 J一般这样的底板,比如发动机运输时,底座用木头制作,一方面便宜,另一方面也是因为木头允许变形,或者用橡胶垫或铜套来保护,运输时保证不磕碰必须要有固定的卡环或钩,需要用钢索固定至集装箱顶角或底脚部位的固定环内,现在你做的这个实在是有点奢侈了。
发表于 2013-1-10 21:43:59 | 显示全部楼层 来自: 中国浙江宁波
同意七楼的说法。
发表于 2013-1-10 22:05:35 | 显示全部楼层 来自: 中国广东东莞
楼主绘图,不用焊接符号的?
发表于 2013-1-10 22:07:09 | 显示全部楼层 来自: 中国广东东莞
字体也非长仿宋?莫非楼主用的原版的SW?你们公司对CAD文件没有管控要求?
发表回复
您需要登录后才可以回帖 登录 | 注册

本版积分规则


Licensed Copyright © 2016-2020 http://www.3dportal.cn/ All Rights Reserved 京 ICP备13008828号

小黑屋|手机版|Archiver|三维网 ( 京ICP备2023026364号-1 )

快速回复 返回顶部 返回列表