QQ登录

只需一步,快速开始

登录 | 注册 | 找回密码

三维网

 找回密码
 注册

QQ登录

只需一步,快速开始

展开

通知     

查看: 1823|回复: 3
收起左侧

[已解决] 局部视图

[复制链接]
发表于 2012-12-31 09:58:53 | 显示全部楼层 |阅读模式 来自: 中国天津

马上注册,结识高手,享用更多资源,轻松玩转三维网社区。

您需要 登录 才可以下载或查看,没有帐号?注册

x
本帖最后由 赶路人 于 2012-12-31 10:41 编辑
, q0 i9 l  A. X/ j* j: p: L3 T7 h8 o
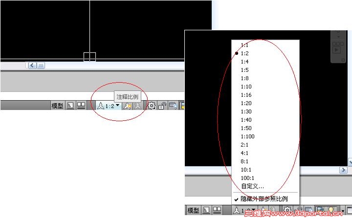
好久不用CAD了 ,不知道局部视图怎么画了,求各位帮忙,谢谢。图片里的注释比例  是什么意思?
3 D/ H6 ~5 k1 ]3 n$ O# Q! \5 _8 X, M/ Y( {2 n0 r, a
我画的局部视图就是把需要放大的地方直接放大,但是 标注尺寸 也是跟着放大了,如图  未命名2
- Q9 j/ x* d2 Z) P! G8 r% ^  }! b

+ l1 H. T% K- K  d. `/ e; V. z5 Y! {1 u+ r
第二张图里标注的 4.00应该是2.00  ; 8.00  应该是4.00
未命名.JPG
未命名2.JPG
发表于 2012-12-31 12:18:15 | 显示全部楼层 来自: 中国天津
关于"注释比例"
6 l: f  e6 B) J" \; ~# E在图上随便选择一个标注对象,在"特性"管理器中给它添加一个或多个"注释比例",再在你附图1中的位置改变布局的"注释比例",看看结果。多尝试几次你就会明白了。% r$ ^5 L. A. O2 a9 K

' I6 W$ F# _! k" u+ w, n关于局部放大视图标注
0 A4 p) c( y( p选择你附图2中两个局部放大标注,在"特性"管理器中把它们的"标注线性比例"改为"0.5"即可。
) o- w9 O$ L; x: l, Y8 c4 A如果不是直接缩放图形,而是使用图纸空间的视口出局部放大图,并且在图片空间标注,CAD会自动修改标注线性比例适应图形。# E+ I- F4 q  J  e% v
1 s6 E+ ~7 a6 r" Z# |* W

评分

参与人数 1三维币 +5 收起 理由
2005llnn + 5 应助

查看全部评分

 楼主| 发表于 2012-12-31 13:14:22 | 显示全部楼层 来自: 中国天津
谢谢   版主
发表于 2013-3-21 15:53:53 | 显示全部楼层 来自: 中国江苏苏州
不错  学习了下
发表回复
您需要登录后才可以回帖 登录 | 注册

本版积分规则


Licensed Copyright © 2016-2020 http://www.3dportal.cn/ All Rights Reserved 京 ICP备13008828号

小黑屋|手机版|Archiver|三维网 ( 京ICP备2023026364号-1 )

快速回复 返回顶部 返回列表