QQ登录

只需一步,快速开始

登录 | 注册 | 找回密码

三维网

 找回密码
 注册

QQ登录

只需一步,快速开始

展开

通知     

全站
8天前
查看: 4582|回复: 27
收起左侧

[讨论] 去除工艺台变形

[复制链接]
发表于 2013-1-19 10:46:26 | 显示全部楼层 |阅读模式 来自: 中国山东烟台

马上注册,结识高手,享用更多资源,轻松玩转三维网社区。

您需要 登录 才可以下载或查看,没有帐号?注册

x
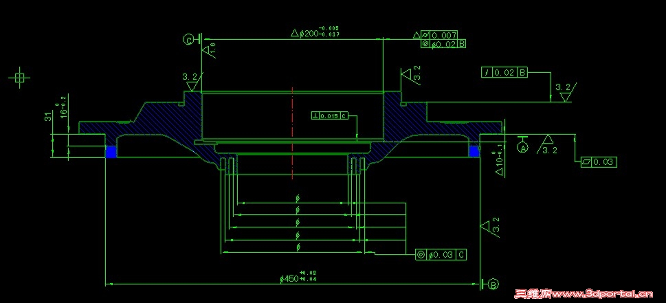
图示涂黑区域是要去除的工艺凸台,该工件是中间厚重,边缘薄,我司在去除时,200尺寸朝下,压板压紧在0.03平面度的端面,去除后平面度有0.01-0.03的变化量,厚重部分有向下沉的现象,导致10的尺寸超差,同轴度超差,平面度超差,目前已经更改工艺,但是去除凸台的变形问题一直没有解决,希望高手赐教,探讨,解惑1 Z; P5 y$ ^7 H  @7 s6 c
QQ截图20130119104319.jpg
发表于 2013-1-19 23:07:24 | 显示全部楼层 来自: 中国广东东莞
本帖最后由 tangcarlos3d 于 2013-1-20 23:04 编辑
& P1 i( J) E  p. g) ^4 A$ c% `- R% x& c& L0 F  A; ^. G4 q
是200直径的端面定位吗?压力多大?这个工件时薄壁件,压力大了容易变形。估计是工件没有周向防止旋转的定位特征,仅靠摩擦力来防止工件转动,而使压力加得太大,从而使工件压变形。
) k( B) _; e& z建议用凸台对面的最大平面定位,压在凸台外侧平面上进行加工(15mm高的空间应该够)。这样定位面受力,压力,加工力距离最近,对工件其他尺寸影响也最小(也就是中间孔部位处于自由状态,没有外力)。9 b4 E% h8 g; h; ]
如果压凸台外面影响加工,也可以压凸台内侧的圆端面上,只是夹具要复杂一些(用类似开口垫圈的碗型结构倒扣在工件上。中间是带螺纹的定位心轴)。

评分

参与人数 1三维币 +2 收起 理由
渔樵 + 2 技术讨论

查看全部评分

发表于 2013-1-20 22:50:49 | 显示全部楼层 来自: 中国山东青岛
楼上重点都说了,补充一点。粗加工先去处大部分余量,第二天再做精精加工。粗精两次装夹试试。

评分

参与人数 1三维币 +2 收起 理由
洪哥 + 2 感谢参与!

查看全部评分

 楼主| 发表于 2013-1-21 18:20:46 | 显示全部楼层 来自: 中国山东烟台
tangcarlos3d 发表于 2013-1-19 23:07 static/image/common/back.gif% V" T- \' R6 }. T- K$ L
是200直径的端面定位吗?压力多大?这个工件时薄壁件,压力大了容易变形。估计是工件没有周向防止旋转的定位 ...

0 N$ Z  Q8 _. C5 }' H6 a% F9 @去除工艺台就是以0.03平面度的平面的对面的大平面定位的,也有防转,端面上是有孔的,加铜垫圈,六角螺栓压紧的,但是还是变形,挺郁闷
 楼主| 发表于 2013-1-21 18:22:53 | 显示全部楼层 来自: 中国山东烟台
个人觉得,可能是去的工艺台太大,破坏了工件的结构,所以导致的变形;但是我相信天外有天,肯定还是会有办法的,希望楼下继续讨论
发表于 2013-1-21 19:42:20 | 显示全部楼层 来自: 中国广东佛山
能不能用三爪软爪夹从上往下数第二个台阶用车床加工?
/ t& N. {6 |2 e/ q但是看下又不是回转件,不知道有没有恰当的位置,图纸没有反映出来

评分

参与人数 1三维币 +1 收起 理由
mengfansheng + 1 技术讨论

查看全部评分

发表于 2013-1-21 19:52:17 | 显示全部楼层 来自: 中国广东汕头
个人感觉工艺有问题。按道理去凸台应该在精加工之前或半精加工之前进行。也可能是为了孔部的加工容易故意这样安排的吧。但现在证明这样的工艺有问题。

评分

参与人数 1三维币 +2 收起 理由
洪哥 + 2 感谢参与!

查看全部评分

 楼主| 发表于 2013-1-21 20:20:29 | 显示全部楼层 来自: 中国山东烟台
其实工艺台就是为了保证更好的满足精加工的内容,如果提前去除了也就没有什么意义了,希望大家以前有用过的,交流一下,都是如何做的
发表于 2013-1-21 20:42:12 | 显示全部楼层 来自: 中国广东东莞
本帖最后由 tangcarlos3d 于 2013-1-21 20:43 编辑
+ S, i8 Z9 J  Z. _; r
mengfansheng 发表于 2013-1-21 18:20 static/image/common/back.gif! `, N, K8 H; A! Y. |8 Y
去除工艺台就是以0.03平面度的平面的对面的大平面定位的,也有防转,端面上是有孔的,加铜垫圈,六角螺栓 ...
) n* ]" m* }2 Z/ g/ J
定位基准不变,将Ø450外边的平面用全环形压边圈(可以分成8~12个压爪,并且压爪有弹性)压紧如何?这时压边圈上可以多钻些孔,多用一些螺钉压紧。并且用扭力扳手拧紧螺钉(为了提高效率,可用T型槽/T型螺钉),使各个螺钉的压力一样大。
: q. a/ ~6 ?+ S2 [: ?& o8 f! a另外加工时加大冷却量,充分冷却。

评分

参与人数 1三维币 +2 收起 理由
mengfansheng + 2 技术讨论

查看全部评分

 楼主| 发表于 2013-1-22 14:26:30 | 显示全部楼层 来自: 中国山东烟台
这样大面积的压法还没有试过,我当时只压了四个螺栓,用的夹紧力很小。。。用压边圈的话,夹紧力就会很均匀,也许会好一些
 楼主| 发表于 2013-1-22 14:32:21 | 显示全部楼层 来自: 中国山东烟台
这个凸台用切刀切断试过,用偏刀一刀一刀的车削也试过,从外往里车,从里往外车都试过,效果都不是很理想,变形的量不一样,没有什么规律,大外圆的直径值变小了, QQ截图20130122143539.jpg
; o* T/ K1 B" A. L圆圈处是工艺台去除位置,
/ @0 U' i. P( K4 y% E2 l3 @整个工件中心部位发生下沉
发表于 2013-1-23 12:26:09 | 显示全部楼层 来自: 中国浙江宁波
毛坯或粗加工后正火去应力,再精加工。

评分

参与人数 1三维币 +2 收起 理由
mengfansheng + 2 技术讨论

查看全部评分

发表于 2013-1-24 11:40:30 | 显示全部楼层 来自: 中国北京
工艺凸台往中间挪挪,放到厚重部位那里

评分

参与人数 1三维币 +2 收起 理由
mengfansheng + 2 技术讨论

查看全部评分

 楼主| 发表于 2013-1-24 12:58:13 | 显示全部楼层 来自: 中国山东烟台
中间厚重部分钻斜孔,有凸台,如果设工艺台的话,挺难去除的,不过也是一个办法,肯定会好很多
发表于 2013-1-24 17:11:04 | 显示全部楼层 来自: 中国广东佛山
没看见加强筋,会不会加些加强筋,可以提高零件的刚性,装夹变形也会小些?另外做个人工时效,让尺寸稳定点?

评分

参与人数 1三维币 +2 收起 理由
洪哥 + 2 感谢参与!

查看全部评分

 楼主| 发表于 2013-1-25 09:06:15 | 显示全部楼层 来自: 中国山东烟台
我们是做配件的,所以不能任意更改结构,工艺台要设在便于去除的位置

评分

参与人数 1三维币 +3 收起 理由
洪哥 + 3 时常回应。

查看全部评分

发表于 2013-2-4 12:03:35 | 显示全部楼层 来自: 中国广东汕头

RE: 去除工艺台变形

mengfansheng 发表于 2013-1-25 09:06 static/image/common/back.gif
( {/ Y0 W! X$ U4 h7 l' h$ ^- `0 U我们是做配件的,所以不能任意更改结构,工艺台要设在便于去除的位置

$ T7 [8 _5 }% e' a9 h5 p可以换个思路:把夹具改一下,把容易变形的台阶内部端面加上一圈多点的辅助弹性支撑。装工件时是弹性支撑,工件装好后再用楔紧机构将其Z向固定。当然初始弹力大小最好可调,以便平衡切削变形。

评分

参与人数 1三维币 +2 收起 理由
洪哥 + 2 感谢参与!

查看全部评分

发表于 2013-2-4 12:35:01 | 显示全部楼层 来自: 中国河南新乡
与设计厂家结合一下,看弄否改动一下结构?这是两全其美的。

评分

参与人数 1三维币 +2 收起 理由
洪哥 + 2 感谢参与!

查看全部评分

发表于 2013-2-4 23:22:27 | 显示全部楼层 来自: 中国陕西西安
讨论算完成了吗?
 楼主| 发表于 2013-2-5 19:43:59 | 显示全部楼层 来自: 中国山东烟台
tangcarlos3d 发表于 2013-2-4 12:03 http://www.3dportal.cn/discuz/static/image/common/back.gif4 Q) l, x3 ~! [
可以换个思路:把夹具改一下,把容易变形的台阶内部端面加上一圈多点的辅助弹性支撑。装工件时是弹性支撑 ...
/ k/ i+ n. E( Q5 b7 b' }/ q- k& x5 D
$ Q7 T, Y9 [2 p  c* ^, I
每个工件的变形情况不一定,这个想法挺好,但是很难控制反变形量
 楼主| 发表于 2013-2-5 19:51:51 | 显示全部楼层 来自: 中国山东烟台
加工艺台的目的是,为了减少找正,毕竟0.02的同轴度,和0.015的垂直度,都是挺难加工的,关键是用何种方法去除不变形,或者不用工艺台加工会有什么更好的加工方法
发表于 2013-2-6 10:15:04 | 显示全部楼层 来自: 中国山西太原
工件较大,所压平面的刚性不强,所以变形。改用φ200孔定位,在车床上车φ200芯头,中心攻丝孔,将工件装在芯头上,用圆盘、螺栓压住端面固定,然后车掉工艺凸台,可能会好一些。
发表于 2013-2-8 15:01:40 | 显示全部楼层 来自: 中国湖北十堰
mengfansheng 发表于 2013-2-5 19:51 static/image/common/back.gif
  S+ }$ N( E0 `& B- r. d; h- B加工艺台的目的是,为了减少找正,毕竟0.02的同轴度,和0.015的垂直度,都是挺难加工的,关键是用何种方法去 ...

5 J  R1 u- g/ ?2 R如果工艺台不是用来装夹定位的,就没必要设计成15mm厚,因为去除量较大,会使零件结构应力重新分布,产生变形。
发表于 2013-2-8 19:23:59 | 显示全部楼层 来自: 中国江苏常州
mengfansheng 发表于 2013-2-5 19:51 static/image/common/back.gif$ u# K/ M) Z9 T0 x
加工艺台的目的是,为了减少找正,毕竟0.02的同轴度,和0.015的垂直度,都是挺难加工的,关键是用何种方法去 ...

1 R; ?9 D2 q% B1 A. I1.要减少变形,就一定要改变夹紧定位方式。建议以200内孔定位,内涨式夹具,靠平端面即可(靠平哪个端面,是不是大端面最好,也可根据情况作出工艺安排)。这样,端面就不会产生夹紧变形。/ ~+ x# B6 {- L) ^$ A
2.如果加工艺台的目的只是为了方便测量找正,为减少工件去除台阶后的结构性变形,是不是可以将该部分的台阶厚度改得更薄一点呢,比如5 左右(现在看看大概15),这样加工余量也少多了。
 楼主| 发表于 2013-2-14 20:06:38 | 显示全部楼层 来自: 中国山东烟台
ftgww123 发表于 2013-2-8 19:23 static/image/common/back.gif; v% w% l* L; C. V% p( C4 x
1.要减少变形,就一定要改变夹紧定位方式。建议以200内孔定位,内涨式夹具,靠平端面即可(靠平哪个端面, ...
5 l1 A0 X6 g' Z1 d/ ~0 {
一般的内涨心轴很难做到较高的精度,而且价格偏高,一般在1万元以上,楼上有没有比较好的比较经济的夹具制作商,专门做心轴的也行
发表回复
您需要登录后才可以回帖 登录 | 注册

本版积分规则


Licensed Copyright © 2016-2020 http://www.3dportal.cn/ All Rights Reserved 京 ICP备13008828号

小黑屋|手机版|Archiver|三维网 ( 京ICP备2023026364号-1 )

快速回复 返回顶部 返回列表