QQ登录

只需一步,快速开始

登录 | 注册 | 找回密码

三维网

 找回密码
 注册

QQ登录

只需一步,快速开始

展开

通知     

查看: 1311|回复: 8
收起左侧

[求助] KW线砂斗移动缸撞击没减速怎么回事 急

[复制链接]
发表于 2013-2-6 16:19:41 | 显示全部楼层 |阅读模式 来自: 中国河南驻马店

马上注册,结识高手,享用更多资源,轻松玩转三维网社区。

您需要 登录 才可以下载或查看,没有帐号?注册

x
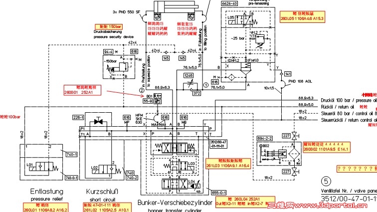
现在缸 用原来的速度撞击   增益值原来的不行   现在的增益改小了感觉 不怎么样      请大师帮忙 看看 谢谢了  工作原理说下最好 急
[64~7A75W_08E[P1B}UH3W1.jpg
QQ截图20121229211533.jpg
 楼主| 发表于 2013-2-6 16:20:44 | 显示全部楼层 来自: 中国河南驻马店
第二张图片发错了  晕   谢谢大师们的指导   是  伺服控制的
发表于 2013-2-8 21:22:49 | 显示全部楼层 来自: 中国山东威海
首先请问你们公司的KW线是哪年安装的,好像是最新款升级版的吧,比以前有很大改变,以前没有这么复杂。砂斗移动缸撞击应该是右上角插装阀那部分的问题,换向阀和溢流阀、插装阀的问题。换向阀有没有问题,溢流阀压力调大一下,插装阀有没有卡住。
 楼主| 发表于 2013-2-9 17:38:42 | 显示全部楼层 来自: 中国河南驻马店
冰雪男儿123 发表于 2013-2-8 21:22 static/image/common/back.gif
( c) _- s+ d: @3 k% x0 u首先请问你们公司的KW线是哪年安装的,好像是最新款升级版的吧,比以前有很大改变,以前没有这么复杂。砂斗 ...
% p: V+ ~, M* v, K6 m" N
我们公司2008年装的KW静压自动造型线   图纸在上面    他的伺服阀会不会出问题  谢谢大=师门的指导  
发表于 2013-2-10 21:10:41 | 显示全部楼层 来自: 中国山东威海
我们单位是1997年的KW静压自动造型线,相差11年。伺服阀应该不会有问题,不容易坏的,伺服阀老贵了。是伺服阀吗,哪个厂家的伺服阀,看样子像是比例阀,还是高频响比例阀?
 楼主| 发表于 2013-2-10 22:34:00 | 显示全部楼层 来自: 中国河南驻马店
冰雪男儿123 发表于 2013-2-10 21:10 static/image/common/back.gif& G2 ~1 d$ X/ [
我们单位是1997年的KW静压自动造型线,相差11年。伺服阀应该不会有问题,不容易坏的,伺服阀老贵了。是伺服 ...
) J" _. i7 Z8 _& x% o* Z" i( |  B
是力士乐的伺服阀    我想请教下你  谢谢你每天的回帖能否方便给个联系方式      
发表于 2013-2-11 08:14:58 | 显示全部楼层 来自: 中国山东威海
怎么力士乐也生产伺服阀了,好像MOOG的伺服阀挺成熟的,技术力量雄厚。
 楼主| 发表于 2013-2-11 19:15:34 | 显示全部楼层 来自: 中国河南驻马店
冰雪男儿123 发表于 2013-2-11 08:14 static/image/common/back.gif
  A) g& P! Z2 z( Q3 I: E! K怎么力士乐也生产伺服阀了,好像MOOG的伺服阀挺成熟的,技术力量雄厚。
2 [! v/ q8 m9 G8 A
是的  哥 新年快乐  弟弟给你拜年了      我们更进一步聊嘛     
发表于 2013-2-12 08:27:49 | 显示全部楼层 来自: 中国山东威海
老弟,我仔细看了一下应该是150bar的溢流阀和740-0-1电磁换向阀的问题。
发表回复
您需要登录后才可以回帖 登录 | 注册

本版积分规则


Licensed Copyright © 2016-2020 http://www.3dportal.cn/ All Rights Reserved 京 ICP备13008828号

小黑屋|手机版|Archiver|三维网 ( 京ICP备2023026364号-1 )

快速回复 返回顶部 返回列表