QQ登录

只需一步,快速开始

登录 | 注册 | 找回密码

三维网

 找回密码
 注册

QQ登录

只需一步,快速开始

展开

通知     

查看: 1045|回复: 0
收起左侧

[求助] 求高人指点,剖面区域尺寸线的打印问题

[复制链接]
发表于 2013-2-21 11:24:26 | 显示全部楼层 |阅读模式 来自: 中国上海

马上注册,结识高手,享用更多资源,轻松玩转三维网社区。

您需要 登录 才可以下载或查看,没有帐号?注册

x
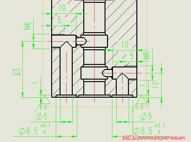
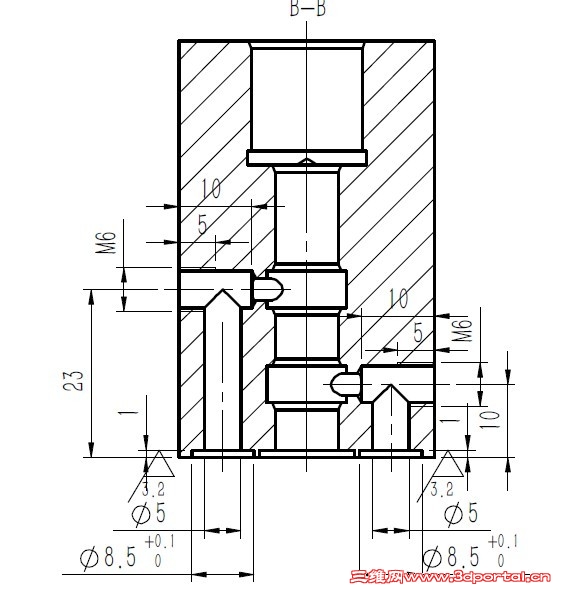
出工程图的时候,尺寸放在剖面区域,在solidworks里显示剖面区域文字部分剖面线是断开的,可是打印的时候,剖面线还是穿过文字了,哪位大侠遇到过,指点迷津,不胜感激。' v$ e' c( W, ^. I$ |
打印.jpg
打印2.jpg
发表回复
您需要登录后才可以回帖 登录 | 注册

本版积分规则


Licensed Copyright © 2016-2020 http://www.3dportal.cn/ All Rights Reserved 京 ICP备13008828号

小黑屋|手机版|Archiver|三维网 ( 京ICP备2023026364号-1 )

快速回复 返回顶部 返回列表