QQ登录

只需一步,快速开始

登录 | 注册 | 找回密码

三维网

 找回密码
 注册

QQ登录

只需一步,快速开始

展开

通知     

全站
6天前
查看: 1310|回复: 5
收起左侧

[已答复] 汽缸问题

[复制链接]
发表于 2013-2-27 21:11:58 | 显示全部楼层 |阅读模式 来自: 中国上海

马上注册,结识高手,享用更多资源,轻松玩转三维网社区。

您需要 登录 才可以下载或查看,没有帐号?注册

x
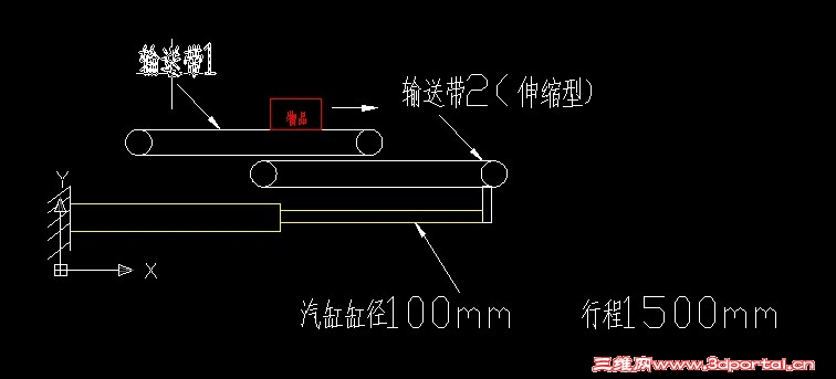
如图,画了张简易示意图,请问汽缸缸径100, 1500长的行程,物品掉落到伸缩输送带, 伸缩输送带突然得到重物怕长久汽缸的密封圈很快就坏,有啥方法避免
QQ截图20130227210105.jpg
发表于 2013-2-27 21:33:23 | 显示全部楼层 来自: 中国广东东莞
汽缸只能用来提供前进、后退的动力,不能用来承受物体及传送带的重量。传送带要另外用导轨来导向和承重。图示的汽缸伸出前、后都是悬臂,是刚性最小的方向。要更改设计。

评分

参与人数 1三维币 +2 收起 理由
洪哥 + 2 感谢帮助!

查看全部评分

发表于 2013-2-28 09:19:14 | 显示全部楼层 来自: 中国山西太原
油缸柱塞只能受轴向力,不能承受径向力。按这个原则设计柱塞与输送机的连接板,将连接板开成长孔,长度大于输送机的振动幅度,这样柱塞就受不到冲击,轴向间隙较小,便于输送机及时伸缩。

评分

参与人数 1三维币 +3 收起 理由
洪哥 + 3 感谢帮助!

查看全部评分

发表于 2013-2-28 19:48:23 | 显示全部楼层 来自: 中国山东青岛
楼上两位说的是正解,侧向力是不能承受的,必须让气缸与输送带2在数值方向脱离。

评分

参与人数 1三维币 +2 收起 理由
洪哥 + 2 感谢帮助!

查看全部评分

发表于 2013-3-1 04:52:17 | 显示全部楼层 来自: 美国
两端有刚性支撑即可。

评分

参与人数 1三维币 +1 收起 理由
洪哥 + 1 感谢帮助!

查看全部评分

发表于 2013-5-25 22:07:05 | 显示全部楼层 来自: 中国广东汕尾
这个另外做个滑轨结构支撑才行,气缸带动滑轨伸缩就可以了

评分

参与人数 1三维币 +2 收起 理由
驿马狂奔 + 2 应助

查看全部评分

发表回复
您需要登录后才可以回帖 登录 | 注册

本版积分规则

Licensed Copyright © 2016-2020 http://www.3dportal.cn/ All Rights Reserved 京 ICP备13008828号

小黑屋|手机版|Archiver|三维网 ( 京ICP备2023026364号-1 )

快速回复 返回顶部 返回列表