QQ登录

只需一步,快速开始

登录 | 注册 | 找回密码

三维网

 找回密码
 注册

QQ登录

只需一步,快速开始

展开

通知     

查看: 1568|回复: 4
收起左侧

[讨论] X6 刀路 , 刀路與成品不理想 求助....

[复制链接]
发表于 2013-3-2 16:32:13 | 显示全部楼层 |阅读模式 来自: 中国台湾

马上注册,结识高手,享用更多资源,轻松玩转三维网社区。

您需要 登录 才可以下载或查看,没有帐号?注册

x
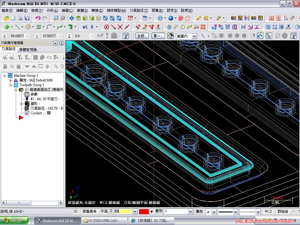
X6 刀路 , 刀路設計不佳 , 加工後成品質量不精緻
5 e6 l0 O/ H% _  E' T; `; S0 [9 r# x2 H' }
b-3.JPG
$ k3 y) d7 T1 C" }5 j) ?$ H9 |3 t( S* T$ z" |. m
文件 ~ 加工部位為粉紅色R角與凸台
3 S: T$ o6 _4 e8 q/ _5 n4 O# Q7 ^$ Z3 O; O( {+ j
B-3.rar (540.72 KB, 下载次数: 22)
 楼主| 发表于 2013-3-2 16:58:54 | 显示全部楼层 来自: 中国台湾
使用~曲面資料流線式刀路過切0 q1 P) E" l: ~
B-4.JPG # D/ ~3 N3 p& Q. {. B

5 @, n2 L2 C8 D# p' S- {2 J, X若選擇藍色為干涉面~則計算失敗) f( N8 v0 l4 N1 c* h& x$ C2 U
B-5.JPG , \2 \- f+ v; c( K# y1 c( j6 ]0 i7 I! m

+ _5 j  q4 n9 ^: [! E" {. C% z請高手幫助~~
发表于 2013-3-5 17:55:15 | 显示全部楼层 来自: 中国江苏苏州
怎么还玩曲面,实体加工不是很好的么
 楼主| 发表于 2013-3-6 15:40:29 | 显示全部楼层 来自: 中国台湾
請問實體刀路比較強嗎 , 或只是選取方式不同 ~ 刀路和曲面相同
发表于 2013-3-20 11:29:11 | 显示全部楼层 来自: 中国上海
你用流线刀路试试
发表回复
您需要登录后才可以回帖 登录 | 注册

本版积分规则


Licensed Copyright © 2016-2020 http://www.3dportal.cn/ All Rights Reserved 京 ICP备13008828号

小黑屋|手机版|Archiver|三维网 ( 京ICP备2023026364号-1 )

快速回复 返回顶部 返回列表