QQ登录

只需一步,快速开始

登录 | 注册 | 找回密码

三维网

 找回密码
 注册

QQ登录

只需一步,快速开始

展开

通知     

查看: 1762|回复: 2
收起左侧

[求助] 求助如下设计

[复制链接]
发表于 2013-3-25 16:24:04 | 显示全部楼层 |阅读模式 来自: 中国湖北黄石

马上注册,结识高手,享用更多资源,轻松玩转三维网社区。

您需要 登录 才可以下载或查看,没有帐号?注册

x
本帖最后由 kzh168 于 2013-3-26 09:44 编辑 ' }! Q% F( I0 [- k% }+ O
/ s6 u+ d3 B4 b, ?) S
因为咱是搞机械设计的真晕,不懂建筑设计,在这里还请教广大设计工程师好友,先谢谢你们了!
% a( z4 r2 ]3 C% M6 ^; O2 W: @亲戚家里房子要倒掉了,位置在省道旁边,属于省道边的街区,拆掉房子做新的
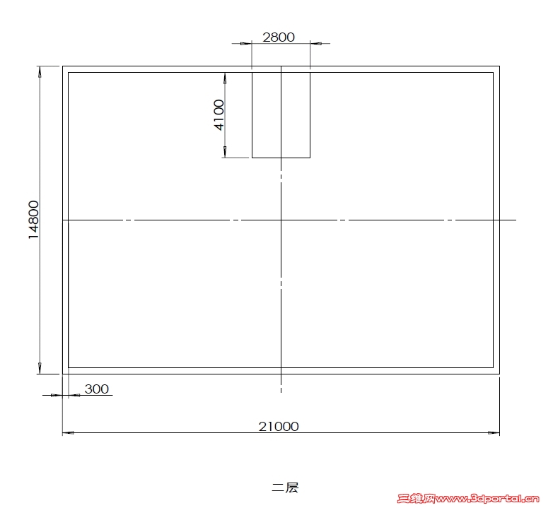
- X  Z. ^3 K, u' r申报的占地面积是:宽度19米,深度 13米
3 ?& B. O6 L; Z/ v6 {; k: \+ |8 S! i房屋右侧和后面是邻居家,前面是公路,左侧是后面几家的公用路2 N$ _6 r: V3 ]2 s9 z
想房屋前后升1.8米阳台,左右升1.5米阳台6 R; E+ ~" a, o
全楼总共7层
* y/ T3 c# V* Y  j- i一层高度5米
5 s, a! j3 [5 W2 P- r$ h4 }二层高度4.2米4 A' }6 ]. ]! K8 s% b! N4 G7 A
三层高度3.5米! H* K. J, `0 J% b+ z
四层以上每层高度为3米
) j4 \+ L5 V+ @' f全框架结构
/ b+ e( H* S+ g0 M* B) e想按下面的方法来规划房屋内部,(上图) 8 i6 ~" j. R% y6 `+ c
我的问题有如下几个:(我可以上传规格的模型)/ ?) a! D/ W/ [1 ^1 X
1、 帮忙做个重力测试,看这样的规划房屋的受力情况' z! y6 Q) i/ q# O$ g
2、 如何架设立柱和横梁
# a+ }0 I( o- \5 ^* H7 a+ S, x1 X- u3、 使用的各类钢筋的规格4 _( P5 R: b# S) B5 N& R7 M- A1 j
4、 房屋的成本预算
) ^; Y5 `2 j7 s; o9 X: T& E这里先再次谢谢了,
! L" F' O5 B- j" b" R( r$ e
; D5 X0 P8 i1 b/ J' n
a1.jpg
- d) w/ s- ^3 ]5 y9 C# y a2.jpg
& D; d+ j& C" S) q3 C# B7 q; r2 C; u a3.jpg . Q2 H8 B3 k# t  `% i: J8 z
a4.jpg
: u8 E# o; k# h3 \4 D% r0 v a5.jpg 0 O, V% ?8 I, {9 H% u7 u
a6.jpg / f9 I6 _# R7 K# n4 y2 W9 Z0 j
a7.jpg
3 I5 f( K9 z8 D' h" L  G4 {) W! h* g5 d
没办法,做房子借了好多债,是路边的房子只有做着做商业用途了& ~/ z$ p6 N$ {/ I
想着是这样的,一楼做商品出租,二楼可以做买电器或者做酒楼,或者二三层做酒楼,四层以上全部做标准间的宾馆
我用的是SW的软件,这里是SW的模型, 房.rar (1.19 MB, 下载次数: 3)
发表于 2013-3-25 17:06:38 | 显示全部楼层 来自: 中国湖北十堰
我感觉一楼二楼中间没有支柱有点悬。好像一般商场里面都有立柱承重
 楼主| 发表于 2013-3-25 17:11:09 | 显示全部楼层 来自: 中国湖北黄石
我这图,就是要请教怎么架设立柱和横梁
发表回复
您需要登录后才可以回帖 登录 | 注册

本版积分规则


Licensed Copyright © 2016-2020 http://www.3dportal.cn/ All Rights Reserved 京 ICP备13008828号

小黑屋|手机版|Archiver|三维网 ( 京ICP备2023026364号-1 )

快速回复 返回顶部 返回列表