QQ登录

只需一步,快速开始

登录 | 注册 | 找回密码

三维网

 找回密码
 注册

QQ登录

只需一步,快速开始

展开

通知     

全站
6天前
查看: 1557|回复: 5
收起左侧

[已解决] 起动转矩如何计算?

[复制链接]
发表于 2013-5-13 11:58:43 | 显示全部楼层 |阅读模式 来自: 德国

马上注册,结识高手,享用更多资源,轻松玩转三维网社区。

您需要 登录 才可以下载或查看,没有帐号?注册

x
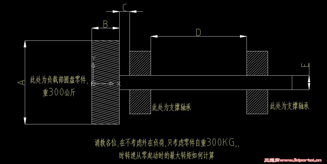
如图所示结构,请问如何计算起动转矩?
示意图.JPG
发表于 2013-5-13 13:37:48 | 显示全部楼层 来自: 中国安徽合肥
已知:物重m=140kg,摩擦系数μ=0.01,电机转速n=1500rpm,加速度a=3m/s²,物体速度15m/min,滚珠丝杠导程h=10mm,长度L=500mm,直径D=21mm,传动效率η=90%;
5 y% g9 w) ?/ z, X求:P=?
$ U) D* [$ M+ G, S3 L% g, S解:由Z轴运动特点可知,最大轴向力F发生在加速上升段,及从速度0上升至15m/min时间段,其加速度为a=3m/s²,则加速时间t=0.08s! |& h6 R3 I7 @! H% }! Q
可得:F=m×g+f+m×a...............................................................㈠
( @  o7 \; o6 j# M+ g. p/ c     =140×9.8+140×9.8×0.01+140×34 C( _2 m9 F, Y0 e& ]: G! D/ h
     =1805.72N
2 S/ o  f3 f% Q" X+ Z! d; B# }由上述,可知最大扭矩发生在等加速上升时' q9 E! l3 I: p3 o/ e
及Tmax=T1+T2 其中T1为等加速上升扭矩,T2为角加速度造成的 惯性扭矩,具体T2=J×ω=(J1+J2)×/60×0.08...................㈡             : `) j6 p3 C6 V( h: s* ^/ @- ]
  =(GDs²+GDw²+J2)×2π×1500/4×980×60×0.08
' k( N6 V8 v* b; F  =[πρ×D4×L/8+W(L/π)²+19.9]×0.53 o" Z$ q* q- q. \4 k( {+ p5 h. ]
=(2.977+15.214+19.9)×0.5=19.05kgf·cm=186.64N·cm5 X. W- @% b& S- t* H' d
  T1=F×h/2×π×η...........................................................㈢( l1 x; \% g- k
   =1805.72×1/2×3.14×0.9
9 L8 y0 b2 t% o" T7 x  C   =319.48N·cm* q. {  p" F9 a8 R  Q2 {
则Tmax=T1+T2=186.64+319.48=506.13N·cm=5.06N·m" x; ?1 v/ \) E5 q
由P=M×N/9550# a5 J; \  L* ~  x2 ^  I1 b3 w5 `
得P=5.06×1500/9550=0.79KW。$ x: R3 Q* T0 l  s- ]8 K
由上述计算可得需使用大于0.8KW电机。( G2 q( D$ e! h
注:1)P=M×n/9550公式由下列推导:5 C! X2 o6 v6 P: ?
   由P=F·V        ; \' ]8 E  ]$ ^5 D' d8 F
      M=F·R→F=M/R.......①
: W7 C2 K' B; G# @8 e9 ^. I      V=2πR×(每秒转速)=πRn(每分转速)/30.........②
, {- G. @7 [" y; x   将①②代入P=F·V得M/R×πRn(每分转速)/30,将P换为千瓦,
9 A5 q2 M5 |5 K+ V0 Y) \; I   则P×1000=π/30·M·n→30000/π·P=M×n→P=M×n/9550, H) u# t3 e* k+ I! I+ [
        ㈡式中J1为系统惯性矩,J2为预选电机惯性矩,GDs螺杆轴惯性矩,GDw为可动部惯性矩。
发表于 2013-5-13 13:40:55 | 显示全部楼层 来自: 中国安徽合肥
上述为我们机床产品中Z轴(上下运动,靠滚珠丝杆传动)电机功率,扭矩校核过程,楼主可适当参考。注意运动为上下垂直运动。你的图示为水平放置,还需要知道启动时间及启动后的速度。

评分

参与人数 1三维币 +3 收起 理由
驿马狂奔 + 3 应助

查看全部评分

发表于 2013-5-13 14:49:41 | 显示全部楼层 来自: 中国山西太原
1  先算出圆盘的惯性力矩T1,T1=J ε         
, Z! o/ x+ @% q6 _- n    式中J为转动惯量,对于圆盘,J=mr^2/2 (其中m为圆盘质量,r为圆盘半径)
: r- I$ F  A0 \7 M9 [; s7 h      ε为角加速度,可由启动时间(达到转速n所需用的时间)、正常速度求得。
, \+ A3 B! G! a. L2 l% ~1 ~! L2  求出支承的摩擦力矩T2, T2=FR  (F为摩擦力,R为磨擦力作用半径。)+ S, K& B/ ^% d' K2 N. p1 [
3  启动转扭矩为 T=T1+T2
% T9 J5 t, a6 T! I- _

评分

参与人数 1三维币 +5 收起 理由
驿马狂奔 + 5 应助

查看全部评分

 楼主| 发表于 2013-5-13 15:43:20 | 显示全部楼层 来自: 德国
多谢指教,我先研究研究!
发表于 2013-5-13 15:52:03 | 显示全部楼层 来自: 中国上海
感谢,学习论。
发表回复
您需要登录后才可以回帖 登录 | 注册

本版积分规则

Licensed Copyright © 2016-2020 http://www.3dportal.cn/ All Rights Reserved 京 ICP备13008828号

小黑屋|手机版|Archiver|三维网 ( 京ICP备2023026364号-1 )

快速回复 返回顶部 返回列表