QQ登录

只需一步,快速开始

登录 | 注册 | 找回密码

三维网

 找回密码
 注册

QQ登录

只需一步,快速开始

展开

通知     

查看: 1796|回复: 6
收起左侧

[已答复] 通孔旋转气压缸怎么做到密封

[复制链接]
发表于 2013-6-16 00:03:29 | 显示全部楼层 |阅读模式 来自: 中国江苏常州

马上注册,结识高手,享用更多资源,轻松玩转三维网社区。

您需要 登录 才可以下载或查看,没有帐号?注册

x
QQ截图20130616000113.png
- S5 n" i2 t1 M% s: g- f2 \
发表于 2013-6-16 15:27:20 | 显示全部楼层 来自: 中国上海
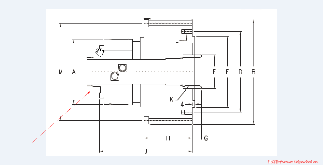
楼主提供的图纸没有看明白,估计楼主的问题应该是气缸既要能够实现整体旋转,还有能够实现伸缩。这方面的技术在液压上已经十分成熟了,就是在油缸后部安装一个旋转接头(也有人称为配油盘)。油缸随着设备旋转,液压油通过旋转接头送入油缸中,实现伸缩。

评分

参与人数 1三维币 +3 收起 理由
洪哥 + 3 讨论

查看全部评分

 楼主| 发表于 2013-6-16 21:01:15 | 显示全部楼层 来自: 中国江苏常州
schjie 发表于 2013-6-16 15:27 static/image/common/back.gif
7 p( P7 P# I7 i9 h9 g+ d& O/ U楼主提供的图纸没有看明白,估计楼主的问题应该是气缸既要能够实现整体旋转,还有能够实现伸缩。这方面的技 ...

1 ?2 D: }  X% L! h3 b: g) }) r大哥我这是汽缸 我所标的位置漏气 轴承部分不知道怎么密封 配气盘 设计不合理

评分

参与人数 1三维币 +2 收起 理由
洪哥 + 2 回应

查看全部评分

发表于 2013-6-17 21:36:24 | 显示全部楼层 来自: 中国上海
楼上是不是指图中箭头所指部位装有一个轴承,气从轴承部位漏掉了?难道轴承两侧没有密封吗?不过密封气体比密封液体的难度高。

评分

参与人数 1三维币 +3 收起 理由
洪哥 + 3 感谢帮助

查看全部评分

发表于 2013-6-18 10:10:14 | 显示全部楼层 来自: 中国广东深圳
不明白   看不懂
 楼主| 发表于 2013-6-18 16:37:56 | 显示全部楼层 来自: 中国江苏常州
schjie 发表于 2013-6-17 21:36 static/image/common/back.gif4 L/ O  ]' l) S  f% P
楼上是不是指图中箭头所指部位装有一个轴承,气从轴承部位漏掉了?难道轴承两侧没有密封吗?不过密封气体比 ...
; t% Z! V' f8 G: s7 Q# P
是啊 密封不了 漏气
发表于 2013-6-24 14:31:36 | 显示全部楼层 来自: 中国山东滨州
可以在轴承位做个配合件,孔中加工O型圈槽,使用O型圈密封。

评分

参与人数 1三维币 +3 收起 理由
洪哥 + 3 感谢帮助

查看全部评分

发表回复
您需要登录后才可以回帖 登录 | 注册

本版积分规则


Licensed Copyright © 2016-2020 http://www.3dportal.cn/ All Rights Reserved 京 ICP备13008828号

小黑屋|手机版|Archiver|三维网 ( 京ICP备2023026364号-1 )

快速回复 返回顶部 返回列表