QQ登录

只需一步,快速开始

登录 | 注册 | 找回密码

三维网

 找回密码
 注册

QQ登录

只需一步,快速开始

展开

通知     

查看: 3200|回复: 19
收起左侧

[已解决] 再来一个美国佬的零件,引高手出招

 关闭 [复制链接]
发表于 2006-8-7 15:11:47 | 显示全部楼层 |阅读模式 来自: 中国广东惠州

马上注册,结识高手,享用更多资源,轻松玩转三维网社区。

您需要 登录 才可以下载或查看,没有帐号?注册

x
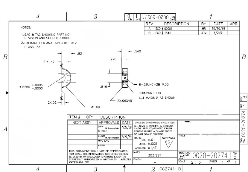
下图是一个来自美国订单的零件,加工机床数控车、铣及线切割。请本坛高手积极参与其工艺流程及工装夹具的讨论。
捕获_2.jpg
发表于 2006-8-7 16:18:49 | 显示全部楼层 来自: 中国浙江绍兴
请本坛高手积极参与其工艺流程及工装夹具的讨论
 楼主| 发表于 2006-8-7 19:05:23 | 显示全部楼层 来自: 中国广东惠州
此零件的工艺难度主要集中在内孔尺寸φ0.6250+0.0005/-0.0000这个尺寸,转换成公制的话公差带为0.0127MM,也就是孔圆柱度为0.00635MM。如果是整圆的话这个零件的加工就不难了。关健是半圆,先加工好这个孔后剖开的话,材料的应力变形就使圆柱度达不到要求了,先剖开后车的话装夹变形就超过圆柱度公差了。注意美国人是严格地依图面公差验收的,他们可以用三次圆在此孔的不同深度取3层碰72个点,都在公差带范围内才算是合格品。

评分

参与人数 1三维币 +3 收起 理由
sxw68 + 3

查看全部评分

发表于 2006-8-8 10:47:43 | 显示全部楼层 来自: 中国江苏苏州
建议使用车削中心做比较好,能一次成形包刮台阶孔及5-32UNC-2B的螺纹。
发表于 2006-8-8 13:50:03 | 显示全部楼层 来自: 中国辽宁葫芦岛
必须先剖开,然后加工,才能保证应力充分释放,这种零件要在夹具上下功夫了,可以设计夹具夹侧面,以圆周定位,然后夹平面,内外有同轴度要求吗!
发表于 2006-8-8 19:53:41 | 显示全部楼层 来自: 中国江苏常州
其实设计者已经考虑了加工问题,1.69得直径,而剖分平面到顶部高度是.82,有0.025的加工余量;很显然是考虑先剖分再加工其它项目的了。
 楼主| 发表于 2006-8-9 14:48:37 | 显示全部楼层 来自: 中国广东惠州
原帖由 HURCO 于 2006-8-8 10:47 发表6 V5 M) h9 Q3 _" T+ E( {
建议使用车削中心做比较好,能一次成形包刮台阶孔及5-32UNC-2B的螺纹。
7 s0 Q1 h# f  E, n; R
" L! T! k- W- F, Z( G
攻牙都是很好说的,在车削中心也保证不了孔的尺寸精度。
发表于 2006-8-11 09:57:49 | 显示全部楼层 来自: 中国广东佛山
攻牙都是很好说的,在车削中心也保证不了孔的尺寸精度。
发表于 2006-8-23 20:36:21 | 显示全部楼层 来自: 中国河北唐山
先剖分后在组装后加工内孔。
发表于 2006-8-24 18:50:20 | 显示全部楼层 来自: 中国江苏南京
1.先车外圆! ^8 J) @7 g2 w4 e8 g
2.慢走丝线切割内圆
 楼主| 发表于 2006-8-26 10:29:04 | 显示全部楼层 来自: 中国广东惠州
原帖由 youkey_qzy 于 2006-8-24 18:50 发表
7 S1 g5 x6 H$ b' T, }5 Z' K5 J1.先车外圆
* `* M+ o+ @  g1 B, }  w6 A4 I2.慢走丝线切割内圆

" T% Z$ W* ]' F+ Z4 W- p' w. _' e, {# V2 ]% x( N
零件需在自由状态下满足圆度需要,线割后的应力变形会使内孔尺寸超差。
发表于 2006-11-5 22:29:29 | 显示全部楼层 来自: 中国重庆
此零件的工艺难度主要集中在内孔尺寸φ0.6250+0.0005/-0.0000这个尺寸,转换成公制的话公差带为0.0127MM,也就是孔圆柱度为0.00635MM。内孔的精度要求比较高,其实此产品的加工方法很简单,在加工中心加工出内孔的尺寸精度后,在卧式加工中心拉之中分面和找正内孔定位后,直接加工就是了,只要床子的精度能够保证的话,应该可以加工出合格的产品

评分

参与人数 1三维币 +5 收起 理由
sxw68 + 5 技术讨论

查看全部评分

发表于 2006-11-9 23:41:08 | 显示全部楼层 来自: 中国重庆
割开------合并连接.  钻铰或拉削.   分别针对小批量和大批量. 用加工中心,个人认为成本太高.
发表于 2006-11-10 21:33:57 | 显示全部楼层 来自: 中国湖北鄂州
高手太多了,本人没有发言权,我这里的都普通机床,还没有数控的,不知道数控的精度好何
发表于 2006-11-11 01:00:26 | 显示全部楼层 来自: 中国广东佛山
无奈看不到内容:Q
发表于 2006-11-22 23:55:19 | 显示全部楼层 来自: 中国黑龙江牡丹江
我使新手 呵呵 我有个想法  把工件先刨开 然后粘合 再车 应该可以吧
发表于 2006-11-23 13:42:54 | 显示全部楼层 来自: 中国山东烟台
我想先用一块料将内孔加工出留一定余量,将其它尺寸加工出,再用线切割割开,再合在一起加工,由于加工量非常小,应该变形很小.能够满足要求.

评分

参与人数 1三维币 +3 收起 理由
sxw68 + 3 技术讨论

查看全部评分

 楼主| 发表于 2007-1-6 17:47:10 | 显示全部楼层 来自: 中国广东惠州
原帖由 PANXIAONAN 于 2006-11-23 13:42 发表
* V9 t9 \. B1 T; Y  Y' T: s我想先用一块料将内孔加工出留一定余量,将其它尺寸加工出,再用线切割割开,再合在一起加工,由于加工量非常小,应该变形很小.能够满足要求.

2 t4 |/ w* {& w3 }$ W# i
) W/ O! _0 H5 t' \9 C- z: e/ y 高见,我就是用此方法加工的,效果很好!检测时用气用测仪。
发表于 2007-1-7 12:07:25 | 显示全部楼层 来自: 中国江苏常州
我的加工路线如下:(先整体加工)
% M4 ~1 l9 C( X3 \$ F1 k1.数控车出内外圆及平面(内磨一下其实更好)
# {/ Z  P1 ]+ R. p& u2.线切割成两半" U$ {6 g) g3 g8 A1 X3 }
3.铣出沉孔(先铣是为了钻的时候不会导致钻头偏移)$ U/ V. ]9 w2 u( d8 Y
4.钻孔

评分

参与人数 1三维币 +5 收起 理由
sxw68 + 5 积极应助

查看全部评分

发表于 2007-1-7 20:08:39 | 显示全部楼层 来自: 中国江苏扬州
本人认为好象只有楼主和18楼的兄弟说的是对的,只有先将内孔加工到接近图纸要求公差,留少量加工余量。加工其它尺寸至图纸要求,再用线切割将其剖开,释放应力,再上螺钉拼和,加工内孔至图纸要求,才能加工出符合图纸要求的零件。我公司的一个零件与此非常相似,我们也试验过其他兄弟说过的方法,都不行。我最后也采用的是上述的方法才搞定的,所以说还是比较认可楼主和18楼的方法。

评分

参与人数 1三维币 +5 收起 理由
sxw68 + 5 热心参与帮助他人

查看全部评分

发表回复
您需要登录后才可以回帖 登录 | 注册

本版积分规则


Licensed Copyright © 2016-2020 http://www.3dportal.cn/ All Rights Reserved 京 ICP备13008828号

小黑屋|手机版|Archiver|三维网 ( 京ICP备2023026364号-1 )

快速回复 返回顶部 返回列表