QQ登录

只需一步,快速开始

登录 | 注册 | 找回密码

三维网

 找回密码
 注册

QQ登录

只需一步,快速开始

展开

通知     

查看: 3353|回复: 22
收起左侧

[求助] 对称图形的画法规定

[复制链接]
发表于 2013-8-8 17:15:47 | 显示全部楼层 |阅读模式 来自: 中国浙江嘉兴

马上注册,结识高手,享用更多资源,轻松玩转三维网社区。

您需要 登录 才可以下载或查看,没有帐号?注册

x
对称图形有时只画一半,然后在中心线两端点附近画二道横杠。这有什么具体的标准规定没有。
1 J' f) P" p# @4 e
发表于 2013-8-8 18:14:35 | 显示全部楼层 来自: 中国安徽合肥
不知道楼主具体是怎么表示的,可以参考下、
8 _9 Y+ `8 L: Q3 k; S
QQ截图20130808174755.jpg
QQ截图20130808175255.jpg
QQ截图20130808175430.jpg

评分

参与人数 1三维币 +2 收起 理由
asdolmlm + 2

查看全部评分

 楼主| 发表于 2013-8-8 20:57:03 | 显示全部楼层 来自: 中国浙江嘉兴
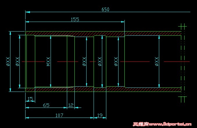
如图这样画是否规范,指得是只画零件的左半部分省略右半部分。
8 u" b. f' S( M
LU@HOIV@}3UG`]@2E`0O2Z9.jpg
发表于 2013-8-8 21:13:54 | 显示全部楼层 来自: 中国江西九江
zjjxtch 发表于 2013-8-8 20:57 static/image/common/back.gif
2 u) ?! }' O' p+ W, j+ c) I! B! M' W如图这样画是否规范,指得是只画零件的左半部分省略右半部分。

( k! Q) N$ `& p+ c5 _9 @% D机械行业,双点划线可表示“假想的轮廓线、极限位置轮廓线、相邻辅助零件轮廓线、中断线”。
 楼主| 发表于 2013-8-9 19:38:40 | 显示全部楼层 来自: 中国浙江嘉兴
就是啊,将中断后的另一半省略了,行不行啊。在技术要求里再注明一下。
发表于 2013-8-12 08:56:40 | 显示全部楼层 来自: 中国安徽合肥
不懂楼主的意思!
发表于 2013-8-14 14:33:24 | 显示全部楼层 来自: 中国江苏常州
楼主的意思是简化画法吗?可以那样表示
发表于 2013-8-14 17:08:32 | 显示全部楼层 来自: 中国安徽合肥
图示左半边和右半边对称的中心线在什么地方?觉得是断裂视图表示方法吧,但国标里好像断裂视图不是这么表示的。
 楼主| 发表于 2013-8-14 21:19:12 | 显示全部楼层 来自: 中国浙江嘉兴
zll3310737 发表于 2013-8-14 17:08 static/image/common/back.gif& ]3 X% o1 n- K0 \: [
图示左半边和右半边对称的中心线在什么地方?觉得是断裂视图表示方法吧,但国标里好像断裂视图不是这么表示 ...

# ~' w) R- T+ \2 _一个两端对称的管状零件中间不可能画条两端对称的中心线啊?不过我也不是很清楚所以讨论。
发表于 2013-8-15 10:36:44 | 显示全部楼层 来自: 中国安徽合肥
zjjxtch 发表于 2013-8-14 21:19 static/image/common/back.gif0 p# n! ~: s: N. Y
一个两端对称的管状零件中间不可能画条两端对称的中心线啊?不过我也不是很清楚所以讨论。

' P( H- r% P4 l0 Y2 i8 m! S: Q1 E那应该是5.12项表示的那样。
 楼主| 发表于 2013-8-15 20:52:25 | 显示全部楼层 来自: 中国浙江嘉兴
zll3310737 发表于 2013-8-15 10:36 static/image/common/back.gif
3 v+ ?# n: s% T那应该是5.12项表示的那样。

5 m2 n1 r& }. P& B1 ]应该还是有点不一样,因为没画到零件一半的位置。这张图在技术要求里作了说明,所以加工时都能理解。就是不知道是否符合标准。
发表于 2013-8-16 08:52:11 | 显示全部楼层 来自: 中国浙江温州
既然不是中线,又何来对称一说?( K7 s/ ]4 J9 D6 {3 b
我觉得还是用断开画法比较合适
 楼主| 发表于 2013-8-16 18:49:52 | 显示全部楼层 来自: 中国浙江嘉兴
qq625267377 发表于 2013-8-16 08:52 static/image/common/back.gif
& U  ^3 @3 ^5 x" z: b$ J6 r既然不是中线,又何来对称一说?' S6 Y9 O* \9 n1 H- K- a$ [% _9 Z
我觉得还是用断开画法比较合适
8 q: K* m- R0 w- d" `7 Q8 }0 x% m
断开能只画一半吗? 3楼的图就是一管状零件两端形状是一样的中间一段直园相连,所以想简单一点就画一半。实际上是一半都不到,因为中间的园管画多了也是浪费。
发表于 2013-8-17 07:22:26 | 显示全部楼层 来自: 中国浙江温州
你要是就想用对称画法,那就要先用断开画法,画到中线位置,然后参照5.12画法。
0 z6 }6 R  x5 @1 r* Z2 k这样就感觉麻烦了,一般的画法就是用断开画法,标注的时候还是标原长就可以了。
 楼主| 发表于 2013-8-17 12:03:39 | 显示全部楼层 来自: 中国浙江嘉兴
本帖最后由 zjjxtch 于 2013-8-18 14:24 编辑 3 T  F! {  |. n3 P/ J! O/ ^

$ U; R4 F1 H) Q. P; j/ K9 j& t想只画一小半,能表达清楚就可以。原来要用A2图纸打印现在A3就OK啦。因为A3图纸使用与保管都比较方便。
发表于 2013-8-17 13:39:46 | 显示全部楼层 来自: 中国江苏无锡
中心线与双点划线的用法用搞清楚,你这个明显不能用双点划线,中间对称线用中心线表示,右侧简化可以
 楼主| 发表于 2013-8-18 14:28:53 | 显示全部楼层 来自: 中国浙江嘉兴
骚丽的蜗壳丝 发表于 2013-8-17 13:39 static/image/common/back.gif
% ?' F/ @7 w, I, o7 y; f9 \中心线与双点划线的用法用搞清楚,你这个明显不能用双点划线,中间对称线用中心线表示,右侧简化可以

& I' C$ O( w/ i7 o, \! Z现在不考虑线的问题,因为这是有标准好查的。只是象这样画一小部分到底行不行。
发表于 2013-8-18 15:25:52 | 显示全部楼层 来自: 中国湖北鄂州
画一部分当然不行,只画一部分谁知道另外一部分什么样
发表于 2013-8-19 12:04:37 | 显示全部楼层 来自: 中国河南开封
应该可以镜像吧
 楼主| 发表于 2013-8-19 21:05:09 | 显示全部楼层 来自: 中国浙江嘉兴
本帖最后由 zjjxtch 于 2013-8-19 21:07 编辑   a" }# ~9 d$ J0 M* q
骚丽的蜗壳丝 发表于 2013-8-18 15:25 static/image/common/back.gif& U9 N6 H! Q1 w+ K9 V) {/ v2 ~# ]
画一部分当然不行,只画一部分谁知道另外一部分什么样
# }2 j7 }6 r, d( y
3楼的图就是一部分呀。155至端面两端是一样的。在技术要求再说明一下:右侧同形。
发表于 2013-8-20 10:28:26 | 显示全部楼层 来自: 中国浙江温州
既然只是一小部分,何来对称一说,要对称,就得从中线对称,楼主这样的画法,表示没见过。
对称画法.jpg
断开画法.jpg
发表于 2013-8-20 15:40:16 | 显示全部楼层 来自: 中国上海
这个要看情况吧,有些情况容易引起加工、安装人员的误解
发表于 2013-9-23 15:14:41 | 显示全部楼层 来自: 中国福建厦门
参考GB/T17451-1998《技术制图 图样画法 视图》中的6.3.2# ^$ v% i* _0 [! s4 Y# ?  l
对称.jpg
发表回复
您需要登录后才可以回帖 登录 | 注册

本版积分规则


Licensed Copyright © 2016-2020 http://www.3dportal.cn/ All Rights Reserved 京 ICP备13008828号

小黑屋|手机版|Archiver|三维网 ( 京ICP备2023026364号-1 )

快速回复 返回顶部 返回列表