QQ登录

只需一步,快速开始

登录 | 注册 | 找回密码

三维网

 找回密码
 注册

QQ登录

只需一步,快速开始

展开

通知     

查看: 1269|回复: 7
收起左侧

[讨论] 怎样焊接工装方案

[复制链接]
发表于 2013-9-23 14:35:58 | 显示全部楼层 |阅读模式 来自: 中国河北廊坊

马上注册,结识高手,享用更多资源,轻松玩转三维网社区。

您需要 登录 才可以下载或查看,没有帐号?注册

x
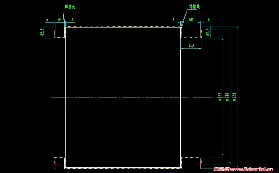
简单实用工装 进行批量生产
; V2 J  Q  g* {% R
1.JPG
发表于 2013-9-23 19:31:21 | 显示全部楼层 来自: 加拿大
只有一个视图 如果是长度方向 很长的话 需要做滚轮架 如果长度方向很薄 用框架固定上定位块 加上压紧器 就可以
发表于 2013-9-24 06:58:39 | 显示全部楼层 来自: 中国湖北鄂州
看了这张图,只差高度方向视图,不过不影响工装设计,看来楼主是刚进行工装设计或入门级的啊,建议去看下车间的类似工装,不要直接问。其实这个工装设计是非常简单的啊,自己先思考下
发表于 2013-9-24 07:48:42 | 显示全部楼层 来自: 中国山东烟台
内孔部分做成配合,在49尺寸处加合适的挡板即可
发表于 2013-9-24 22:28:52 | 显示全部楼层 来自: 中国四川成都
考虑好不影响批量生产时的效率就可以了  这个我觉得焊装 注意这点  其他影响都不大
发表于 2013-9-25 11:48:26 | 显示全部楼层 来自: 中国上海
这个笼统的说可以做个回转架, 因为楼主你环状槽钢和钢板的焊接符号及公差没给出, 别人没法帮到你给出要多少夹持器. 以后要给出具体的要求,人家才能帮你啊.
发表于 2013-9-27 08:52:43 | 显示全部楼层 来自: 中国重庆
亲:看不全图.不好说.工装说白了就是定位.你用最简单的方法.把位定住了就OK了.
发表于 2013-9-27 10:04:50 | 显示全部楼层 来自: 中国安徽蚌埠
自制可调速旋转工作台:台下小电机和调速器。
发表回复
您需要登录后才可以回帖 登录 | 注册

本版积分规则


Licensed Copyright © 2016-2020 http://www.3dportal.cn/ All Rights Reserved 京 ICP备13008828号

小黑屋|手机版|Archiver|三维网 ( 京ICP备2023026364号-1 )

快速回复 返回顶部 返回列表