QQ登录

只需一步,快速开始

登录 | 注册 | 找回密码

三维网

 找回密码
 注册

QQ登录

只需一步,快速开始

展开

通知     

查看: 2521|回复: 2
收起左侧

[原创] 刚性套筒在湿式缸套珩磨加工中的应用

 关闭 [复制链接]
发表于 2006-9-23 16:53:13 | 显示全部楼层 |阅读模式 来自: 中国河北沧州

马上注册,结识高手,享用更多资源,轻松玩转三维网社区。

您需要 登录 才可以下载或查看,没有帐号?注册

x
刚性套筒在湿式缸套珩磨加工中的应用+ X# o6 {* U1 c4 m: R
* Y* o7 p! d; k# [  i9 Y. v% d% a
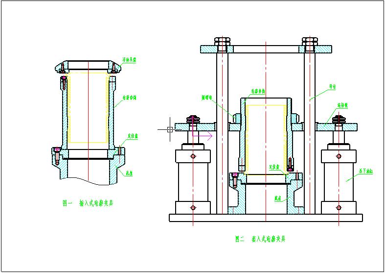
概要:介绍了刚性套筒在湿式气缸套加工中的应用,即以刚性套筒的内孔径向定位、以套筒的端面进行轴向定位对湿式缸套进行珩磨加工。避免了因支承肩上端面与缸套尾部端面不平行造成的夹紧变形。1 m' \- b- M# u) B: Z
& L' u1 A% P! v" p3 D: ~% _- B6 t
一直以来,行业内大部分厂家在湿式缸套的珩磨工序多采用以下几种方法:以支承肩外圆和上端面进行定位,对裙部端面实施夹紧;或以支承肩下断面及上腰带进行定位,利用气囊夹具对缸套外圆进行柔性夹紧等方法。在实际工作中,前一类夹具因刚性夹紧易使缸套产生腰鼓形变形和使裙部薄弱端产生椭圆;而后一类虽克服了以上缺点但结构较复杂,制造成本较高。
9 j4 J- Q! s5 s& {8 r1 w# I经我们反复探索,综合了几种夹具的特点,设计了一种结构简单易行的刚性珩磨套,经实验取得了较理想的效果。
% h5 H& U* I3 Z6 N6 x9 N6 C4 M这种夹具根据夹紧结构不同有两种工件装入方式:插入式和套入式(如图一、二)。对设备的要求方面,插入式适宜在双工位珩磨机上使用;套入式则无此要求。
. R3 V$ p6 G" x% {插入式珩磨夹具由压下油缸、珩磨套筒、定位盘、底座等几部分构成。其中珩磨套筒是本夹具的主要定位元件,其在径向以套筒的内孔与缸套的下腰带定位,根据不同工序的下腰带工艺尺寸,可设计珩磨套筒的不同的定位内孔尺寸,一般保持0.1mm的间隙为宜,以方便装卸工件。在轴向,以支承肩下端面定位。压下油缸压持支承肩上端面实施夹紧。为了避免压下油缸损伤支承肩上端面,可在中间夹以软金属垫环。
, E; w  s. v) N9 r( O( o8 `9 i/ @) n在珩磨过程中,缸套受珩磨头的径向压力和轴向摩擦力,使缸套体在珩磨套筒中有一些摆动,但珩磨套筒的定位孔使摆动幅度受到限制,不会对支承肩下端面与上腰带的结合部产生较大的力。由于在珩磨过程中,缸套体没有任何夹持力,所以不会产生变形。7 t0 ?% Z+ _# P, Q  @
套入式珩磨夹具由定位盘、底座、珩磨套筒、导柱和压下油缸等元件构成。在轴向,由定位盘定位;在径向,由珩磨套筒定位内孔与缸套下腰带结合实施定位。支承肩下端面系夹紧面。其原理一同插入式夹具,但操作更方便。
  x) G- `; s6 K- W! ^8 S在设计和制造及安装调整夹具时要注意以下几点:1。设计时,压下油缸的行程要大于缸套的高度。对于插入式夹具,为方便工件取出,珩磨套筒上端面要设计并铣出两个可以容进手指的沟槽。2.珩磨套筒的定位内孔和与其在定位盘上定位的外圆及端面要一次装夹车出,以保证其良好的定位效果。3.安装时要调整珩磨套筒与机床主轴保持合乎工艺的同轴精度。
9 T6 ?$ ~0 M3 X$ L* e5 E( A该夹具在工作时,缸套体几乎没有任何外力使之产生弹性变形.所以珩磨头可以有效地修正内孔的椭圆,使内孔获得符合工艺要求的圆柱度。
; r: W4 J* X1 G% o( t* A
5 @: [8 P: B, P4 `6 ?# R附图:共一页。
; W: P. v& A  B+ v  y/ ~( l" J4 `

. j4 B/ z- Y) `: @. `. C
% i, i2 X1 I. A; N, a[ 本帖最后由 渔樵 于 2006-9-25 07:49 编辑 ]

论文图五.rar

23.93 KB, 下载次数: 8

评分

参与人数 1三维币 +5 收起 理由
渔樵 + 5 好资料

查看全部评分

发表于 2006-9-24 09:07:59 | 显示全部楼层 来自: 中国湖北十堰
是个绗磨夹具图,不知道楼主发上来做什么,最好能进行下介绍!
1.jpg
发表于 2007-7-15 07:08:36 | 显示全部楼层 来自: 中国江苏常州
很需要这个资料,谢谢楼主!! :handshake
发表回复
您需要登录后才可以回帖 登录 | 注册

本版积分规则


Licensed Copyright © 2016-2020 http://www.3dportal.cn/ All Rights Reserved 京 ICP备13008828号

小黑屋|手机版|Archiver|三维网 ( 京ICP备2023026364号-1 )

快速回复 返回顶部 返回列表