QQ登录

只需一步,快速开始

登录 | 注册 | 找回密码

三维网

 找回密码
 注册

QQ登录

只需一步,快速开始

展开

通知     

全站
7天前
查看: 1469|回复: 2
收起左侧

[求助] 涡轮蜗杆安装

[复制链接]
发表于 2013-10-22 17:55:04 | 显示全部楼层 |阅读模式 来自: 中国上海

马上注册,结识高手,享用更多资源,轻松玩转三维网社区。

您需要 登录 才可以下载或查看,没有帐号?注册

x
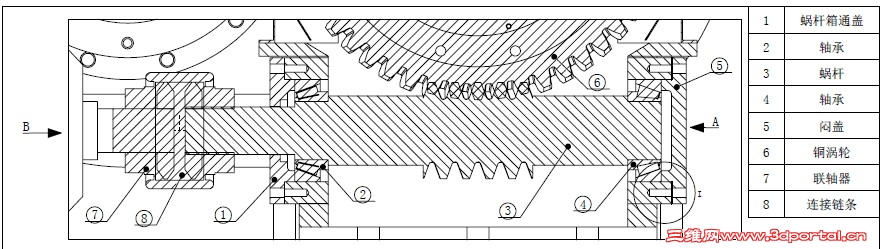
如图,涡轮蜗杆和轴承如何正确去安装,请高手指点安装详细步骤?包络蜗杆也同样安装方法吗?
32.jpg
发表于 2013-10-23 09:07:36 | 显示全部楼层 来自: 中国山西太原
1  先安装蜗轮,如果壳体是剖分的,将蜗轮装到轴上,再装轴承,放入轴承箱,压上减速机盖,联接,装上轴承盖。6 B5 s- m& H* f" W9 k
2  将蜗杆左端装轴承及轴承盖,装上联轴器。右端装上轴承内畔。穿入蜗杆,固定左端轴承盖,装入右端外圈,调好间隙,压上轴承盖。
: J' T% c+ s' r) y" @# o3  联轴器装在电机轴头,安装电机,联接联轴器。
发表于 2014-6-5 13:56:31 | 显示全部楼层 来自: 中国安徽蚌埠
学习了
发表回复
您需要登录后才可以回帖 登录 | 注册

本版积分规则

Licensed Copyright © 2016-2020 http://www.3dportal.cn/ All Rights Reserved 京 ICP备13008828号

小黑屋|手机版|Archiver|三维网 ( 京ICP备2023026364号-1 )

快速回复 返回顶部 返回列表