QQ登录

只需一步,快速开始

登录 | 注册 | 找回密码

三维网

 找回密码
 注册

QQ登录

只需一步,快速开始

展开

通知     

查看: 1569|回复: 15
收起左侧

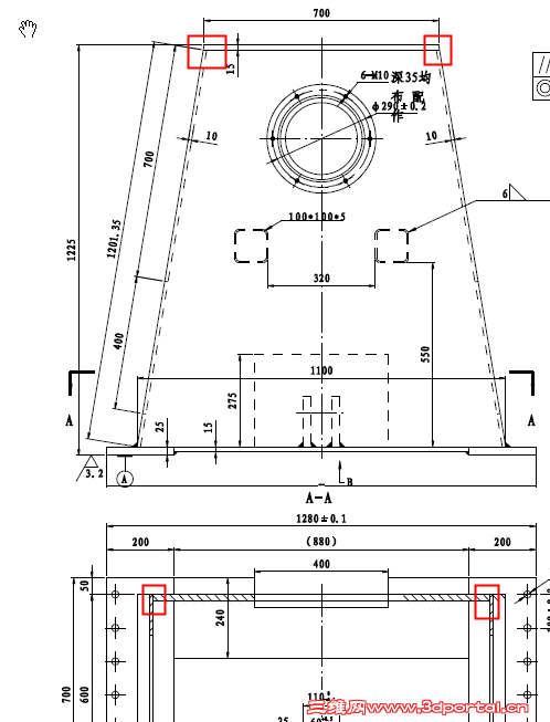
[求助] 求大神指点,板类焊接件

[复制链接]
发表于 2013-11-16 10:54:29 | 显示全部楼层 |阅读模式 来自: 中国山东潍坊

马上注册,结识高手,享用更多资源,轻松玩转三维网社区。

您需要 登录 才可以下载或查看,没有帐号?注册

x
这种焊接件,一般怎么建模,现在毫无头绪1 M+ k/ u) U  \5 \

.pdf

128.99 KB, 下载次数: 22

发表于 2013-11-16 17:22:17 | 显示全部楼层 来自: 中国四川攀枝花
这个图还是很好建模的,正好有空,帮你画一下,有些细节未画,你自己补上吧。
4 d$ e5 W7 N% W9 d7 B" m8 K5 i 快照6.png : i7 V) }$ r& E1 S1 c
SW 2012版文件: 机身.rar (327.91 KB, 下载次数: 18)

评分

参与人数 1三维币 +3 收起 理由
阿帕奇 + 3

查看全部评分

发表于 2013-11-16 17:29:53 | 显示全部楼层 来自: 中国四川攀枝花
补充说明一下,楼主图里,主视图看,左、右两边的板是夹在前后两块板里的,俯视图上看却是左、右两块板夹前、后两块板,这两视图是矛盾的。
4 p6 @2 ~; c( D  x上图是以主视图为准来画的。+ O7 @" X' p; U5 N, T. W
快照7.png 3 \% ~" s4 j: V4 u+ O) T2 }9 l

评分

参与人数 1三维币 +3 收起 理由
阿帕奇 + 3

查看全部评分

 楼主| 发表于 2013-11-19 14:30:31 | 显示全部楼层 来自: 中国山东潍坊
pzhzs 发表于 2013-11-16 17:22 static/image/common/back.gif
$ B. k5 D7 N7 z( O. ?' T这个图还是很好建模的,正好有空,帮你画一下,有些细节未画,你自己补上吧。
& ]2 [; m9 Y7 S  k6 j; b9 O& u$ S$ \+ @, U, {% _! q
SW 2012版文件:
1 d3 V8 T" e2 D
谢大神指点,本人图纸有点问题,我主要是想知道建模怎么键??能不能把你的创建过程讲解一下,现在很纠结
发表于 2013-11-19 14:40:48 | 显示全部楼层 来自: 中国四川攀枝花
本帖最后由 pzhzs 于 2013-11-19 14:44 编辑
3 K4 y8 d' c) O/ p
燃烧の灵魂 发表于 2013-11-19 14:30 static/image/common/back.gif
; ~* [2 N5 _7 C4 U  ?) [谢大神指点,本人图纸有点问题,我主要是想知道建模怎么键??能不能把你的创建过程讲解一下,现在很纠结

- N# ~% ~3 k. V- ?8 p你把右侧的特征树打开,一步一步地往下看就知道怎么建模的了。6 w5 ?$ H3 x! h. C. s" k
lx.gif
8 ^1 k( l2 @& h6 I3 m% b/ p; z7 {6 L6 ]6 z& B" f8 ?8 _% P! o
 楼主| 发表于 2013-11-19 14:46:22 | 显示全部楼层 来自: 中国山东潍坊
pzhzs 发表于 2013-11-16 17:29 static/image/common/back.gif
& ?! `) _8 e1 `6 b. u4 a, @补充说明一下,楼主图里,主视图看,左、右两边的板是夹在前后两块板里的,俯视图上看却是左、右两块板夹前 ...
- A6 p3 [1 w- u! S0 I& V
你的版本有点高,我的2011版
$ G6 V0 r' X% h, u- p大哥能不能给发个2011的
发表于 2013-11-19 14:49:18 | 显示全部楼层 来自: 中国四川攀枝花
燃烧の灵魂 发表于 2013-11-19 14:46 static/image/common/back.gif3 e( x4 ~' H* e8 x
你的版本有点高,我的2011版( T* h5 _0 r7 Z2 m  Y- K. n6 M
大哥能不能给发个2011的
7 t3 Q3 o5 Y8 k
sw不能存为低版本的格式
 楼主| 发表于 2013-11-19 14:53:08 | 显示全部楼层 来自: 中国山东潍坊
pzhzs 发表于 2013-11-19 14:49 static/image/common/back.gif7 l3 Q" a5 z) P8 T5 h
sw不能存为低版本的格式

. H4 A5 z# j4 x5 m新建零件-焊件-然后各种拉伸切除是吧?' z2 o9 c, j" J) \( g2 s
虽然不能看到更详细的,不过这已经很好了。非常感谢
发表于 2013-11-19 15:06:04 | 显示全部楼层 来自: 中国四川攀枝花
燃烧の灵魂 发表于 2013-11-19 14:53 static/image/common/back.gif: _! S4 U$ J& f4 `8 {3 \; P8 H
新建零件-焊件-然后各种拉伸切除是吧?8 }, ]. n+ g/ @2 Z: E
虽然不能看到更详细的,不过这已经很好了。非常感谢
1 ?! e" ?# t" e' v7 [5 F0 M$ B
这个焊件的建模很简单,只用得到几个基本的建模特征。: P0 l. ^/ ^: _% v
前面那个动画把前三个特征演示了出来,焊件的基本轮廓也出来了。
; X! M8 O) u- m  `2 Y7 m  P' C1 [" a
要注意的一点就是,拉伸或切除时要把『合并结果』的勾去掉,否则建出来的模型是一个实体,就出不了切割清单了。
: _+ O& G; m- y" \ 快照19.png

评分

参与人数 1三维币 +3 收起 理由
阿帕奇 + 3

查看全部评分

 楼主| 发表于 2013-11-19 15:16:24 | 显示全部楼层 来自: 中国山东潍坊
pzhzs 发表于 2013-11-19 15:06 static/image/common/back.gif# H1 X. J3 X! a. E. Q# S
这个焊件的建模很简单,只用得到几个基本的建模特征。' K/ R& L9 e1 ?$ @2 @+ |; Y1 _8 @
前面那个动画把前三个特征演示了出来,焊件的基本 ...
7 I7 A0 Y( [: a( Y- W4 `
. w4 n- @. S, C: X! u
切割清单怎样出?可以教一下吗?有资料也行
发表于 2013-11-19 16:28:22 | 显示全部楼层 来自: 中国四川攀枝花
去看 SW 自带的帮助文件,或者在论坛里找
0 }8 v2 Q. q5 s' p2 H 快照1.png
) `, L4 t3 u3 t7 l* s

评分

参与人数 1三维币 +3 收起 理由
阿帕奇 + 3

查看全部评分

 楼主| 发表于 2013-11-20 11:35:27 | 显示全部楼层 来自: 中国山东潍坊
pzhzs 发表于 2013-11-19 16:28 static/image/common/back.gif' e# u' Q& I' {2 B+ u6 @- Y
去看 SW 自带的帮助文件,或者在论坛里找
* u  u; H( W8 L+ i0 l  F
发表于 2013-11-28 08:50:24 | 显示全部楼层 来自: 中国上海
SW认为的焊件我认为是型钢之类的型材,类似于钢结构
# k  A& @$ R7 r. G9 a, q很多机械焊接结构,与SW软件的焊件不一定是一回事的. ]6 U( r, Z$ Y" o7 S1 V
当然这个不是绝对的,如果把钢板等所有焊接结构用焊件功能来做,我认为太麻烦了
  e4 @8 o0 G+ J. N6 c3 w3 z  u焊接结构首先类型很多,除非只关心当前的模型,但是换了模型形式,你还要单独设置,
9 b2 [1 n; b( t工作量可想而知
: y8 i, a  F- r
发表于 2014-1-19 21:03:25 | 显示全部楼层 来自: 中国山东烟台
pzhzs 发表于 2013-11-19 15:06 static/image/common/back.gif
0 Y8 g. t0 e7 M2 r+ B" W这个焊件的建模很简单,只用得到几个基本的建模特征。
% _3 p6 U" f! z  y" ]- x前面那个动画把前三个特征演示了出来,焊件的基本 ...
, R/ m# V! Q  S! x$ b: W
学到很多,谢谢!
发表于 2014-1-19 21:39:02 | 显示全部楼层 来自: 中国山东烟台
pzhzs 发表于 2013-11-19 15:06 static/image/common/back.gif
) }( f, ?( R7 G( k& Z这个焊件的建模很简单,只用得到几个基本的建模特征。
# M) q0 Q5 O1 z3 i/ I前面那个动画把前三个特征演示了出来,焊件的基本 ...

  j5 f8 R/ @* q# }( Y" z- [请教一下,我如果想用加强筋的话,怎么加,怎么再进行应力分析啊
发表于 2014-1-19 23:06:20 | 显示全部楼层 来自: 中国四川攀枝花
金乘四贤 发表于 2014-1-19 21:39 static/image/common/back.gif
& f+ _" l, y: y2 d2 t请教一下,我如果想用加强筋的话,怎么加,怎么再进行应力分析啊

. M2 ]) w+ t7 A. ?/ A" n用焊件里的『角撑板』就可以做加强筋。6 x4 M) V% T: J# F, I
快照16.png $ o3 }" ^7 D6 B: D! {! u
应力分析要用 Simulation 插件来做,具体的用法可以看 SW 自带的帮助。* J1 z- ]/ m6 C. k0 ~6 G
快照19.png
发表回复
您需要登录后才可以回帖 登录 | 注册

本版积分规则


Licensed Copyright © 2016-2020 http://www.3dportal.cn/ All Rights Reserved 京 ICP备13008828号

小黑屋|手机版|Archiver|三维网 ( 京ICP备2023026364号-1 )

快速回复 返回顶部 返回列表