QQ登录

只需一步,快速开始

登录 | 注册 | 找回密码

三维网

 找回密码
 注册

QQ登录

只需一步,快速开始

展开

通知     

全站
7天前
查看: 3100|回复: 8
收起左侧

[已答复] 同轴度要求为0如何检测

[复制链接]
发表于 2013-12-10 15:30:07 | 显示全部楼层 |阅读模式 来自: 中国北京

马上注册,结识高手,享用更多资源,轻松玩转三维网社区。

您需要 登录 才可以下载或查看,没有帐号?注册

x
1.png 2.png : o- Q1 R$ l6 |. }2 V
" S7 @, q3 [" T, C% p5 L

: B! E3 i; P* {" s* @! N6 A+ P# E2 m( w8 a) l8 u  I5 |
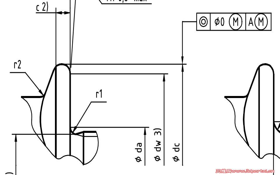
有这么个零件,是个螺栓,图纸要求法兰对基准A 的同轴度,在最大实体下为0.请问这样的要求如何检测?; ]6 _8 G3 c# m. A, N" c9 V
另外,如果基准A是个螺纹又如何呢?这个螺纹是M6-6e的精度。
发表于 2013-12-10 16:26:38 | 显示全部楼层 来自: 中国湖北黄冈
就是最大实体条件下公差为0才合格。偏离最大实体条件则公差等于偏离值。检查方法同一般同轴度的检测方法。

评分

参与人数 1三维币 +2 收起 理由
驿马狂奔 + 2 应助

查看全部评分

 楼主| 发表于 2013-12-11 09:07:20 | 显示全部楼层 来自: 中国北京
tangcarlos3d 发表于 2013-12-10 16:26 static/image/common/back.gif
* E# r3 {  ^( B' T: f: c. U* y1 R9 ~就是最大实体条件下公差为0才合格。偏离最大实体条件则公差等于偏离值。检查方法同一般同轴度的检测方法。

4 f: g: q% q6 s5 ], ^. x% B2 E) Z1 Y我不明白的是,如果2个尺寸都不是最大实体的时候,同轴度公差应该如何确定?比如尺寸是19.9-20 ,那么在20且基准尺寸也是上限的情况下,同轴度允差为0。但如果尺寸是19.95或19.98时,同轴度允差是多少?
发表于 2013-12-11 10:09:03 | 显示全部楼层 来自: 中国湖北黄冈
检测部位、基准都使用最大实体条件,目的主要是保证可装配性。检测部位、基准的实际偏离值都可叠加到同轴度公差去。
发表于 2013-12-11 10:54:40 | 显示全部楼层 来自: 中国山西太原
celia 发表于 2013-12-11 09:07 static/image/common/back.gif1 R- v1 k, u% C0 l; k
我不明白的是,如果2个尺寸都不是最大实体的时候,同轴度公差应该如何确定?比如尺寸是19.9-20 ,那么在2 ...

. q) V, u2 x' ^' z" Z* j4 V2 p轴的尺寸在最大实体状态时,同轴度公差只能为0,如果尺寸偏离了最大实体状态,偏离的差值就可补偿给同轴度误差。如你所列举的尺寸是19.95时,同轴度误差可为φ0.05mm;尺寸是19.98时同轴度误差可为φ0.02mm。

评分

参与人数 1三维币 +3 收起 理由
驿马狂奔 + 3 应助

查看全部评分

 楼主| 发表于 2013-12-11 12:02:31 | 显示全部楼层 来自: 中国北京
gaoyns 发表于 2013-12-11 10:54 static/image/common/back.gif6 I5 e" O2 b) X! x/ h
轴的尺寸在最大实体状态时,同轴度公差只能为0,如果尺寸偏离了最大实体状态,偏离的差值就可补偿给同轴度 ...
, O/ Q$ x2 b2 a4 U
如果基准外圆尺寸小了,减小值是否也可以加入同轴度偏差值?
) @1 ~3 C" C3 i/ ~1 _6 m另外如果基准是螺纹,检验时应该以外圆定位还是以螺纹孔定位为好?
发表于 2013-12-11 17:29:23 | 显示全部楼层 来自: 中国山西太原
celia 发表于 2013-12-11 12:02 static/image/common/back.gif3 u5 O$ m; C4 W" X2 c
如果基准外圆尺寸小了,减小值是否也可以加入同轴度偏差值?
2 s- t; J9 V. w1 h, w' k另外如果基准是螺纹,检验时应该以外圆定位 ...

$ V& l2 V  ]( }* @$ `; Q8 g1  这里是以φds的中心线为基准,如果基准符号后有圈M,即基准也有最大实体要求,φds尺寸小了,小的差值可以补偿给同轴度误差。你的图没有把全部标注截出来。& u) i5 `. u$ Q, u" u
2  一般是以螺纹中心线为基准,应检测螺纹中径柱面的同轴度。因为中径柱面直接检测不到,也可用大径柱面来间接检测。

评分

参与人数 1三维币 +5 收起 理由
驿马狂奔 + 5 应助

查看全部评分

 楼主| 发表于 2013-12-12 13:19:03 | 显示全部楼层 来自: 中国北京
gaoyns 发表于 2013-12-11 17:29 static/image/common/back.gif7 i9 A( [/ t# i' x- p3 U: U/ N
1  这里是以φds的中心线为基准,如果基准符号后有圈M,即基准也有最大实体要求,φds尺寸小了,小的差值 ...

7 I% n  u( S, [6 m0 ?关于第2项,使用螺纹为基准,有2个方法:
2 R# L- a% [- y7 k$ W2 q1、用螺纹孔做基准,似乎无法体现最大实体原则; a# W5 T% m$ ]7 w
2、用螺纹大、中径做基准,6e精度一般是0.2,这样定位孔尺寸确定比较麻烦,除非是用V型块定位。
发表于 2013-12-13 07:28:49 | 显示全部楼层 来自: 中国山西太原
celia 发表于 2013-12-12 13:19 static/image/common/back.gif
+ K) H( q' q  d1 y8 s: d% E) r关于第2项,使用螺纹为基准,有2个方法:
9 H  S  l- `2 X& R! u1、用螺纹孔做基准,似乎无法体现最大实体原则. v! Q' y  R% p9 t3 W5 v
2、用螺纹大、 ...

# _  D0 _- k1 u/ l( f% o3 o$ a; V( f: l1. 你画的是螺杆图,只能在本图中选基淮要素,不能在另一张有螺孔的图中去选基准。* `9 ~  b  Q" c3 w" U: d  w* O
2   螺孔作基准时也可有最大实体状态,那就是螺孔最小时,偏离了最小值也可补偿位置公差。

评分

参与人数 1三维币 +3 收起 理由
驿马狂奔 + 3 应助

查看全部评分

发表回复
您需要登录后才可以回帖 登录 | 注册

本版积分规则

Licensed Copyright © 2016-2020 http://www.3dportal.cn/ All Rights Reserved 京 ICP备13008828号

小黑屋|手机版|Archiver|三维网 ( 京ICP备2023026364号-1 )

快速回复 返回顶部 返回列表