QQ登录

只需一步,快速开始

登录 | 注册 | 找回密码

三维网

 找回密码
 注册

QQ登录

只需一步,快速开始

展开

通知     

全站
7天前
查看: 2825|回复: 13
收起左侧

[求助] 觉的我画的有种怪怪感觉的,大家进来看看怎么画?教教我

[复制链接]
发表于 2013-12-17 13:27:10 | 显示全部楼层 |阅读模式 来自: 中国上海

马上注册,结识高手,享用更多资源,轻松玩转三维网社区。

您需要 登录 才可以下载或查看,没有帐号?注册

x
本帖最后由 2005llnn 于 2013-12-17 14:17 编辑 # N+ l1 p% M- _7 y
! f3 A9 z6 ~6 K! ?, T) @" Q
TSA007881_F_BL2.zip (1.89 MB, 下载次数: 47)
原图.jpg

TSA007881_F_BL2.zip

670.86 KB, 下载次数: 17

这是原图

发表于 2013-12-17 15:21:28 | 显示全部楼层 来自: 中国广东深圳
我觉得楼主应该先把外文翻译下附在图上比较好让大家看图,楼主觉得呢?
 楼主| 发表于 2013-12-18 14:46:03 | 显示全部楼层 来自: 中国上海
小刘-到 发表于 2013-12-17 15:21 static/image/common/back.gif/ o; l0 {( x, J# ~5 c& @- R
我觉得楼主应该先把外文翻译下附在图上比较好让大家看图,楼主觉得呢?
) s. _  k. T: D6 c8 c& W1 C1 U
这个我无能为力,这是德语。
 楼主| 发表于 2013-12-18 14:53:10 | 显示全部楼层 来自: 中国上海
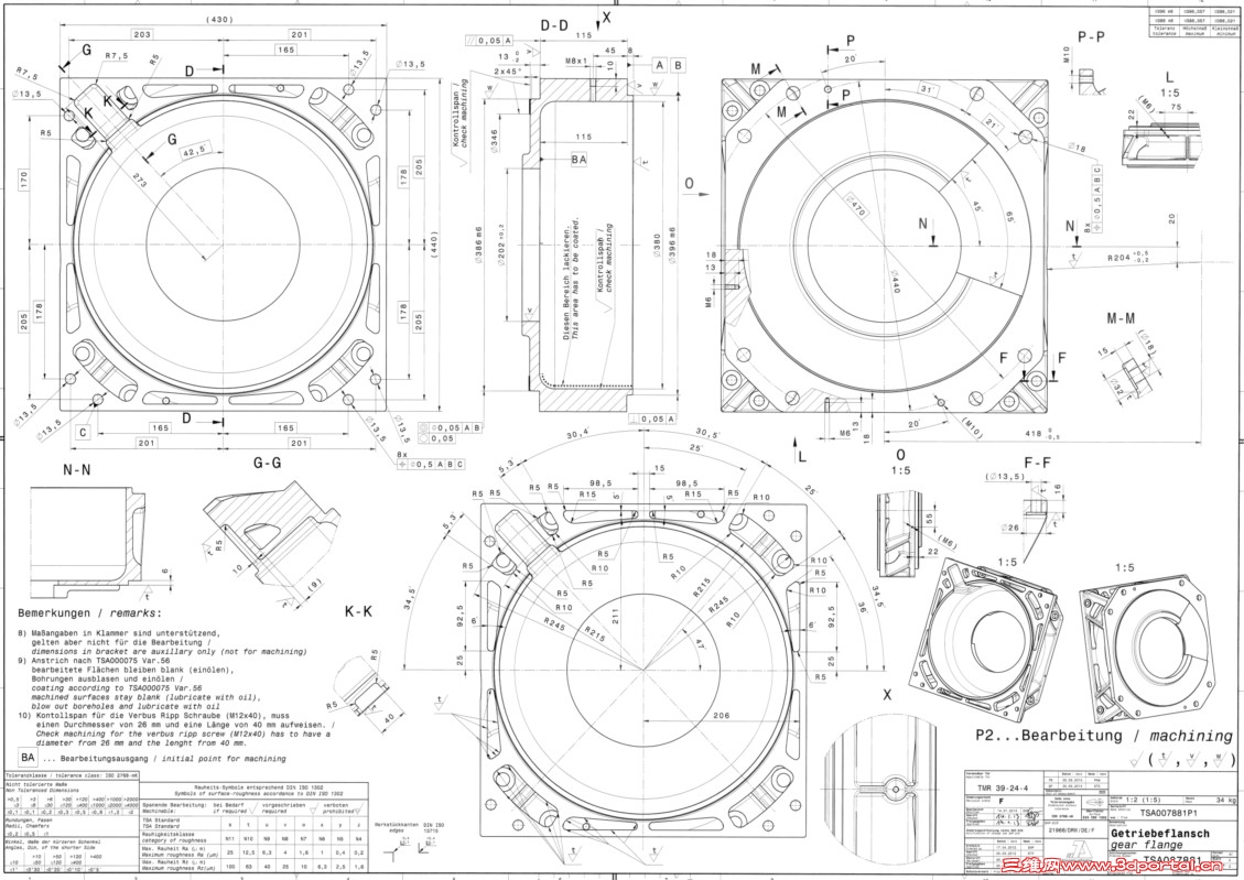
没有人能说说这图边上的那个小槽子怎么画的吗?
发表于 2013-12-19 15:41:06 | 显示全部楼层 来自: 中国浙江杭州
感觉原图是三维转二维而来的。你画的东西就很少,就一点点东西啊。槽是哪条槽呢?最好在原图上做个标记!
 楼主| 发表于 2013-12-19 18:07:29 来自手机 | 显示全部楼层 来自: 中国上海
zyzxct 发表于 2013-12-19 15:41
2 p4 E1 c1 g1 H6 B5 U& u感觉原图是三维转二维而来的。你画的东西就很少,就一点点东西啊。槽是哪条槽呢?最好在原图上做个标记!

% {/ N8 @1 O. n5 k对的在原图上标的那个,你能说说你是怎么画那个槽子的吗?
 楼主| 发表于 2013-12-19 18:11:05 来自手机 | 显示全部楼层 来自: 中国上海
本帖最后由 xll0606 于 2013-12-19 18:13 编辑
9 Q2 ~! e1 m' X  V" R: L" @1 W  w8 n# r( B. b2 z) @+ E+ E

3 `7 }" A* D  X$ b, o; V* b7 z# i; Q1 C2 u! @+ G& y  i
第一个压缩包里有。1.8M的那个里面有我标了
发表于 2013-12-25 20:13:17 | 显示全部楼层 来自: 中国辽宁本溪
不知所云啊,不理解
发表于 2013-12-26 13:11:37 | 显示全部楼层 来自: 中国辽宁本溪
凹槽上面没有相切,其他的画的挺好
发表于 2013-12-26 13:29:23 | 显示全部楼层 来自: 中国辽宁本溪
步骤:
* x$ ~5 X" W( \4 _- d6 a' J% s1.画92.5线段.
( L( g/ y8 y' y. D1 m2.上下画∅10圆
$ b. L0 ~+ `9 ]9 B3.以圆心复制旋转步骤1画的8 b. a, S  G7 b! [
  线段(6°&-54°)% p: l. P) H' k8 J5 c  s
4.旋转的线段各自偏移5mm0 O) c5 @" W! b3 J# Q( U
5.修剪及倒R10圆角.: f! O4 [$ o- p9 f
7881-Model.jpg

评分

参与人数 1三维币 +5 收起 理由
2005llnn + 5 应助

查看全部评分

发表于 2013-12-26 13:36:49 | 显示全部楼层 来自: 中国广东深圳
我的多多学学啊
发表于 2013-12-26 17:22:52 | 显示全部楼层 来自: 中国湖北十堰
你也先画个3维的,然后再出平面图
发表于 2013-12-29 16:07:26 | 显示全部楼层 来自: 中国山东青岛
下了自己试试看
 楼主| 发表于 2014-1-3 14:54:32 | 显示全部楼层 来自: 中国浙江嘉兴
zenghooyan 发表于 2013-12-26 13:29 static/image/common/back.gif' {0 l1 `5 d" I  ~6 q# f
步骤:
: H# M& o& X" m9 C1.画92.5线段.6 h. ~2 M5 B( n7 v, X8 {
2.上下画∅10圆

: a* D/ j3 `# y$ V" r非常感谢,我画好了,我的和你画的方发不一样 我现画92.5在画圆是一样的,我复制旋转92.5是以92.5端点,在给它相切约束。
发表回复
您需要登录后才可以回帖 登录 | 注册

本版积分规则


Licensed Copyright © 2016-2020 http://www.3dportal.cn/ All Rights Reserved 京 ICP备13008828号

小黑屋|手机版|Archiver|三维网 ( 京ICP备2023026364号-1 )

快速回复 返回顶部 返回列表