QQ登录

只需一步,快速开始

登录 | 注册 | 找回密码

三维网

 找回密码
 注册

QQ登录

只需一步,快速开始

展开

通知     

查看: 1199|回复: 0
收起左侧

[求助] UG4.0工程图箭头尾部长度修改

[复制链接]
发表于 2013-12-31 19:40:33 | 显示全部楼层 |阅读模式 来自: 中国北京

马上注册,结识高手,享用更多资源,轻松玩转三维网社区。

您需要 登录 才可以下载或查看,没有帐号?注册

x
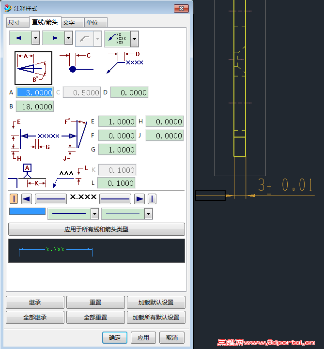
UG4.0里标线性尺寸时箭头尾部太长 没有修改的地方 剖视图箭头就有修改整体长度的地方  哪位高手知道怎么改 谢谢
. E. U" i- |/ Q! N' y& b1 D6 Z
2.png
1.png
发表回复
您需要登录后才可以回帖 登录 | 注册

本版积分规则


Licensed Copyright © 2016-2020 http://www.3dportal.cn/ All Rights Reserved 京 ICP备13008828号

小黑屋|手机版|Archiver|三维网 ( 京ICP备2023026364号-1 )

快速回复 返回顶部 返回列表