QQ登录

只需一步,快速开始

登录 | 注册 | 找回密码

三维网

 找回密码
 注册

QQ登录

只需一步,快速开始

展开

通知     

全站
8天前
查看: 2560|回复: 8
收起左侧

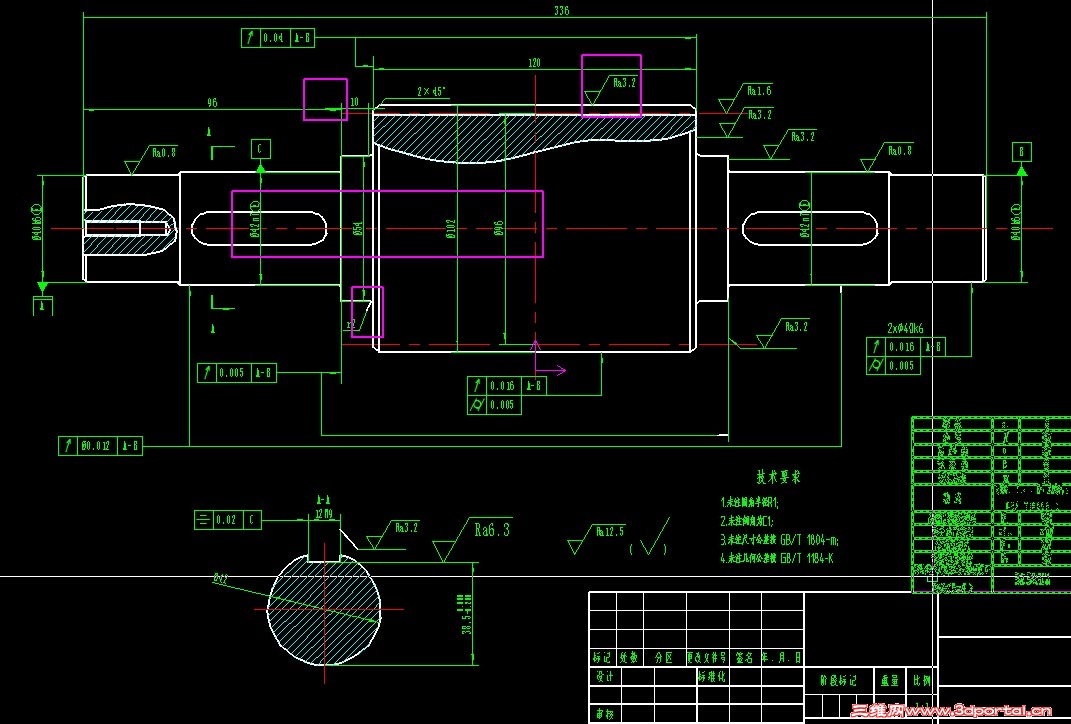
[讨论] 求各位大神帮忙看一看这张图纸的标注有没有问题。

[复制链接]
发表于 2014-1-8 22:31:05 | 显示全部楼层 |阅读模式 来自: 中国重庆

马上注册,结识高手,享用更多资源,轻松玩转三维网社区。

您需要 登录 才可以下载或查看,没有帐号?注册

x
工程图文档2.zip (49.63 KB, 下载次数: 7)
发表于 2014-1-8 23:45:12 | 显示全部楼层 来自: 中国广西南宁
楼上附件用CAXA2013才打得开,帮转成了CAD2000可打开的dwg。
# ?% s* Q* o% K, [4 g CAXA电子图板2013-轴.jpg
% X7 V9 F% T! W
+ }2 n: q4 W9 y# m2 | dwg工程图文档2.rar (40.6 KB, 下载次数: 3)
发表于 2014-1-11 22:38:15 | 显示全部楼层 来自: 中国陕西西安
本帖最后由 我爱用acad 于 2014-1-11 22:42 编辑 ' Z4 `  B9 m8 J

/ F/ |$ W( \$ e$ l; l9 J1,可以在画图的时候稍微修改一下尺寸而标注它应该有的尺寸;装配图有夸张化法,零件图也可以。
3 C  w( s3 i! E
) m8 d' U" H0 F( z2 ^1 X0 U1 \! r( u- ^
图面应重新布置,图框太小,几乎无法容纳足够要求的图素。中心孔未标注,轴段及键槽长度均未标注,缺少相应尺寸公差。
8 j# f& z6 ^8 n9 E8 {; \齿轮标注我不太熟,不多说。/ z" y" Q; A, u! @3 F' U5 `, V
捕获111.PNG

评分

参与人数 1三维币 +5 收起 理由
2005llnn + 5 应助

查看全部评分

发表于 2014-1-18 08:33:34 | 显示全部楼层 来自: 中国山东烟台
QQ截图20140118082845.jpg
% W& p  U! K+ m- z+ l: G1 [补充一下:3 N# ^) z( T. \: C. J& x) Y
1.剖面线比例过小( f* d: J3 Z, Y" O% P
2.水平尺寸有的么有对齐" M+ s/ V* l2 S! i& `8 }$ i1 o
3.齿面标识的符号与上临尺寸间隙过小(主要还是版面过小)
) U: s# B$ \9 M2 G. j( h4.轴中尺寸应离开中心线等! O1 I! e4 Y5 a1 S! |5 R
5.为什么有炸开的尺寸?这个以后如果编辑你会发现很痛苦..& i* r; M( f9 k7 z- h
总的来说你这个图给人一种很臃肿不协调的感觉,加油啊!

评分

参与人数 1三维币 +5 收起 理由
2005llnn + 5 应助

查看全部评分

发表于 2014-1-18 11:39:01 | 显示全部楼层 来自: 中国陕西西安
sunice 发表于 2014-1-18 08:33 static/image/common/back.gif6 G! b" _. |* Y) v. m
补充一下:2 L1 M$ G/ J3 v' H
1.剖面线比例过小
. u" z$ z1 D$ _# P: ^2.水平尺寸有的么有对齐
" j+ v' @' [8 q0 B2 _9 \
咱们的意见二合一后,这个图就差不多了。
: k  U/ l$ h% Z- Y+ b' \
发表于 2014-1-18 13:38:25 | 显示全部楼层 来自: 中国浙江宁波
本帖最后由 yyejj 于 2014-1-18 13:40 编辑
4 C$ N2 G7 s. p0 l
7 I& G1 y5 i5 u大致改了下, 如有不对,还请其他人改正。粉色线,为修改尺寸
1.jpg
2.jpg

工程图文档2修改.zip

66.97 KB, 下载次数: 1

评分

参与人数 1三维币 +5 收起 理由
2005llnn + 5 应助

查看全部评分

发表于 2014-1-18 15:40:41 | 显示全部楼层 来自: 中国山东烟台
尺寸标注的数字不能和中心线重合......7 `4 |+ c" I' w
标注文字如界限直接放不下则应放置在某一侧
* {# d2 V. x3 c6 D0 p6 N# AA-A的符合怎么搞到尺寸上去了.....
发表于 2014-1-18 15:41:59 | 显示全部楼层 来自: 中国山东烟台
另外我建议就你画的键槽剖面图,你主视图上的剖面符号应该向左侧才好

评分

参与人数 1三维币 +3 收起 理由
2005llnn + 3 应助

查看全部评分

发表于 2014-1-20 12:47:38 | 显示全部楼层 来自: 中国宁夏银川
缺同轴度要求
发表回复
您需要登录后才可以回帖 登录 | 注册

本版积分规则


Licensed Copyright © 2016-2020 http://www.3dportal.cn/ All Rights Reserved 京 ICP备13008828号

小黑屋|手机版|Archiver|三维网 ( 京ICP备2023026364号-1 )

快速回复 返回顶部 返回列表