QQ登录

只需一步,快速开始

登录 | 注册 | 找回密码

三维网

 找回密码
 注册

QQ登录

只需一步,快速开始

展开

通知     

查看: 2143|回复: 6
收起左侧

[求助] 空间换向机构

[复制链接]
发表于 2014-2-19 10:26:42 | 显示全部楼层 |阅读模式 来自: 中国广东广州

马上注册,结识高手,享用更多资源,轻松玩转三维网社区。

您需要 登录 才可以下载或查看,没有帐号?注册

x
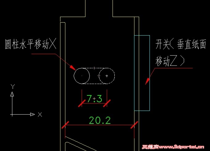
如图,右边蓝色开关在Z轴移动,中间白色的圆水平移动X轴,移动距离7.3,箱体宽20.2,有没有什么机构把开关的移动转换为圆柱的移动呢% N# {, F3 v: d( I, m+ Y( i
QQ图片20140219100829.jpg
发表于 2014-2-20 13:45:16 | 显示全部楼层 来自: 中国北京
本帖最后由 hhq426 于 2014-2-20 13:48 编辑 4 P8 _3 F1 Q; e. i3 C( ?
: v0 R! Y) x/ P
开关沿垂直于纸面的斜面移动(只要斜面不自锁),就能够实现箱体的水平移动。不知你想干什么?

评分

参与人数 1三维币 +3 收起 理由
洪哥 + 3 讨论

查看全部评分

发表于 2014-3-27 20:29:15 | 显示全部楼层 来自: 中国江苏苏州
这两个物体之间加个连杆不就行了嘛

评分

参与人数 1三维币 +2 收起 理由
洪哥 + 2 讨论

查看全部评分

发表于 2014-4-7 08:26:56 | 显示全部楼层 来自: 中国湖北武汉
不太明白用意。

评分

参与人数 1三维币 +2 收起 理由
洪哥 + 2 讨论

查看全部评分

发表于 2014-4-26 16:43:16 | 显示全部楼层 来自: 中国宁夏银川
这个简单在开关下面装个楔形板,再在圆柱上装个复位弹簧就OK了

评分

参与人数 1三维币 +2 收起 理由
洪哥 + 2 感谢帮助!

查看全部评分

发表于 2014-4-26 16:46:24 | 显示全部楼层 来自: 中国宁夏银川
~喜喜~ 发表于 2014-4-26 16:43 static/image/common/back.gif$ V1 |1 p0 V1 r3 o
这个简单在开关下面装个楔形板,再在圆柱上装个复位弹簧就OK了

: l1 o9 X2 s& o% I+ v: {7 v在开关移动位移确定的条件下,改变楔形板的斜度即可改变圆柱的位移大小
发表于 2014-5-3 08:23:09 | 显示全部楼层 来自: 中国安徽宣城
根据四杆机构的原理做

评分

参与人数 1三维币 +2 收起 理由
洪哥 + 2 讨论

查看全部评分

发表回复
您需要登录后才可以回帖 登录 | 注册

本版积分规则


Licensed Copyright © 2016-2020 http://www.3dportal.cn/ All Rights Reserved 京 ICP备13008828号

小黑屋|手机版|Archiver|三维网 ( 京ICP备2023026364号-1 )

快速回复 返回顶部 返回列表