QQ登录

只需一步,快速开始

登录 | 注册 | 找回密码

三维网

 找回密码
 注册

QQ登录

只需一步,快速开始

展开

通知     

查看: 1668|回复: 2
收起左侧

[求助] 空间换向机构

[复制链接]
发表于 2014-2-19 10:29:24 | 显示全部楼层 |阅读模式 来自: 中国广东广州

马上注册,结识高手,享用更多资源,轻松玩转三维网社区。

您需要 登录 才可以下载或查看,没有帐号?注册

x
本帖最后由 用什么爱你 于 2014-2-19 10:35 编辑
% ?2 C' @- ]# k7 a, W$ Y  j& x2 t  u7 G1 i
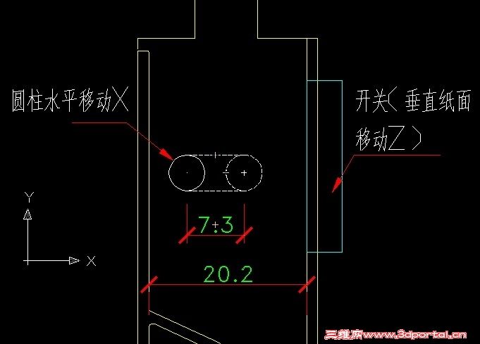
如图,右边蓝色开关在Z轴移动,中间白色的圆水平移动X轴,移动距离7.3,箱体宽20.2,有没有什么机构把开关的移动转换为圆柱的移动呢,连杆能实现 吗6 P5 z) t, v5 A6 _2 \5 \: J
QQ图片20140219100829.jpg
发表于 2014-2-19 11:01:54 | 显示全部楼层 来自: 中国广东广州
做个齿条跟齿轮
发表于 2014-2-19 12:05:13 | 显示全部楼层 来自: 中国湖北黄冈
本帖最后由 tangcarlos3d 于 2014-2-19 12:06 编辑
- [+ D0 O1 O' \. S. W2 h7 i, @
) j0 v& P0 i- g/ e) i如果圆柱、开关都有导向的话在水平面的安装一个“一”字型摆杆:摆杆中部用销钉与机体松配连接,“一”字型摆杆一端部用腰槽与圆柱上的孔用销钉连接,销钉在腰槽内可以移动;另一个端部臂用压缩弹簧撑住使它压向右边,开关移动时压下该端部使它左移,此时另一端带动圆柱右移。前提是开关移动的距离要足够并且移动圆柱的力不能太大,否则开关寿命有影响。移开开关复位时,在弹簧里的作用下摆杆带动圆柱左移复位。
发表回复
您需要登录后才可以回帖 登录 | 注册

本版积分规则


Licensed Copyright © 2016-2020 http://www.3dportal.cn/ All Rights Reserved 京 ICP备13008828号

小黑屋|手机版|Archiver|三维网 ( 京ICP备2023026364号-1 )

快速回复 返回顶部 返回列表