QQ登录

只需一步,快速开始

登录 | 注册 | 找回密码

三维网

 找回密码
 注册

QQ登录

只需一步,快速开始

展开

通知     

查看: 1904|回复: 9
收起左侧

[已答复] 孔用弹性挡圈47

[复制链接]
发表于 2014-4-23 21:05:28 | 显示全部楼层 |阅读模式 来自: 中国四川资阳

马上注册,结识高手,享用更多资源,轻松玩转三维网社区。

您需要 登录 才可以下载或查看,没有帐号?注册

x
本帖最后由 xuexi520 于 2014-4-23 21:07 编辑
0 p2 a4 H2 `. w8 j# S2 E
( W6 R. W3 S) M9 W0 T各位老师好。今天看到别人的图纸上标注的尺寸 与 手册上推荐的尺寸怎么不一致啊? 是自己理解错了,还是?
: _  w% c" z" f% ]9 N- d8 R
; E4 M6 p; {% c; u1 a! p1 s2 _: W轴承外径是47的.- c; A& c' X0 h1 E% h' e1 {$ K

% w- w) e. n: P+ h; B$ j请各位老师 多多 指点,学生先谢谢了 ' B( t+ n% o  M5 a
卡圈 .jpg
01.jpg
发表于 2014-4-23 21:46:36 | 显示全部楼层 来自: 中国湖南岳阳
本帖最后由 TKG-09 于 2014-4-23 21:57 编辑 3 i' l- y0 N% n
" v  w7 a9 L% c* \) j: a! X
轴承外径47是标准尺寸,如6204,对应的孔也就是常用规格,孔用挡圈也是常用规格。
/ S* s  c1 s+ |5 _  ]9 I: r不过挡圈槽为49.5(+0.25/0),如果没有多大的轴向力,n=3也可以用。

评分

参与人数 1三维币 +2 收起 理由
asdolmlm + 2

查看全部评分

发表于 2014-4-23 21:47:40 | 显示全部楼层 来自: 中国湖北黄冈
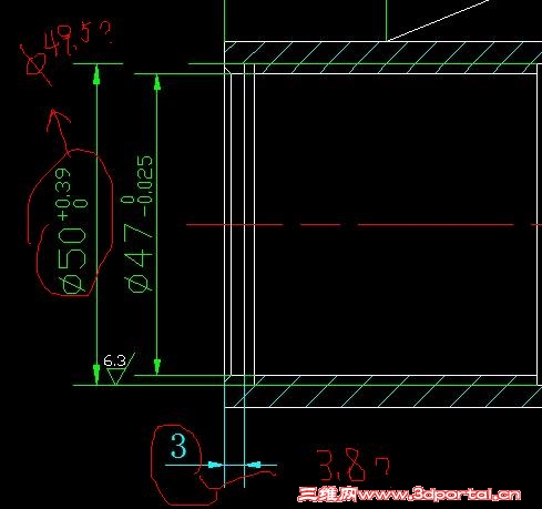
槽的直径是49.5,上偏差为+0.25,下偏差0。槽到轴端距离3.8,槽宽1.7,上偏差+0.14。

评分

参与人数 1三维币 +1 收起 理由
开亮 + 1

查看全部评分

发表于 2014-4-23 22:38:03 | 显示全部楼层 来自: 中国陕西西安
楼主画的图有误,如果槽两侧都是47的话,挡圈安装是有困难的。看标准:
9 @) L7 l9 H' U4 \. {$ h
9 N% r/ ]# r2 n+ ~ 20140423-8.PNG
- V! Q" b! c9 J  A1 \9 M9 k7 s6 A

评分

参与人数 1三维币 +2 收起 理由
asdolmlm + 2

查看全部评分

 楼主| 发表于 2014-4-24 18:57:34 | 显示全部楼层 来自: 中国四川资阳
谢谢 各位老师赐教。我核实了一下,产品确实是直径50,即安装卡圈沟槽的直径。+ w$ G3 t; u+ }( {( Q

: A! D2 K+ T( y/ f8 q* g2 v8 [/ r现在学生就纳闷了,怎么手册上没有 这个 安装卡圈沟槽的直径尺寸啊? 总不可能这个直径等于卡圈的外圈直径吧,那样可能在里面松动吧) K- n6 {# U6 Y9 M3 {7 S+ k. g4 V

3 ]" M' |2 f" s7 m谢谢
01.jpg
发表于 2014-4-24 22:01:39 | 显示全部楼层 来自: 中国湖南岳阳
xuexi520 发表于 2014-4-24 18:57 static/image/common/back.gif
) Y# A, w2 I! |/ O谢谢 各位老师赐教。我核实了一下,产品确实是直径50,即安装卡圈沟槽的直径。
' T/ \: i  M+ \7 i1 p) r/ X
' m0 o; H8 ], _  c# d5 D7 s, ]# w4 M1 V现在学生就纳闷了,怎么手 ...

, d$ @$ k2 m1 L* T4 Yφ49.5(+0.25/0)就是沟槽直径。比挡圈外径稍小,以利于挡圈张紧而不松动。
发表于 2014-4-25 08:57:09 | 显示全部楼层 来自: 中国山西太原
xuexi520 发表于 2014-4-24 18:57 static/image/common/back.gif: l6 V" _- s! v1 q
谢谢 各位老师赐教。我核实了一下,产品确实是直径50,即安装卡圈沟槽的直径。! W7 T; W. C) s6 c8 N9 o  b7 Y9 a" ]

# B+ w8 v" a$ I: X! R$ \现在学生就纳闷了,怎么手 ...

. v! t# u7 E  ~9 X; r' S# p+ A楼主举出的这个图中d2尺寸标注有误,没有标注到槽底,看看机械设计手册上的图的标注,d2=49.5mm尺寸标注到槽底就对了。
孔用弹性挡圈及卡槽尺雨寸.jpg

评分

参与人数 1三维币 +2 收起 理由
asdolmlm + 2

查看全部评分

 楼主| 发表于 2014-4-28 13:51:55 | 显示全部楼层 来自: 中国四川资阳
gaoyns 发表于 2014-4-25 08:57 static/image/common/back.gif5 O6 J" {+ N- _8 h) C
楼主举出的这个图中d2尺寸标注有误,没有标注到槽底,看看机械设计手册上的图的标注,d2=49.5mm尺寸标注到 ...

7 C" \- Z  c! S) O  R2 s( S( j% h谢谢! 我仔细看了一下,d2尺寸确实是50,而不是手册上推荐的49.5.) |  e. Z2 |9 D! B* ]( I
" t2 u( w2 Q. y7 Z4 Z2 x
老师估计一下看,倘若做到50.对工作有啥影响没得呢?
02.jpg
发表于 2014-4-28 17:53:26 | 显示全部楼层 来自: 中国山西太原
xuexi520 发表于 2014-4-28 13:51 static/image/common/back.gif
; G; |" a4 _5 J3 i! {( v谢谢! 我仔细看了一下,d2尺寸确实是50,而不是手册上推荐的49.5.
6 m: I$ Y$ F3 q9 v5 O( T2 i: z: P2 \0 `7 `- ~2 B
老师估计一下看,倘若做到50.对工作 ...

% F$ T3 o0 O( |  x, e孔用挡圈在自由状态下直径是50.5mm,标准槽底直径是d2=49.5mm,这样挡圈装进去有一胀大的力,使安装稳固。若槽底直径加工成50mm,压缩量小了点,也是可以用的,但不如直径为49.5mm稳固。

评分

参与人数 1三维币 +2 收起 理由
开亮 + 2

查看全部评分

 楼主| 发表于 2014-5-4 20:28:30 | 显示全部楼层 来自: 中国四川资阳
谢谢,各位老师的热心赐教,学生明白了
发表回复
您需要登录后才可以回帖 登录 | 注册

本版积分规则


Licensed Copyright © 2016-2020 http://www.3dportal.cn/ All Rights Reserved 京 ICP备13008828号

小黑屋|手机版|Archiver|三维网 ( 京ICP备2023026364号-1 )

快速回复 返回顶部 返回列表