QQ登录

只需一步,快速开始

登录 | 注册 | 找回密码

三维网

 找回密码
 注册

QQ登录

只需一步,快速开始

展开

通知     

全站
6天前
查看: 3521|回复: 14
收起左侧

[求助] 图示的平板能否加工出来?

[复制链接]
发表于 2014-5-2 17:02:41 | 显示全部楼层 |阅读模式 来自: 中国湖北襄阳

马上注册,结识高手,享用更多资源,轻松玩转三维网社区。

您需要 登录 才可以下载或查看,没有帐号?注册

x
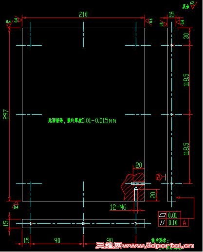
需要设计一种模具,因为精度较高,我的方案是平磨后抛光。很遗憾,我没见过平板抛光的工艺,另外对抛光的精度不甚了解,所以请各位前辈们帮忙看看。
平板图纸.JPG
发表于 2014-5-2 19:47:11 | 显示全部楼层 来自: 中国陕西西安
平板是什么材料?
( b( I6 o7 Y0 z! U3 g5 K6 E5 S通常情况下,材料硬度较高,采用镜面抛光是可以达到你的技术要求的。
发表于 2014-5-3 08:22:16 | 显示全部楼层 来自: 中国安徽宣城
采用镜面抛光是可以达到你的技术要求的
 楼主| 发表于 2014-5-4 09:54:03 | 显示全部楼层 来自: 中国湖北襄阳
请教2楼:拟采用45钢,不热处理,是否可行?如果要求硬度,采用20钢,渗碳淬火HRC50-55深1-3mm,镀铬,镜面抛光,是否是较为经济的方案?
发表于 2014-5-4 11:25:18 | 显示全部楼层 来自: 中国山西太原
本帖最后由 gaoyns 于 2014-5-4 16:11 编辑
# B% p9 X5 \9 }
7 y/ N/ a! L5 ]( e5 V8 v4 j要达到要求的表面粗糙度用45钢不经处理不行,精磨后表面粗糙度达到Ra04没有问题,不必抛光,抛光只能提高表面光亮度,不能提高精度和降低表面粗糙度。研磨可提高精度和降低表面粗糙度。

评分

参与人数 1三维币 +2 收起 理由
asdolmlm + 2

查看全部评分

发表于 2014-5-4 12:27:32 | 显示全部楼层 来自: 中国湖南岳阳
A4大厚15,精度稍好的平面磨床可以满足平面度0.01-0.015的要求。材料、热处理要看使用要求而定。2 x' {7 Y3 \% R/ Y. q8 z
如果表面Ra不能满足,可以抛光——注意不能抛得太重(影响平面度),也可以研磨。

评分

参与人数 1三维币 +2 收起 理由
asdolmlm + 2

查看全部评分

发表于 2014-5-4 13:49:04 | 显示全部楼层 来自: 中国湖北黄冈
本帖最后由 tangcarlos3d 于 2014-5-4 22:30 编辑 * g1 r' B2 q/ h6 z; W

  K5 L/ u% T# O4 ?" B0 R3 C怎么基准面的粗造度是1.6,而测量面是0.4?$ e- v; s+ L9 E' L$ Q: w9 v

1 f3 D4 |: s! v8 E, [  \平行度要求不高,粗造度是0.4,精磨都可以达到。
 楼主| 发表于 2014-5-4 17:19:58 | 显示全部楼层 来自: 中国湖北襄阳
“怎么基准面的粗造度是1.6,而测量面是0.4?”这是基于实际使用要求和加工成本考虑。基准面A只是起加工定位作用,在实际使用中也是放着桌面上的,光洁度不用太高。
 楼主| 发表于 2014-5-4 17:44:09 | 显示全部楼层 来自: 中国湖北襄阳
“A4大厚15,精度稍好的平面磨床可以满足平面度0.01-0.015的要求。材料、热处理要看使用要求而定。”2 k3 f/ i: u( e& n  j8 w, t3 E
该模具与化学溶液接触,会经常手搬。该平板的四面,用4块精磨至Ra0.4平板贴合,每侧用3个M6的螺钉压紧。这样组装后就是一个容器,中间是化学溶液。四边不能用密封胶,所以采用的精磨或研磨表面贴合的方案,原来没有用过这样的方案,有点担心密封性。另外根据使用环境及特点,准备用45钢制造,整体镀铬处理,有平面度要求的表面精磨。
发表于 2014-5-4 20:02:15 | 显示全部楼层 来自: 中国江西九江
在平板上研磨加工
 楼主| 发表于 2014-5-4 20:27:36 | 显示全部楼层 来自: 中国湖北襄阳
asdolmlm 发表于 2014-5-4 20:02 static/image/common/back.gif/ L0 p! n9 l3 z( s0 }+ D: u& z
在平板上研磨加工

1 |: Z$ {4 J% ?# p" W了解了5 u1 N; Q: l8 l& H2 a9 c8 `  J
没接触过研磨工艺,先学习一下
发表于 2014-5-4 22:05:37 | 显示全部楼层 来自: 中国湖南岳阳
2751zhou 发表于 2014-5-4 17:44 static/image/common/back.gif
" I1 \& G- c) c) G! M8 m+ l“A4大厚15,精度稍好的平面磨床可以满足平面度0.01-0.015的要求。材料、热处理要看使用要求而定。”" p! n- v* O! C
该模 ...

3 C, S" V9 ]  C- T) H如果采用平面接触密封,再高的表面质量和平面度精度,都难以保证不漏。
 楼主| 发表于 2014-5-5 17:33:09 | 显示全部楼层 来自: 中国湖北襄阳
TKG-09 发表于 2014-5-4 22:05 static/image/common/back.gif
7 X0 O5 w& G- }) D6 g  Z, L+ a如果采用平面接触密封,再高的表面质量和平面度精度,都难以保证不漏。
/ E( ^) z3 b5 o, v1 E; P) N7 X3 R
有过这样的担心。因为担心密封胶会影响化学溶液的性状,所以才设计的这种方案。通过与大家的讨论,我现在心里有数了。非常感谢
发表于 2014-6-15 17:09:51 | 显示全部楼层 来自: 中国广东广州
平面度的要求有点高,要研磨或刮研,另外密封的问题能不能加工一个环形槽,然后用O型胶条密封。
发表于 2014-6-17 15:06:39 | 显示全部楼层 来自: 中国天津
2751zhou 发表于 2014-5-4 17:44 static/image/common/back.gif+ H5 P% _+ f8 B$ t3 R3 }/ B
“A4大厚15,精度稍好的平面磨床可以满足平面度0.01-0.015的要求。材料、热处理要看使用要求而定。”
/ Q: l5 Q8 d( Y" ~该模 ...

  Z0 p* D+ r' e单纯作容器是没必要做镜面抛光的,那样成本太高。还有,如你所说用几块板拼起来用螺丝锁的话泄漏可能性较大,还不如用焊接的方式。具体得看实际情况了!
发表回复
您需要登录后才可以回帖 登录 | 注册

本版积分规则


Licensed Copyright © 2016-2020 http://www.3dportal.cn/ All Rights Reserved 京 ICP备13008828号

小黑屋|手机版|Archiver|三维网 ( 京ICP备2023026364号-1 )

快速回复 返回顶部 返回列表