QQ登录

只需一步,快速开始

登录 | 注册 | 找回密码

三维网

 找回密码
 注册

QQ登录

只需一步,快速开始

展开

通知     

全站
6天前
查看: 2760|回复: 13
收起左侧

[求助] 请问如下转子轴套的周向螺孔有什么作用?

[复制链接]
发表于 2014-5-9 18:52:26 | 显示全部楼层 |阅读模式 来自: 中国北京

马上注册,结识高手,享用更多资源,轻松玩转三维网社区。

您需要 登录 才可以下载或查看,没有帐号?注册

x
本帖最后由 kieso123 于 2014-5-9 22:12 编辑
0 N; u& S6 J; r2 m, F+ K1 j- U  `) M( w* k5 G9 G( W; c8 I7 i1 d
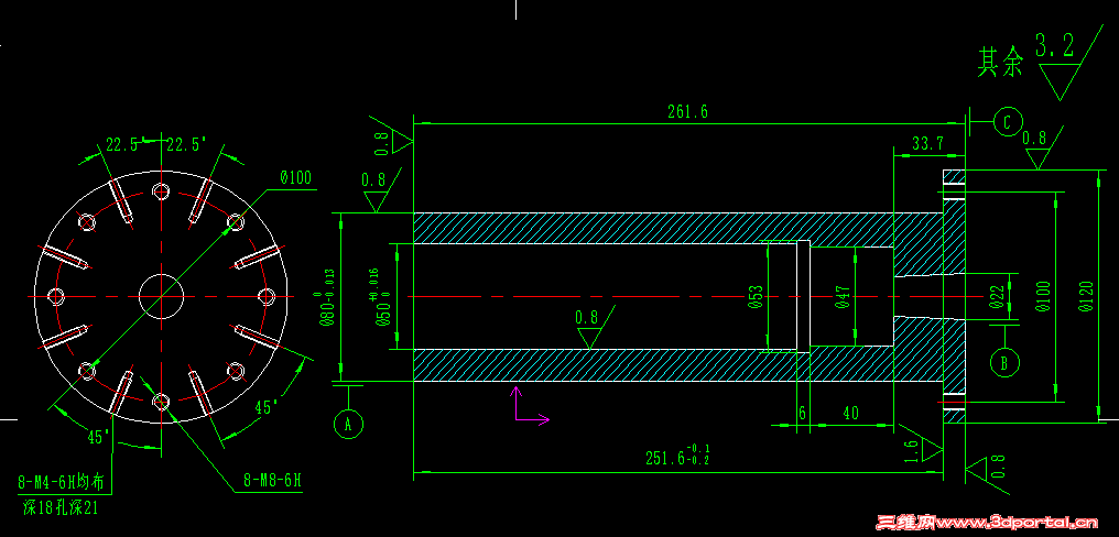
请问如下转子轴套的周向螺孔有什么作用?也就是8个M4-6H 孔。. x& \2 |6 a) j  b: I) o. J$ t/ `
转子轴套.PNG
* N7 n/ ?. L1 a" r' T) c
1.PNG
2.PNG
3.PNG
0.PNG
发表于 2014-5-9 21:21:15 | 显示全部楼层 来自: 中国湖南岳阳
单看零件图难以判断,需要结合装配关系、功用来确定。

评分

参与人数 1三维币 +2 收起 理由
洪哥 + 2 讨论

查看全部评分

 楼主| 发表于 2014-5-9 21:36:44 | 显示全部楼层 来自: 中国吉林长春
本帖最后由 kieso123 于 2014-5-9 22:10 编辑 8 H; [+ \! D# l& s
TKG-09 发表于 2014-5-9 21:21 static/image/common/back.gif$ a* ]" y/ j$ {5 E8 k! x: ~
单看零件图难以判断,需要结合装配关系、功用来确定。
1 p3 V4 G. G/ C: {& L: X$ H" f
谢谢,我传一下装配图

(A0)总装图.pdf

787.3 KB, 下载次数: 6

毕设图.rar

632.91 KB, 下载次数: 3

发表于 2014-5-10 09:06:06 | 显示全部楼层 来自: 中国湖南岳阳
装配图和零件图并不一致,零件图上的法兰在装配图上是另一个零件。法兰周边也没有装其他东西,可能是工艺 需要或安装时装调节杆吧。

评分

参与人数 1三维币 +3 收起 理由
洪哥 + 3 感谢帮助!

查看全部评分

发表于 2014-5-10 09:53:08 | 显示全部楼层 来自: 中国山西太原
看了你提供的所有图纸,转子轴套零件图与装配图的形状并不一致,零件图上有法兰,装配图中法兰是另一个零件(图中无此零件),从装配图中看并无装任何螺钉。说明原来的转子轴套改过了,请楼主再查对一次。另外一些图画的并不规范,如转子轴套上的8个M4-6H 螺孔,没有剖切应当画虚线,都画成实线了。
转子轴套装配.jpg

评分

参与人数 1三维币 +6 收起 理由
洪哥 + 6 感谢帮助!

查看全部评分

 楼主| 发表于 2014-5-10 10:08:28 | 显示全部楼层 来自: 中国天津
gaoyns 发表于 2014-5-10 09:53 static/image/common/back.gif
9 @& s/ b% ~6 Y; R- F% |' g看了你提供的所有图纸,转子轴套零件图与装配图的形状并不一致,零件图上有法兰,装配图中法兰是另一个零件 ...

/ f% V0 W% l  U1 ?: S. O8 v请问哪个更合理?装配图还是零件图?转子轴套有什么作用?
 楼主| 发表于 2014-5-10 10:38:56 | 显示全部楼层 来自: 中国天津
请问 Φ53,Φ47有什么功用?
转子轴套.PNG
发表于 2014-5-10 18:27:04 | 显示全部楼层 来自: 中国山西太原
kieso123 发表于 2014-5-10 10:08 static/image/common/back.gif: P: j& Z: Y, ~; Z2 }6 v" G7 b. _
请问哪个更合理?装配图还是零件图?转子轴套有什么作用?

% s% Z* f* L0 K* \; Z% U+ [: q在这里,当然是以装配图为准,零件应当与装配结构一致,否则怎么装配。从装配图中可以看出,这个转子轴套是装配动叶片用的,把所有动叶片压在轴套外面,靠下端的锥孔与主轴联接,与轴一起旋转。

评分

参与人数 1三维币 +3 收起 理由
洪哥 + 3 感谢帮助!

查看全部评分

发表于 2014-5-10 18:34:28 | 显示全部楼层 来自: 中国山西太原
kieso123 发表于 2014-5-10 10:38 static/image/common/back.gif" P) s1 Y" _! I; a3 T" Z
请问 Φ53,Φ47有什么功用?
" v1 q: ~: ]) D5 x: O, l0 f
从装配图可以看出,φ47处是安装轴头压盖用的,也就是固定转子的空间。
& L/ i1 Q5 e! J6 d这个轴套两端孔不一样,右端是φ47,左端是φ50,φ53是交接处的退刀槽,是为了加工方便设计的。

评分

参与人数 1三维币 +4 收起 理由
洪哥 + 4 感谢帮助!

查看全部评分

 楼主| 发表于 2014-5-12 08:39:02 | 显示全部楼层 来自: 中国北京
本帖最后由 kieso123 于 2014-5-12 08:46 编辑 6 z2 _8 ?9 y4 L( f; x3 B
gaoyns 发表于 2014-5-10 18:27 static/image/common/back.gif
0 E$ Q6 x1 c& ~: K# Q' }" g在这里,当然是以装配图为准,零件应当与装配结构一致,否则怎么装配。从装配图中可以看出,这个转子轴套 ...

/ @) o% f% `$ U5 a谢谢您的回复。请问是图中红色零件通过螺柱带动动叶片,还是黄色部分转子轴套与动叶片过盈配合带动动叶片?另外,黄色部分与红色部分为何不做成一体?& w3 _) G4 ~  U
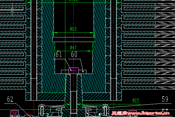
捕获.PNG
 楼主| 发表于 2014-5-12 09:20:22 | 显示全部楼层 来自: 中国北京
本帖最后由 kieso123 于 2014-5-12 09:26 编辑 3 H5 R6 {( p* _$ ]# v* t& E% I; b
gaoyns 发表于 2014-5-10 18:34 static/image/common/back.gif' L) G: g8 Y, X
从装配图可以看出,φ47处是安装轴头压盖用的,也就是固定转子的空间。
9 U0 J6 N$ L5 D! [' a9 _4 ?这个轴套两端孔不一样,右端是φ ...

( w! G: Q, }! I9 ~谢谢您的回复。请问“安装轴头压盖用的”是指零件60的作用吗?调整垫与螺钉是否画错了?是否应该是螺钉压住调整垫,防止螺钉和轴向下移动?转子轴套的孔为什么不都加工成φ50或φ47?
5.PNG
发表于 2014-5-12 09:27:08 | 显示全部楼层 来自: 中国山西太原
kieso123 发表于 2014-5-12 08:39 static/image/common/back.gif
+ `; x9 b  k: X4 M) |谢谢您的回复。请问是图中红色零件通过螺柱带动动叶片,还是黄色部分转子轴套与动叶片过盈配合带动动叶片 ...

% i( V7 v7 \) j# X( q7 A$ x. F是转子轴套与动叶片的毂过盈配合,带动动叶片旋转。螺柱是将各个动叶片连接成整体,可固定其相位。3 P/ q* l& b4 a! @; n' w+ D
红色部分的法兰可以与转子轴套作成一体,但加工、装配和调整不如图中结构方便,

评分

参与人数 1三维币 +3 收起 理由
洪哥 + 3 感谢帮助!

查看全部评分

 楼主| 发表于 2014-5-12 10:25:43 | 显示全部楼层 来自: 中国北京
gaoyns 发表于 2014-5-12 09:27 static/image/common/back.gif) c+ p0 w! Y- V. F( m, c5 P
是转子轴套与动叶片的毂过盈配合,带动动叶片旋转。螺柱是将各个动叶片连接成整体,可固定其相位。
. e5 o4 F0 k. X6 r0 |1 _4 P3 {红色 ...

+ w) r+ g+ \* ?  P请问红色部分的法兰有什么作用?
发表于 2014-5-12 10:49:16 | 显示全部楼层 来自: 中国山西太原
kieso123 发表于 2014-5-12 10:25 static/image/common/back.gif
7 b1 U6 M9 S! t请问红色部分的法兰有什么作用?

0 _7 K6 y/ d% N) L上下两个法兰通过螺柱把动叶片夹在一起,形成一个整体,使各叶片间相位保持不变,同时使结构更加牢固。

评分

参与人数 1三维币 +3 收起 理由
洪哥 + 3 感谢帮助!

查看全部评分

发表回复
您需要登录后才可以回帖 登录 | 注册

本版积分规则


Licensed Copyright © 2016-2020 http://www.3dportal.cn/ All Rights Reserved 京 ICP备13008828号

小黑屋|手机版|Archiver|三维网 ( 京ICP备2023026364号-1 )

快速回复 返回顶部 返回列表