QQ登录

只需一步,快速开始

登录 | 注册 | 找回密码

三维网

 找回密码
 注册

QQ登录

只需一步,快速开始

展开

通知     

查看: 1915|回复: 10
收起左侧

[求助] 谁能帮我看看如图所示的上箱体?有点没看明白。

[复制链接]
发表于 2014-6-11 16:07:42 | 显示全部楼层 |阅读模式 来自: 中国湖北咸宁

马上注册,结识高手,享用更多资源,轻松玩转三维网社区。

您需要 登录 才可以下载或查看,没有帐号?注册

x
本帖最后由 kieso123 于 2014-6-12 08:10 编辑
' @9 V# S9 G. d( G" Y3 y/ L2 I% U9 p) ]: M: u! C6 l7 s. N' i6 A
谁能帮我看看如图所示的上箱体?有点没看明白。! ~5 u: R. x+ D  I3 `1 Q+ P
A1上箱体A1.png
01.PNG
02.PNG
03.PNG
04.PNG
05.PNG

A1上箱体A1.rar

56.66 KB, 下载次数: 5

发表于 2014-6-11 19:25:37 | 显示全部楼层 来自: 中国江苏无锡
虽有附件,但没贴图,下载要流量,呵呵。。。
 楼主| 发表于 2014-6-12 08:11:27 | 显示全部楼层 来自: 中国湖北咸宁
我爱用acad 发表于 2014-6-11 19:25 static/image/common/back.gif  S# t3 ~: a4 Z; O
虽有附件,但没贴图,下载要流量,呵呵。。。

% }2 J# C+ M; E" e, r% i6 G% m已经上传了图片。
发表于 2014-6-12 09:16:24 | 显示全部楼层 来自: 中国山西太原
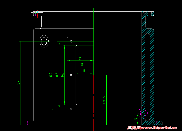
图纸表达基本清楚,不知哪里不明白。这是两个相通的筒体,两个筒体的中心距小于筒径,箱体都带有夹套,可能是热交换用的。两端是联接法兰,侧面有通夹套的通道法兰。总体结构并不复杂。

评分

参与人数 1三维币 +3 收起 理由
hero2006 + 3 应助

查看全部评分

 楼主| 发表于 2014-6-12 10:03:49 | 显示全部楼层 来自: 中国天津
gaoyns 发表于 2014-6-12 09:16 static/image/common/back.gif
0 a0 x/ P6 u- v  i* f图纸表达基本清楚,不知哪里不明白。这是两个相通的筒体,两个筒体的中心距小于筒径,箱体都带有夹套,可能 ...
6 G% Q4 v' `, y4 {% q5 N
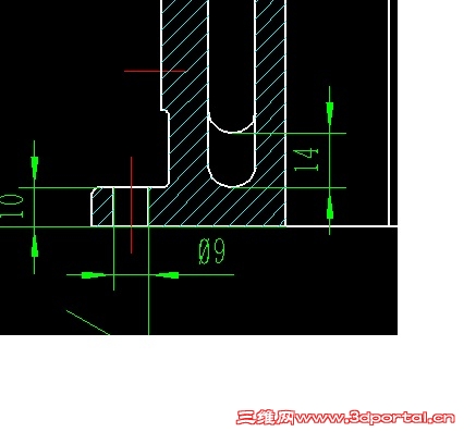
如图所示,黄色部分有些不明白?
  h6 r# d( t; M: N9 F; f图05高度为何不等?
/ a5 `3 ~; I2 o3 h+ q  X# p7 v
01.PNG
05.PNG
06.PNG
发表于 2014-6-12 16:05:05 | 显示全部楼层 来自: 中国山西太原
kieso123 发表于 2014-6-12 10:03 static/image/common/back.gif
& @  |2 V4 r- u; N4 t如图所示,黄色部分有些不明白?
7 a/ t4 D  `( J) m图05高度为何不等?
; A' l3 }. n2 T2 _& D
水夹套的底部不是同一水平面,上图中是左边高右边低,冷却水一般是低进高出,从你的图04可以看出,右下(距底面30)为进水口,左上(距底面205)出水口。但冬天仃止运行时需放掉夹套中的水,为了能将水排尽,用右下的口排水,此口应开在最低处。因此水夹套的底面有高有低。

评分

参与人数 1三维币 +5 收起 理由
hero2006 + 5 技术讨论

查看全部评分

发表于 2014-6-13 08:26:07 | 显示全部楼层 来自: 中国山东济南
既然需要别人帮助,下载附件怎么还要流量?7 `+ K- A9 V9 x8 @% {+ G9 Q, Z: g
自己画画3D图吧,这个不难,人家那样设计可定有其道理的。
发表于 2014-6-15 18:32:29 | 显示全部楼层 来自: 中国广东广州
gaoyns 发表于 2014-6-12 16:05 static/image/common/back.gif! ~8 M, K6 S& F
水夹套的底部不是同一水平面,上图中是左边高右边低,冷却水一般是低进高出,从你的图04可以看出,右下( ...
, s9 g7 b" S0 m
我仔细看了一下图纸,认为楼上说的值得探讨,高度不等是因为底部56宽度的缺口,为了保证中间夹套不漏及等厚度要求,所以上边为等厚度,宽为72,夹套中的流通靠上下M20的孔来进行的,保证流体和腔体互不相通,即不泄露。http://C:\\Users\\Administrator\\Desktop\\箱体1.jpg
0 r# u/ T& ]7 A! E; k& S+ m1 ihttp://C:\\Users\\Administrator\\Desktop\\箱体2.jpg
9 t. {( u2 l; S8 J3 j$ Hhttp://C:\\Users\\Administrator\\Desktop\\箱体3.jpg
发表于 2014-6-15 18:35:41 | 显示全部楼层 来自: 中国广东广州
箱体简单截图,黄色不等是因为此处是等厚度的缺口位置
箱体1.jpg
箱体2.jpg
箱体3.jpg
发表于 2014-6-16 10:55:56 | 显示全部楼层 来自: 中国山西太原
jk45mn 发表于 2014-6-15 18:32 static/image/common/back.gif9 v) [& X! _# f( U1 ?% {8 [
我仔细看了一下图纸,认为楼上说的值得探讨,高度不等是因为底部56宽度的缺口,为了保证中间夹套不漏及等 ...

0 o, z  k* g' a9 s, n9 b水夹套设计要求,不用时需将水排完。这个冷却水夹套底部两边高差为14mm,主要是考虑仃车时排光夹套中的水,排水孔位于最低处。至于下部的缺口在这样是没什么用处的,为了壁厚相等,左边抬高了14mm。7 G2 W1 l9 q: i+ a* b* \1 N
第一个图的上下两剖面不应断开,应连成一个平面,都能剖切上。

评分

参与人数 1三维币 +5 收起 理由
hero2006 + 5 应助

查看全部评分

发表于 2014-6-22 10:59:09 | 显示全部楼层 来自: 中国广东广州
第一个图你指的是B-B剖面吗?如果是如图所示的部分,那这个没错,是分开的。
剖面.jpg
发表回复
您需要登录后才可以回帖 登录 | 注册

本版积分规则


Licensed Copyright © 2016-2020 http://www.3dportal.cn/ All Rights Reserved 京 ICP备13008828号

小黑屋|手机版|Archiver|三维网 ( 京ICP备2023026364号-1 )

快速回复 返回顶部 返回列表