QQ登录

只需一步,快速开始

登录 | 注册 | 找回密码

三维网

 找回密码
 注册

QQ登录

只需一步,快速开始

展开

通知     

查看: 6134|回复: 33
收起左侧

[已解决] 如何将立体图放进平面图中

[复制链接]
发表于 2014-7-9 15:22:57 | 显示全部楼层 |阅读模式 来自: 中国辽宁营口

马上注册,结识高手,享用更多资源,轻松玩转三维网社区。

您需要 登录 才可以下载或查看,没有帐号?注册

x
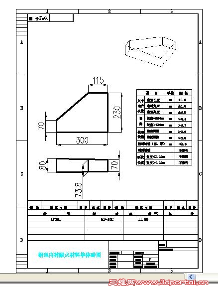
各位老师好:
. Z/ L+ u! d. a* Y6 r0 k我在CAD中画有平面图和立体图,我现在想把立体图变换一个视角放进平面图中,该如何操作?如下图方式把立体图放进平面图中。
0 i% N1 q& W$ Y LW301.zip (93.27 KB, 下载次数: 14)
发表于 2014-7-9 16:04:20 | 显示全部楼层 来自: 中国广东深圳
最简单的方法:
6 A. G4 V- `' K0 E+ B2 g先把二维图复制到一张空白的图纸上,然后把三维图扭到想要的角度,更改坐标轴,再把二维图复制回来。简单实用。
发表于 2014-7-9 16:33:49 | 显示全部楼层 来自: 中国广东深圳
刚说的方法,有一个问题:如何快速的把当前的坐标系转换为俯视视角?
 楼主| 发表于 2014-7-9 17:23:42 | 显示全部楼层 来自: 中国辽宁营口
小刘-到 发表于 2014-7-9 16:04 static/image/common/back.gif
6 U2 b+ {, ^! `+ m4 d+ I最简单的方法:
2 b5 G4 Y  Z5 O& k9 E先把二维图复制到一张空白的图纸上,然后把三维图扭到想要的角度,更改坐标轴,再把二维图 ...

8 I; G" d, X( I5 o怎么更改坐标轴,请教一下。我没弄成功!还是在一个试图下的。
发表于 2014-7-9 17:53:50 | 显示全部楼层 来自: 中国辽宁本溪
本帖最后由 xhq1954425 于 2014-7-9 17:58 编辑 5 {% k. l3 {5 X* I9 r

) r3 p% ~  f; z9 z) L, H这能说清楚吗1 M% G1 ^+ P5 _' s# Q3 V

4 C" c: B1 R' B4 l/ r1 S1 u& m
0 e& p' D9 K: S0 N( c7 s 二维图中插入三维图.gif % U9 z5 z6 {$ W/ s
发表于 2014-7-9 19:45:21 | 显示全部楼层 来自: 中国辽宁本溪
再看看这个:  N1 r  g4 X4 l! d/ z8 D
+ w  A! y" s6 i
二维图中插入三维图2.gif
发表于 2014-7-9 22:06:50 | 显示全部楼层 来自: 中国辽宁营口
本帖最后由 woaishuijia 于 2014-7-9 22:10 编辑
, y% r# q1 ?8 k& A% g. o8 E1 X+ k1 ^5 ?- a+ U
这种方法,舍近求远,太...3 D3 z; r1 k- p9 h; z
正确的方法是在模型空间画图,在图纸空间出图.
- U; d5 t# t6 ?2 X. p首先在模型空间画出三维实体,然后在某个图纸空间的布局中插入一个视口,就可以在该视口中看到模型空间的三维实体,因为图纸空间的视口就是对模型空间的引用.一个布局理论上可以插入无数个视口......内容太多了,一言难尽,自己尝试一下吧,本版区关于这个方面的帖子很多.
  o$ n" `5 W. G& u9 z. k, N0 C$ E$ \- D( V从CAD2000版开始,一个DWG文档就支持多达255个图纸空间布局.十几年了,还有这么多人对此视而不见,
/ q4 K! |2 i3 b3 {4 i也许应该怪PCCAD那个烂货,以其昏昏使人昭昭,带坏了一大批原本可以有为的青年.
% Y# q1 I8 j, B4 i' ]/ W8 L! y# u7 w

点评

我等对ACAD还是掌握的太肤浅了。多谢版主苦口婆心啊。  发表于 2014-7-9 22:28
发表于 2014-7-10 00:09:25 | 显示全部楼层 来自: 中国广东肇庆
我的方法,不麻烦的。" M$ r6 L5 O& h, k+ R

% K1 G7 W% `& z6 F Snap1.jpg ) D$ t6 p& U2 |% B5 S" }3 \

; z6 D4 O, T2 J7 C$ F LW301.rar (20.12 KB, 下载次数: 5)
发表于 2014-7-10 06:33:44 | 显示全部楼层 来自: 中国辽宁营口
打开"布局1",添加一大一小两个视口,大的用于显示二维图部分,小的用于显示三维实体
5 D& D7 t6 w0 J4 g双击小视口内部进入其模型空间,用三维动态观察器调整视角,感觉合适后双击大视口外侧图纸空白区域退出小视口的模型空间,结果如图$ w! l: C9 l& K" ~- S* h- K" X  S
Untitled-1.gif / M' M' S; o( }9 v5 y0 B
6 Q! i7 a0 i, m# m
在当前布局中冻结视口所在的"0"图层,如图.OK4 K& Y' [* v+ }
Untitled-2.gif

LW301.rar

126.4 KB, 下载次数: 12

发表于 2014-7-10 08:18:18 | 显示全部楼层 来自: 中国广东深圳
老是忘记使用布局,虽然记得可以用视口,不到位啊还是!
发表于 2014-7-10 08:37:11 | 显示全部楼层 来自: 中国广东深圳
根据版主说的方法,亲自测试了一下,确实比我的方法好用,推荐楼主用版主的好方法!; I4 s! @+ p. x% x, P3 y0 g

试一下.part2.rar

1.57 MB, 下载次数: 18

试一下.part1.rar

4 MB, 下载次数: 18

发表于 2014-7-10 08:48:17 | 显示全部楼层 来自: 中国河南安阳
xhq1954425 发表于 2014-7-9 17:53 static/image/common/back.gif6 u7 v2 o" \8 d- A& V9 V1 V- S* u
这能说清楚吗

1 f2 z; c% R: w( U( `6 d明白了  又和高手学了一招   谢谢
 楼主| 发表于 2014-7-10 10:34:17 | 显示全部楼层 来自: 中国辽宁营口
xhq1954425 发表于 2014-7-9 17:53 static/image/common/back.gif, `4 b( S6 V) H- v/ [
这能说清楚吗

/ A& |' {8 U$ M( k感谢感谢,这招很好使!
 楼主| 发表于 2014-7-10 10:35:51 | 显示全部楼层 来自: 中国辽宁营口
xhq1954425 发表于 2014-7-9 19:45 static/image/common/back.gif: A$ `4 |0 ]: h* C
再看看这个:

5 Y  c% g8 m* j; s1 v/ Y谢谢!和楼上的一样!很好用。
 楼主| 发表于 2014-7-10 11:10:16 | 显示全部楼层 来自: 中国辽宁营口
woaishuijia 发表于 2014-7-10 06:33 static/image/common/back.gif  n% l! K; D+ J
打开"布局1",添加一大一小两个视口,大的用于显示二维图部分,小的用于显示三维实体
5 ?! ]' e1 O- v3 H: S双击小视口内部进入其模 ...
' h! E! P+ N1 a0 }5 R, f
感谢版主帮助!请教一下这个小视口,我在想双击进入的时候无法选中了!这是为什么啊?
 楼主| 发表于 2014-7-10 11:46:15 | 显示全部楼层 来自: 中国辽宁营口
keilei001 发表于 2014-7-10 00:09 static/image/common/back.gif
) V0 C$ u& B* R7 o$ j我的方法,不麻烦的。

, `. `0 |+ f" M% ?0 }估计老师的方法和楼上的2种方法类似吧?感谢。
 楼主| 发表于 2014-7-10 12:27:03 | 显示全部楼层 来自: 中国辽宁营口
woaishuijia 发表于 2014-7-9 22:06 static/image/common/back.gif
# M* a. }8 M! s2 S这种方法,舍近求远,太...
: {8 n% P0 A7 l+ M5 g  C, {% m正确的方法是在模型空间画图,在图纸空间出图.* p0 c/ D8 e0 R
首先在模型空间画出三维实体,然 ...

- z( n% c  @& N% P; J+ D" N- V5 U这个论坛真实太好了!有啥问题都能得到及时的解决。
发表于 2014-7-10 13:50:31 | 显示全部楼层 来自: 中国辽宁本溪
本帖最后由 xhq1954425 于 2014-7-10 16:54 编辑
( Q% `, P% n4 @2 W
. x/ V# I1 F5 r我说的方法是CAD操作应该掌握的方法,并非用于出图,哪招好用?这要看你用在哪儿,俗话说得好,隔行如隔山,适合其它专业的用法咱不敢评论,我是搞机械的,图纸都是二维图,一张杂的图纸通过先画一个三维零件,再放到图纸空间出图是不可能的,因为有复杂的表达方法(基本视图,辅助视图、剖视、断面、若干规定画法)和尺寸标注和线型编辑等……,如果你是搞教学的,可能经常用到时三视图,下面的方法可能就是较好的方法了:
9 t1 s3 b. n2 u2 R) n; b2 M( k0 x% O( g& q7 Q/ I( z6 p0 {$ y
转三视图2.gif 0 g) c  q8 w% l4 ]" f7 f
 楼主| 发表于 2014-7-10 15:30:38 | 显示全部楼层 来自: 中国辽宁营口
xhq1954425 发表于 2014-7-10 13:50 static/image/common/back.gif& b# G+ |. A& z
哪招好用?这要看你用在哪儿,俗话说得好,隔行如隔山,别人的用法咱不敢评论,我是搞机械的,图纸都是二维 ...
$ N0 G+ Q1 J( P# E" Q4 S2 d
老师,你这个是插件吧?功能很强大啊!在哪里可以下载这个插件啊?
发表于 2014-7-10 16:43:41 | 显示全部楼层 来自: 中国辽宁本溪
kuangben8 发表于 2014-7-10 15:30 static/image/common/back.gif
. |/ |  x2 x( ?3 Q老师,你这个是插件吧?功能很强大啊!在哪里可以下载这个插件啊?
( h: _8 v6 S# H( a5 R
都是自己开发的,不是搞教学的没太大用
发表于 2014-7-12 09:09:59 | 显示全部楼层 来自: 中国河南洛阳
xhq1954425 的方法好
 楼主| 发表于 2014-7-12 11:33:07 | 显示全部楼层 来自: 中国北京
xhq1954425 发表于 2014-7-10 16:43 static/image/common/back.gif
( C3 s: t+ Q1 r; l3 e. ^# J都是自己开发的,不是搞教学的没太大用

) U0 {+ \7 f- e能够自己开发功能,老师的VBA水平也很了得!
发表于 2014-7-12 14:54:02 | 显示全部楼层 来自: 中国江苏无锡
2013版以上的机械版直接有此功能。
0 n$ g! w- q2 T' n 三维转三视图3.png
/ v% F) ~  I2 b! Y! P7 m2 y. W8 N8 o5 q9 m" v
三维图转三视图.gif
+ l! B8 l, Q+ _1 X. q
发表于 2014-7-12 16:51:10 | 显示全部楼层 来自: 中国辽宁本溪
lvdeping 发表于 2014-7-12 14:54 static/image/common/back.gif
; \% u, [' h! s3 l, ]% }2013版以上的机械版直接有此功能。

  S, u7 W! o. S演示挺好看的,能否贴一张用些方法出来的机械图纸看看效果如何?要是好用的话咱也装一个机械版的。
发表于 2014-7-13 07:55:34 | 显示全部楼层 来自: 中国辽宁抚顺
lvdeping 发表于 2014-7-12 14:54 static/image/common/back.gif
+ `3 I; [9 h; u2013版以上的机械版直接有此功能。
( k6 r/ P2 p' Q2 z9 ^5 S( ~
autocad2013就有此功能,不是机械版独有的
发表回复
您需要登录后才可以回帖 登录 | 注册

本版积分规则


Licensed Copyright © 2016-2020 http://www.3dportal.cn/ All Rights Reserved 京 ICP备13008828号

小黑屋|手机版|Archiver|三维网 ( 京ICP备2023026364号-1 )

快速回复 返回顶部 返回列表