QQ登录

只需一步,快速开始

登录 | 注册 | 找回密码

三维网

 找回密码
 注册

QQ登录

只需一步,快速开始

展开

通知     

查看: 2082|回复: 12
收起左侧

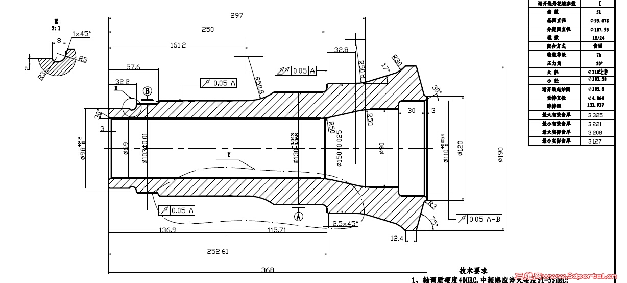
[求助] 请高手看看这个零件的加工工艺

[复制链接]
发表于 2014-7-14 14:16:02 | 显示全部楼层 |阅读模式 来自: 中国山东济南

马上注册,结识高手,享用更多资源,轻松玩转三维网社区。

您需要 登录 才可以下载或查看,没有帐号?注册

x
请高手看看这个零件的加工工艺
* {; m& D7 u, N" v9 [: S2 V
FZREHD)DUZRWL0(HNQL~F}F.jpg
发表于 2014-7-14 21:57:17 | 显示全部楼层 来自: 中国湖南岳阳
大致工艺:
4 _! X) ?$ [+ k* S; K下料(锻造——退火)——粗车——调质(40HRC太高了吧)——精车——高频淬火——磨削。
发表于 2014-7-14 22:26:48 | 显示全部楼层 来自: 中国湖北黄冈
建议:在2楼的基础上,在高频淬火前加半精磨工序把98、150、190三处外圆一次磨出来并保证同轴度。高频淬火后以上述中的98、190两圆定位(98夹在万能外圆磨床的三爪卡盘内、190用中心架定位,校正150直径跳动至最小),然后将有跳动量要求的面(包括150直径的面重新精磨)一次磨成形(110孔用内圆磨头加工)。' s/ ]1 w3 Q- _7 t
这样与基准A跳动要求的面与它一次安装中加工成形,跳动量就能达到要求。
8 h6 P9 h  \- [8 u' g3 j4 g0 y8 i仅供参考。
发表于 2014-7-14 22:49:37 | 显示全部楼层 来自: 中国陕西西安
精车后,铣制渐开线花键,再进行高频淬火。
 楼主| 发表于 2014-7-15 07:14:18 | 显示全部楼层 来自: 中国山东济南
谢谢各位高手的宝贵经验,我试制看看!
发表于 2014-7-15 09:48:03 | 显示全部楼层 来自: 中国山西太原
补充:热处理前铣渐开线外花键,热处理后除磨要求部位外,还需磨外花键各部分。
发表于 2014-7-15 10:02:47 | 显示全部楼层 来自: 加拿大
外花键的侧面是不是也要磨削的。为了统一基准可以将30倒角处研磨 作为顶针配合面来定位可能更方便一些。
 楼主| 发表于 2014-7-15 10:10:14 | 显示全部楼层 来自: 中国山东济南
现在初步定制的工艺流程:下料、锻造、退火、粗车、调质、精车、精修3x30度倒角、滚花键(堵头工装)、中频、磨外圆(堵头工装,各外圆一次磨成保证同轴度)、精镗内孔(110,做工装以130外圆和端面定位)。如有不合适的地方,期待高手指点,谢谢!
发表于 2014-7-15 10:27:30 | 显示全部楼层 来自: 中国湖北黄冈
机加爱好者 发表于 2014-7-15 10:10 static/image/common/back.gif5 P( m9 O, O* F$ J0 r
现在初步定制的工艺流程:下料、锻造、退火、粗车、调质、精车、精修3x30度倒角、滚花键(堵头工装)、中频 ...

4 o: Y5 {, ]$ f* V3 s- l/ |仅仅已130外圆定位不够!定位长度太短了,加工孔时会晃动。
发表于 2014-7-15 11:35:05 | 显示全部楼层 来自: 中国广东广州
机加爱好者 发表于 2014-7-15 10:10 static/image/common/back.gif
$ w4 O+ K8 l$ `- n6 z) {7 j9 ?现在初步定制的工艺流程:下料、锻造、退火、粗车、调质、精车、精修3x30度倒角、滚花键(堵头工装)、中频 ...
4 K. Y6 ~* x0 S
花键滚后中频达不到7级精度,但我看你花键参数表应该不需要7级精度吧
 楼主| 发表于 2014-7-15 13:59:17 | 显示全部楼层 来自: 中国山东济南
kevin1985 发表于 2014-7-15 11:35 static/image/common/back.gif
0 B- V, q9 T! V: t- C* F" @+ m3 l: {花键滚后中频达不到7级精度,但我看你花键参数表应该不需要7级精度吧
/ G; m1 }" p$ \7 X! g# |) s; Z, p
花键中频之后一般会有轻微变形和锥度,我觉得7级也保证不了,到时候试制看看怎么样!谢谢你的回复
发表于 2014-7-15 14:23:21 | 显示全部楼层 来自: 中国浙江杭州
锻造,退火,粗车,调质,精车,滚花键,高频,磨削。
发表于 2014-7-15 16:22:39 | 显示全部楼层 来自: 中国湖北武汉
大神真多,膜拜
发表回复
您需要登录后才可以回帖 登录 | 注册

本版积分规则


Licensed Copyright © 2016-2020 http://www.3dportal.cn/ All Rights Reserved 京 ICP备13008828号

小黑屋|手机版|Archiver|三维网 ( 京ICP备2023026364号-1 )

快速回复 返回顶部 返回列表