QQ登录

只需一步,快速开始

登录 | 注册 | 找回密码

三维网

 找回密码
 注册

QQ登录

只需一步,快速开始

展开

通知     

全站
7天前
查看: 1563|回复: 7
收起左侧

[求助] 球铁焊接泵架

[复制链接]
发表于 2014-7-31 12:04:37 | 显示全部楼层 |阅读模式 来自: 中国广东珠海

马上注册,结识高手,享用更多资源,轻松玩转三维网社区。

您需要 登录 才可以下载或查看,没有帐号?注册

x
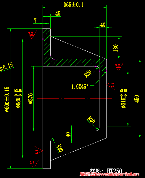
泵架球铁焊接的?今天看到一个220KW电机泵架,图纸材料HT250   有没搞错啊~~~能行否?我们一般都是A3焊接板呀~~~& h$ m6 q! }7 @5 ~
2014-7-31 12-01-16.png
发表于 2014-7-31 12:19:51 | 显示全部楼层 来自: 中国浙江杭州
铸件吧?不过没有看到铸造的特征。铸铁肯定不能用焊接的方式了
 楼主| 发表于 2014-7-31 13:48:08 | 显示全部楼层 来自: 中国广东珠海
zls888 发表于 2014-7-31 12:19 static/image/common/back.gif
& w: }! w5 E% ^; F' m+ ?3 _  {铸件吧?不过没有看到铸造的特征。铸铁肯定不能用焊接的方式了

. B5 O; ^  Q$ x恩恩,这样说就对了,应该是铸件~~~
 楼主| 发表于 2014-7-31 14:32:51 | 显示全部楼层 来自: 中国广东珠海
zls888 发表于 2014-7-31 12:19 static/image/common/back.gif2 O) }+ \- d9 V
铸件吧?不过没有看到铸造的特征。铸铁肯定不能用焊接的方式了

, @+ j& K5 e( v/ P0 Y& b5 q我老想着铸件用35#、45#的之类的
发表于 2014-12-6 13:00:30 | 显示全部楼层 来自: 中国北京
灰铸铁,铸造
发表于 2014-12-17 15:37:04 | 显示全部楼层 来自: 中国吉林四平
本帖最后由 厚积薄发 于 2014-12-17 15:38 编辑 , K- c* l- _3 J1 C; m6 [
) |) C2 P( Y- E: d8 t7 u- G2 O
灰口铸铁,铸造成型后加工,没有经过焊接,也不允许焊接。220KW电机,这么大功率?确定吗?干什么用的?
发表于 2014-12-18 09:48:59 | 显示全部楼层 来自: 中国山西太原
许多泵架是用灰铸铁铸造,泵架若出现裂纹是可以焊接的,焊前要预热,焊缝易产生裂纹,不能用球铁焊条,一般使用专用铸铁焊条,焊接质量较好的是用镍或镍合金焊条(ENi),焊缝不会产生裂纹。
发表于 2014-12-18 16:15:06 | 显示全部楼层 来自: 中国山东滨州
应该是灰铁铸件。
发表回复
您需要登录后才可以回帖 登录 | 注册

本版积分规则


Licensed Copyright © 2016-2020 http://www.3dportal.cn/ All Rights Reserved 京 ICP备13008828号

小黑屋|手机版|Archiver|三维网 ( 京ICP备2023026364号-1 )

快速回复 返回顶部 返回列表