QQ登录

只需一步,快速开始

登录 | 注册 | 找回密码

三维网

 找回密码
 注册

QQ登录

只需一步,快速开始

展开

通知     

查看: 7210|回复: 15
收起左侧

[求助] 减速电机已知,请问如何选用合理的链条型号 ?

[复制链接]
发表于 2014-8-7 13:52:57 | 显示全部楼层 |阅读模式 来自: 中国江苏南京

马上注册,结识高手,享用更多资源,轻松玩转三维网社区。

您需要 登录 才可以下载或查看,没有帐号?注册

x
减速电机已知为WXD3-8-1/87
" N- F7 E0 p# S* A电机功率3kw 速比87 输出扭矩1530N*M
& [" i8 |. q; N1 R请问如何选用合理的链条型号
- N* q7 n4 x# j9 g5 u链轮的中心距680mm
2 ?3 d$ v4 f3 Q* O2 M, x 在手册静强度计算过程中 对Ft有效圆周力的计算中的公式 1 p- r) U1 s# y/ ^* S# p
Ft=1000P/v 其中的P是指输出到链轮上功率还是摆线电机的功率3KW?
: ^" v4 R, u. `) T2 T- m请高手帮忙 谢谢
 楼主| 发表于 2014-8-7 14:11:51 | 显示全部楼层 来自: 中国江苏南京
是这种计算步骤吗?% r% V/ k3 s9 c7 }2 j3 B. B
1:查询电机输出扭矩;
! c) k& M: O6 M2:计算电机扭矩经过减速机减速后的输出扭矩;
. [8 _! K7 Y: o# @( f3 Z3:根据链轮直径计算出牵引力;! R' }! D. m% _3 ?
4:查询链条,找到牵引力(GB/T1243-1997 中的抗拉载荷)大于第三项即可
发表于 2014-8-7 15:07:19 | 显示全部楼层 来自: 中国山西太原
1  选择链条型号,首先要确定使用什类型的链条,例如滚子链、齿型链、长节距板链,使用链条不同,能承受的牵引力也不相同。
2 ^# V$ y: U6 K/ D1 v3 r; l" @$ `! z2  链轮的圆周力Ft也就是链条的牵引力,在公式Ft=1000P/v中,F t既然的链轮的牵引力,P就是链轮的功率,若传动效率为η,电机功率为F0,则P=P0/η。
. W+ q- v. `2 X* a! h- _3 [3  不能根据链轮直径计算牵引力,应该用所牵引的设备条件算出所需要的力。
# @' m5 O$ K" C4  确定了使用链条类型,据牵引力乘上安全系数,查出相应的链条型号。9 X1 E; h" x3 N1 r& h! s, k/ D3 M$ Z, ]
3 G6 a( X7 g+ j2 r1 c' V
发表于 2014-8-7 15:10:19 | 显示全部楼层 来自: 中国湖南岳阳
链条所受拉力F=K.N.R,
) H. K& U5 l8 s1 G/ W8 B其中N——扭矩,R——链轮半径,K——安全系数。
; |: F# ^# ^; y- |依据拉力,选链条。
4 s, Z* b3 M( g) q/ ?0 s9 L5 P
 楼主| 发表于 2014-8-7 20:40:25 | 显示全部楼层 来自: 中国江苏南京
gaoyns 发表于 2014-8-7 15:07 static/image/common/back.gif/ l4 _$ ~5 I' @" d1 m! R+ m5 d
1  选择链条型号,首先要确定使用什类型的链条,例如滚子链、齿型链、长节距板链,使用链条不同,能承受的牵 ...

* b' z* \$ Y" R那针对两位的解释 我的理解就是物体驱动力经过换算扭矩的方式传递到链轮分度圆的力才是链轮真正受到的圆周力
- v' l: z* b6 C9 X/ I* |而不是减速电机所输出的全部
% N- p, I. C; H% L" U减速器输出的一部分作为无用功率流失了; Q7 U+ h9 L* J/ |# A
是这样吗?
% u9 D$ R% m8 l) M/ H5 K+ [7 R) `PS:我这个减速器是用在卸料小车行走机构上的
发表于 2014-8-8 08:16:06 | 显示全部楼层 来自: 中国辽宁沈阳
动力链及带滚轮有轨道的链条其电机只负责牵引力,负重不考虑了。而即需要牵引力又需要负重的链条计算较前述复杂一些,而且选择链条也需要考虑输送物品的需要。节距短输送平稳,节距长抖动较大(有轨道好一些)....。链条型号对输送速度也是有要求的,请仔细按手册要求进行选择。或者将你的原始条件发上来我们给你建议。
 楼主| 发表于 2014-8-8 13:45:56 | 显示全部楼层 来自: 中国江苏南京
shifeng18 发表于 2014-8-8 08:16 static/image/common/back.gif. O. _+ |! _% r, Q% t4 q# T9 T
动力链及带滚轮有轨道的链条其电机只负责牵引力,负重不考虑了。而即需要牵引力又需要负重的链条计算较前述 ...
- W5 U8 U- E& Z! G8 v/ r# _! G4 P# v7 }, s
选用的是滚子链
; C; {* d. ?; q- b原始条件是一台卸料车自重2.5t 9 Z# s6 Z+ c. ?6 @% [5 m
摆线减速器驱动 车轮直径原为Φ400 实际为Φ370. k' |# \, S' u' y# L4 z+ |; q
轴距3500
发表于 2014-8-8 15:46:12 | 显示全部楼层 来自: 中国辽宁沈阳
cayuer 发表于 2014-8-8 13:45 static/image/common/back.gif
& c! \& N$ e6 t; ]( @) L选用的是滚子链
# g0 U% ]: z0 ?. Z) u5 Y& W/ u8 L原始条件是一台卸料车自重2.5t 6 c( i% @9 a1 l, s3 r
摆线减速器驱动 车轮直径原为Φ400 实际为Φ370
! q: }2 O! N/ ?6 T# a, C& X% |
卸料车的话,是否翻斗,如果是翻斗有向上或向下的问题,计算时需要将料斗及物料质量按斜度比例加到牵引力中,最好画个简图。
 楼主| 发表于 2014-8-8 16:03:14 | 显示全部楼层 来自: 中国江苏南京
shifeng18 发表于 2014-8-8 15:46 static/image/common/back.gif
. U% U% q8 z- ~# J) H1 d9 U6 O2 T卸料车的话,是否翻斗,如果是翻斗有向上或向下的问题,计算时需要将料斗及物料质量按斜度比例加到牵引力 ...
4 n5 A% F; n; }3 s& i/ q
物料可以忽略不计 因为量很小 而且卸料车也可以在无料状态下行走
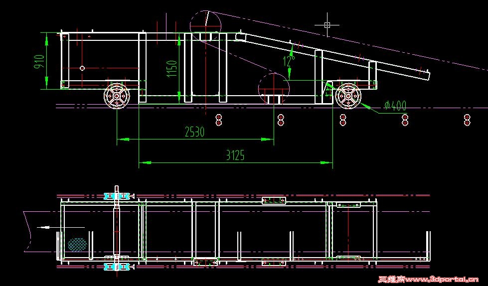
% j9 `2 v9 ]( q; `( \/ n图画的丑 见笑了 1.jpg
发表于 2014-8-8 16:39:44 | 显示全部楼层 来自: 中国辽宁沈阳
本帖最后由 shifeng18 于 2014-8-8 16:43 编辑 & Z5 U! `4 t5 X! s0 M; o
cayuer 发表于 2014-8-8 16:03 static/image/common/back.gif
0 B) ?& H" I5 O8 B物料可以忽略不计 因为量很小 而且卸料车也可以在无料状态下行走/ d& G+ J3 s; e" X' m
图画的丑 见笑了

" G6 m3 ^! f" G: b7 ?4 g; ]5 y1、如果只想使用链条作为车的动力可以使用多排套筒辊子链条,其选择时按手册标准链条列表扯断力的0.5倍=电机牵引力即可。0 D1 [8 o- j# ^9 y
2、注意链轮与减速器链轮速比,这个速比决定车的行走速度,以合适的速度为好。
 楼主| 发表于 2014-8-8 19:06:12 | 显示全部楼层 来自: 中国江苏南京
shifeng18 发表于 2014-8-8 16:39 static/image/common/back.gif8 n, n3 x5 |' [- p: l8 J  y
1、如果只想使用链条作为车的动力可以使用多排套筒辊子链条,其选择时按手册标准链条列表扯断力的0.5倍=电 ...

9 A/ N( n* o3 J  Y+ N  V- A9 F2 Y减速电机输出扭矩为1530N*M,用20A单排链轮 15齿
; o" o* ~" s6 Y- b关键我看到链轮标准中有一个计算公式是
) {0 f2 |; a( R+ Q8 P0 v8 \1 _: x, o/ i有效圆周力Ft=1000P/V3 m9 l3 i: P( O3 F9 Z! i
v是链轮线速度
) V. k) F2 u: t1 D( G5 j那个电机功率的选择让我很彷徨
) c! I) L* u5 x$ S! _如果按照87的速比输出功率算的话 87*3=2613 ~$ z/ j0 \5 d! ?( L; \, x. }3 E
V大概好像为0.11左右/ f$ B2 U" s$ r. H2 t$ n; V
代入有效圆周力的公式所计算出的力远远大于链条的最小抗拉载荷Q# u/ Y  x) s7 y/ d2 Y( Y! i
如果单从扭矩来算力却没有那么大 2 c' G3 t2 Y* k% w0 r+ a$ f
不知道问题出在什么地方?  
发表于 2014-8-8 22:58:12 来自手机 | 显示全部楼层 来自: 中国辽宁
沒看到你的算式,不好说。在设计手册13-106页有计算例题你对照检查吧。
 楼主| 发表于 2014-8-9 12:46:19 | 显示全部楼层 来自: 中国江苏

RE: 减速电机已知,请问如何选用合理的链条型号 ?

shifeng18 发表于 2014-8-8 22:58 static/image/common/back.gif& J1 R# C8 I/ L4 N7 g, K
沒看到你的算式,不好说。在设计手册13-106页有计算例题你对照检查吧。
, H+ G' ^3 t; J3 z5 [& L' ]5 \* a& B
那个没有减速器上装链轮的算法
发表于 2014-8-9 20:06:25 | 显示全部楼层 来自: 中国辽宁本溪
Ft=1000P/v 其中的P是指输出到链轮上功率还是摆线电机的功率3KW?$ r1 I# w, \( r$ [
P是3KW。; r! ?' q$ X+ y4 u' ?
Ft是链轮拉链条的力不是功率。
 楼主| 发表于 2014-8-9 21:37:40 | 显示全部楼层 来自: 中国江苏
shifeng18 发表于 2014-8-9 20:06 static/image/common/back.gif6 q, F5 B1 h! n) `# D( N' J- [5 X
Ft=1000P/v 其中的P是指输出到链轮上功率还是摆线电机的功率3KW?1 h5 H' `6 p4 o/ X1 _, k
P是3KW。
! ?) c: J( T! j! wFt是链轮拉链条的力不是功率。 ...

* ~2 B! M+ M% S* ^% m感谢,是我叙述不清晰,我知道单位是牛顿。我疑惑的就是对于P的不确定
发表于 2014-8-23 13:38:04 | 显示全部楼层 来自: 中国北京
学习了,涨姿势中……
发表回复
您需要登录后才可以回帖 登录 | 注册

本版积分规则


Licensed Copyright © 2016-2020 http://www.3dportal.cn/ All Rights Reserved 京 ICP备13008828号

小黑屋|手机版|Archiver|三维网 ( 京ICP备2023026364号-1 )

快速回复 返回顶部 返回列表