QQ登录

只需一步,快速开始

登录 | 注册 | 找回密码

三维网

 找回密码
 注册

QQ登录

只需一步,快速开始

展开

通知     

全站
7天前
查看: 2244|回复: 7
收起左侧

[求助] 法兰密封效果

[复制链接]
发表于 2014-10-24 11:06:52 | 显示全部楼层 |阅读模式 来自: 中国广东中山

马上注册,结识高手,享用更多资源,轻松玩转三维网社区。

您需要 登录 才可以下载或查看,没有帐号?注册

x
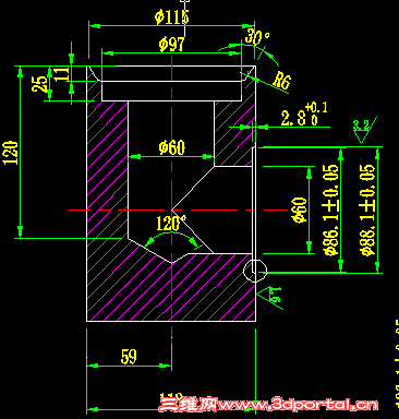
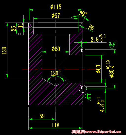
想问下如图2种直角法兰的密封性。(即带圈处)都不会漏油吧。
  U% u4 k% B; z: Y6 L/ p可以互相改吧?
2014-10-24 11-05-33.png
2014-10-24 11-01-30.png
发表于 2014-10-24 12:03:17 | 显示全部楼层 来自: 中国山东潍坊
不保险,若是把密封槽设计在内孔里,效果能更好。
发表于 2014-10-24 12:31:12 | 显示全部楼层 来自: 中国湖南岳阳
端面密封上图可能更好些,O型圈不会移位。下图长时间使用后就难说了。
发表于 2014-10-24 16:07:32 | 显示全部楼层 来自: 中国山西太原
楼主给出的这两种结构在实际应用中都有,上一种叫平法兰,槽叫“水线”,垫可入槽内一部分。槽大也可加O型圈;下一种叫凹凸面法兰,这里是凹面,与其相配的是凸面,中间夹垫片,密封较上面的可靠,承受压力较大。
发表于 2014-10-24 17:14:11 | 显示全部楼层 来自: 中国广东东莞
本帖最后由 repzk031 于 2014-10-24 17:33 编辑 ' n1 Y- g  ^/ [& `4 Q' T+ ~8 Y& s
gaoyns 发表于 2014-10-24 16:07 static/image/common/back.gif- c! V- T' B2 Q. e: p/ Z
楼主给出的这两种结构在实际应用中都有,上一种叫平法兰,槽叫“水线”,垫可入槽内一部分。槽大也可加O型圈 ...
! t) b7 `2 Q' w5 N# H
高老,正好我手头上有日本华尔卡O型圈的样本,内压使用场合“固定用(平面)O型圈安装槽的形状及尺寸”两种结构都有,样本没有说哪个好,哪个不好.我也很想知道(我暂且认为内压没区别吧).
3 w1 q* U$ D4 n: r; _! A! _% k8 U, K7 q4 R/ A) Z& T' {2 U
随后我又看下Nok样本,有了答案,NOK有说明请看图
I)O@ZZ3V$)U(L3~PJ1]}_(P.png
]Z43@9ZPW64G1C}LRMQB[SA.jpg
 楼主| 发表于 2014-10-25 09:07:43 | 显示全部楼层 来自: 中国广东中山
repzk031 发表于 2014-10-24 17:14 static/image/common/back.gif
& s4 n/ p1 v& y# G1 R高老,正好我手头上有日本华尔卡O型圈的样本,内压使用场合“固定用(平面)O型圈安装槽的形状及尺寸”两 ...

4 z# _- ]' S9 l' R( LC场合不是外壁有依附吗?而且我们也经常都是用这种内压,靠外壁依附的O圈密封。
发表于 2014-10-25 09:20:00 | 显示全部楼层 来自: 中国广东东莞
Nmob 发表于 2014-10-25 09:07 static/image/common/back.gif
) ?& D( D- {$ a, kC场合不是外壁有依附吗?而且我们也经常都是用这种内压,靠外壁依附的O圈密封。
& @4 S3 B3 L0 I4 N! p  B' S
如还有不详之处,您何不致电NOk,华尔卡,司达行或者特瑞宝在当地的销售人员,看看他们的怎么说(见解).
发表于 2014-10-25 14:40:48 | 显示全部楼层 来自: 美国
实际使用中,我是不会用楼主第二方案的,主要理由有两个,第一,安装定位不好,容易移位,用什么粘好位置然后装什么的不是100%的安全;第二,承受内压不代表永远有压力作用,甚至有时会出现负压(实际中发生过,在正反换向瞬间,密封圈被吸变形了)其实还有第三个原因,在安装后,压缩变形不稳定,因为内径没有被限制,导致密封效果在后期不良。4 ]: u. E1 o* p5 c
但如果是用硬质的骨架垫圈,上述问题都可以解决。
发表回复
您需要登录后才可以回帖 登录 | 注册

本版积分规则

Licensed Copyright © 2016-2020 http://www.3dportal.cn/ All Rights Reserved 京 ICP备13008828号

小黑屋|手机版|Archiver|三维网 ( 京ICP备2023026364号-1 )

快速回复 返回顶部 返回列表