QQ登录

只需一步,快速开始

登录 | 注册 | 找回密码

三维网

 找回密码
 注册

QQ登录

只需一步,快速开始

展开

通知     

全站
7天前
查看: 3577|回复: 11
收起左侧

[求助] 未注焊脚尺寸=8

[复制链接]
发表于 2014-11-11 12:47:05 | 显示全部楼层 |阅读模式 来自: 中国四川资阳

马上注册,结识高手,享用更多资源,轻松玩转三维网社区。

您需要 登录 才可以下载或查看,没有帐号?注册

x
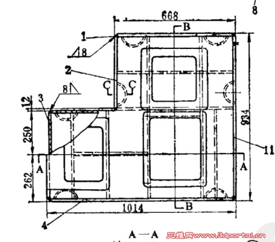
图纸技术要求栏,注明了 未注焊脚尺寸=8,为什么图纸中 还要注明这个参数呀?而且有几处,我取的任意两处。请各位老师看。
3 f& a' v9 Y3 z8 s8 z4 O8 \0 l0 S; j. ^9 \
  f5 f+ A& r4 u# R3 X" x  y
! k7 P% E' r$ Q4 v) K! ]8 H: m- }4 n5 B
01.jpg
02.jpg
发表于 2014-11-11 13:01:08 | 显示全部楼层 来自: 中国陕西西安
应该是设计者疏忽了。
2 z! e0 K; \/ V  k技术要求里有明确要求时,完全可以不用再标注这一参数。
发表于 2014-11-11 19:29:43 | 显示全部楼层 来自: 中国湖南岳阳
并非重复。图中特别标注的不但有焊接高度,还有焊接方式,而未注焊接点只要求焊接高度,不要求焊接方式。
 楼主| 发表于 2014-11-11 19:59:24 | 显示全部楼层 来自: 中国四川资阳
TKG-09 发表于 2014-11-11 19:29 static/image/common/back.gif
; Z) y9 a" \1 ^2 y/ l  A并非重复。图中特别标注的不但有焊接高度,还有焊接方式,而未注焊接点只要求焊接高度,不要求焊接方式。

0 H+ ^' \1 \: J; u. @/ _谢谢。焊接方式不同。两个都是角焊接方式呀../ f$ a1 e( x! r5 `
5 ?7 h2 D. k$ X3 e+ b
方式应该是一样的,有什么不同啊?9 }- f  ?8 y3 U- `  Z- f
) F* D. C! R( h6 T3 r
谢谢
发表于 2014-11-12 09:04:48 | 显示全部楼层 来自: 中国山西太原
这样是为了简化标注,在一张图中各处焊缝的焊接方式相同而焊角高度不同,将量少的标注出来,其余就归要求说明里。图中的标法确实重复了。如有特殊要求的焊缝可以标出,如环形焊缝、断续焊缝等,虽然焊角高度相同,但焊接方式不同,也应标出。! _% `, c0 u( M3 K
楼主的图上得不全面,看不出其它标的内容。
 楼主| 发表于 2014-11-14 13:13:58 | 显示全部楼层 来自: 中国四川资阳
gaoyns 发表于 2014-11-12 09:04 static/image/common/back.gif
' O% k7 I( [$ d7 G: m  Y这样是为了简化标注,在一张图中各处焊缝的焊接方式相同而焊角高度不同,将量少的标注出来,其余就归要求说 ...
/ ^5 c  h4 y+ \" o+ U
谢谢老师的热心回答。; @+ I: @$ J8 l

$ j) w% @) P3 y+ y+ z老师看看图。焊接方式有什么不一样呀?* S, }3 q5 _; Y* @7 b

- D& x, }8 H0 F) }$ P0 U+ g6 |: C5 @

. w- H* _3 g3 T& D( O* ~5 y% I* i
01.jpg
02.jpg
03.jpg
发表于 2014-11-14 18:51:06 | 显示全部楼层 来自: 中国山西太原
xuexi520 发表于 2014-11-14 13:13 static/image/common/back.gif
% A8 F1 G1 k) j! C谢谢老师的热心回答。( G: p+ z& ^3 D, E+ s! t* Q
2 C% C/ W# e8 ?, v1 I/ e
老师看看图。焊接方式有什么不一样呀?
6 o! ^$ r+ W2 m- q- F: E' y
1  双面角焊缝(不能漏油),与单面角焊缝有区别。
+ k( U" u. \8 Y2 l9 w6 {0 S2  10×50(50):断续焊缝,焊50mm,断开50mm,共有10处。同样还有一个是共5处。
) U2 g1 P" Z6 ?" Q8 x/ b标单面角焊缝焊角高度8的是重复了。
发表于 2014-11-14 20:52:05 | 显示全部楼层 来自: 中国江苏苏州
可以,做个事列,更形象些。
, n  ~1 ^: B. c: D2 G
 楼主| 发表于 2014-11-16 17:49:35 | 显示全部楼层 来自: 中国四川资阳
谢谢各位老师。' ^* H  q- y4 N7 Q! j
7 r$ i8 ?; s' l4 S
如图中,作图的时候那个黑色的三角形  需不需要画出呀?1 H# |0 z# u$ Q( C9 z

$ k' L/ z( N' I8 F谢谢
3 w) K; e* o6 K$ ~5 g
01.jpg
发表于 2014-11-17 00:32:47 | 显示全部楼层 来自: 中国陕西西安
只是为了直观显示。% Y! {* z4 g4 L1 e* M3 Z2 r1 A+ ]
不需要画出。
发表于 2014-11-17 08:59:04 | 显示全部楼层 来自: 中国山西太原
xuexi520 发表于 2014-11-16 17:49 static/image/common/back.gif/ j. |0 R) t& k  A2 k
谢谢各位老师。9 M; [; h0 P0 }( Q4 `9 z, Q
/ R' @) ]8 I9 a/ ]' J+ T: [6 ^
如图中,作图的时候那个黑色的三角形  需不需要画出呀?
/ N; b- ]9 S  T3 W" q6 Z+ j7 V
画出来更清晰,不会遗漏,就像你图中表示的那样。但不画也行,只要标出焊接符号也可以。
 楼主| 发表于 2014-11-18 12:30:18 | 显示全部楼层 来自: 中国四川资阳
谢谢 各位老师
5 l: K$ R4 `6 L/ N1 Z. e# d. q$ ]% x* N
10×50(50):断续焊缝,焊50mm,断开50mm,共有10处。第一条焊缝的起始位置在图中没有被示出吧。那我改从哪里焊呢?
( ?2 g1 |7 n- G" k谢谢
发表回复
您需要登录后才可以回帖 登录 | 注册

本版积分规则

Licensed Copyright © 2016-2020 http://www.3dportal.cn/ All Rights Reserved 京 ICP备13008828号

小黑屋|手机版|Archiver|三维网 ( 京ICP备2023026364号-1 )

快速回复 返回顶部 返回列表