QQ登录

只需一步,快速开始

登录 | 注册 | 找回密码

三维网

 找回密码
 注册

QQ登录

只需一步,快速开始

展开

通知     

查看: 5981|回复: 18
收起左侧

[讨论] 标注尺寸和实测尺寸不一致,如何标识出来。

[复制链接]
发表于 2015-4-13 16:04:47 | 显示全部楼层 |阅读模式 来自: 中国四川成都

马上注册,结识高手,享用更多资源,轻松玩转三维网社区。

您需要 登录 才可以下载或查看,没有帐号?注册

x
打开一张图,拉了一下尺寸,发现有的标的和拉出来的尺寸相等,有的不相等,有没有什么按钮或者命令,可以将这些不一致的尺寸自动检测出来,用另一种颜色标识出来?
" }7 R. k/ u) f% H" W" x! a
发表于 2015-4-13 16:52:57 | 显示全部楼层 来自: 中国四川南充
貌似不行哦
发表于 2015-4-13 17:43:53 | 显示全部楼层 来自: 中国台湾
一個懶惰的設計師在改圖時不願去修改圖素只簡單的把標註尺寸改一改了事,
8 O$ `% g. i4 D' N害死後面一堆人
6 T& ^  H9 s$ k5 |; e; [
 楼主| 发表于 2015-4-13 19:04:22 | 显示全部楼层 来自: 中国四川成都
不知道CAD里面有这个功能没有。
发表于 2015-4-13 20:00:24 | 显示全部楼层 来自: 中国安徽蚌埠
andy1414 发表于 2015-4-13 17:43 static/image/common/back.gif
' V) f* C$ q6 V3 s6 z一個懶惰的設計師在改圖時不願去修改圖素只簡單的把標註尺寸改一改了事,1 n7 k$ j  S2 F4 ~+ _
害死後面一堆人
9 ^& f6 T9 ~, B" K  l
我有碰到这样的事情,某工直接改个参数,然后拿去数控下料,孔的中心距全部不对,刚开始还没有检查,等到装配孔的时候才发现。/ J0 `4 G( `, _0 K! A. j
我想有些插件(如天河)有提供参数化设计,将图形带尺寸全选,参数化后,尺寸应该会有变化
发表于 2015-4-13 21:30:59 | 显示全部楼层 来自: 中国江苏泰州
没有直接的命令可以做到,需要借助外挂程序方能实现,譬如燕秀
发表于 2015-4-14 01:37:49 | 显示全部楼层 来自: 中国陕西西安
本帖最后由 我爱用acad 于 2015-4-14 02:46 编辑
. K6 W* m# D, j( t+ h. b4 }: L7 U9 O5 R+ n2 R! i
如楼上所言,CAD自己目前还没有直接的检测命令。
发表于 2015-4-14 08:34:07 | 显示全部楼层 来自: 中国河北沧州
遇到过这样的情况,cad中比例缩放解决的
' U( F! {3 ?# L1 j1 F
发表于 2015-4-14 08:42:59 | 显示全部楼层 来自: 中国江苏无锡
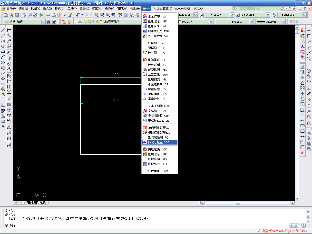
有个清华天河中的插件(插件要另外加载),可以检查。假尺寸显示为红色
$ F. J2 K3 S* v# n5 ^* c* a插件你可以在天河版块找。; I9 |2 n" t+ S$ G+ Y; U' i
22.PNG 11.png
发表于 2015-4-14 08:47:15 | 显示全部楼层 来自: 中国广东东莞
caxa电子图板,可以对用户标注做标识。4 `& P) w0 d. w1 _% {! [
. U! E! B' K/ g$ A
011.jpg - Y* A& q* o; y. j; B3 e

4 `" l4 i! p/ R 022.jpg
发表于 2015-4-14 08:54:44 | 显示全部楼层 来自: 中国江苏无锡
本帖最后由 wfwling12 于 2015-4-14 08:57 编辑
7 _$ e7 F. z$ [" o- J+ q9 }9 t) l  H: h. [
pccad中有个插件可以完成。检查假尺寸,并显示红色' R7 `' s& A. G* |$ y) |
22.PNG 11.png
发表于 2015-4-14 09:02:00 | 显示全部楼层 来自: 中国江苏无锡
cloudpeng 发表于 2015-4-14 08:47 static/image/common/back.gif
+ S& z- H, B# w4 G2 |  scaxa电子图板,可以对用户标注做标识。

# {( g# M6 ?% @+ y貌似没我的方便啊。我的是一张图中所有的假尺寸都显示为红色。
发表于 2015-4-14 11:02:19 | 显示全部楼层 来自: 中国河南郑州
CAD自带的应该没这功能
发表于 2015-4-14 15:37:15 | 显示全部楼层 来自: 中国广东东莞
wfwling12 发表于 2015-4-14 09:02 static/image/common/back.gif# L  \8 Z" v0 ]6 g
貌似没我的方便啊。我的是一张图中所有的假尺寸都显示为红色。
9 N# W& ^9 C8 M: @; h$ t
对。从楼主题目来看,CAXA的这个功能,并没有达到楼主的要求。而且我没有用过PCCAD和燕秀之类,真没有发言权呢。
7 ~  @; d3 U3 {; s! v但CAXA启动快,操作流畅,按图框自动缩放所有标注样式的比例,用起来还是比较舒适的。
发表于 2015-6-5 16:26:35 | 显示全部楼层 来自: 中国重庆
单一加工图纸问题还不大,要是直接电脑转加工,那就惨了,全部都错。
发表于 2019-10-15 19:52:52 | 显示全部楼层 来自: 中国湖北咸宁
燕秀真的很好用。谢谢!
发表于 2020-5-29 21:29:51 | 显示全部楼层 来自: 中国四川雅安
在CAXA的工具__显示尺寸标识。
发表于 2020-5-29 21:32:59 | 显示全部楼层 来自: 中国四川雅安
在CAXA的工具__显示尺寸标识。
发表于 2020-7-16 08:33:24 | 显示全部楼层 来自: 中国辽宁盘锦
我用的是2020版本,两种假尺寸,软件提示的标记
无标题.png
发表回复
您需要登录后才可以回帖 登录 | 注册

本版积分规则


Licensed Copyright © 2016-2020 http://www.3dportal.cn/ All Rights Reserved 京 ICP备13008828号

小黑屋|手机版|Archiver|三维网 ( 京ICP备2023026364号-1 )

快速回复 返回顶部 返回列表