QQ登录

只需一步,快速开始

登录 | 注册 | 找回密码

三维网

 找回密码
 注册

QQ登录

只需一步,快速开始

展开

通知     

全站
8天前
查看: 4186|回复: 5
收起左侧

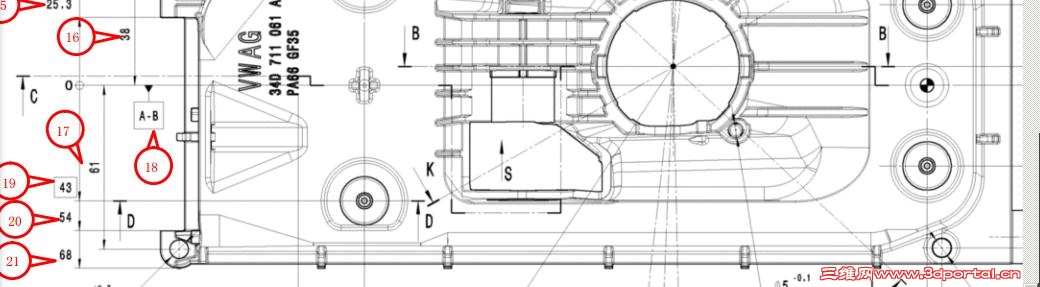
[已答复] 大家好, 帮我看一下这A-B基准啥意思啊?

[复制链接]
发表于 2015-5-18 10:42:34 | 显示全部楼层 |阅读模式 来自: 中国浙江宁波

马上注册,结识高手,享用更多资源,轻松玩转三维网社区。

您需要 登录 才可以下载或查看,没有帐号?注册

x
后面有些位置度对应的基准是: A A-B C,又没在其它地方找到A和B基准。# }4 l; J) t7 T. G2 I! W9 K: y# h. a6 N
这样的话应该怎样去理解啊$ O4 L2 _8 [- h& ~! `6 m( B$ ]& m$ D2 W
2654.tmp.jpg
发表于 2015-5-18 13:35:41 | 显示全部楼层 来自: 中国广东东莞
哪国的图纸?对应的应该有制图标准。
发表于 2015-5-18 21:55:38 | 显示全部楼层 来自: 中国安徽蚌埠
本帖最后由 jinqin11 于 2015-5-18 21:57 编辑 5 ~6 b0 f# ?  p+ K" C

* W. X+ }9 i0 Y9 K" i能给全图吗. q" ?/ _( J# z0 B/ R. k" K
图示18号A-B就是个我们A或者其他字母的代号
发表于 2015-5-20 23:27:51 | 显示全部楼层 来自: 中国江苏苏州
A-B指坐标式标注方式的标注基线,即两个定位销孔中心轴线确定的基准面,是不是意大利图纸啊?
发表于 2015-5-21 11:58:32 | 显示全部楼层 来自: 中国浙江宁波
需看全图才能解答,从正规角度来说,基准符号和剖切符号所有的字母是不能重复的
发表于 2015-5-21 20:17:16 | 显示全部楼层 来自: 中国上海
赞同4楼:)
发表回复
您需要登录后才可以回帖 登录 | 注册

本版积分规则

Licensed Copyright © 2016-2020 http://www.3dportal.cn/ All Rights Reserved 京 ICP备13008828号

小黑屋|手机版|Archiver|三维网 ( 京ICP备2023026364号-1 )

快速回复 返回顶部 返回列表