QQ登录

只需一步,快速开始

登录 | 注册 | 找回密码

三维网

 找回密码
 注册

QQ登录

只需一步,快速开始

展开

通知     

查看: 1555|回复: 14
收起左侧

求教这个 标注是怎么标注出来的

[复制链接]
发表于 2015-6-2 18:29:50 | 显示全部楼层 |阅读模式 来自: 中国北京

马上注册,结识高手,享用更多资源,轻松玩转三维网社区。

您需要 登录 才可以下载或查看,没有帐号?注册

x
本帖最后由 上帝情节 于 2015-6-2 18:32 编辑

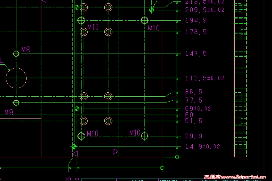
这个是别人发过来的图纸 就是搞不懂这个是咱们标注的
QQ截图20150602182542.jpg
QQ截图20150602182542.jpg
发表于 2015-6-2 22:22:42 | 显示全部楼层 来自: 中国湖北黄冈
座标标注法。
发表于 2015-6-2 22:38:24 | 显示全部楼层 来自: 中国安徽蚌埠
设零点,标点 坐标
 楼主| 发表于 2015-6-3 09:00:58 | 显示全部楼层 来自: 中国北京
坐标 标注法  我标不出来这种效果啊
 楼主| 发表于 2015-6-3 09:02:37 | 显示全部楼层 来自: 中国北京
开始我以为是什么插件标出来的
网上找了找  没找到
发表于 2015-6-3 09:34:45 | 显示全部楼层 来自: 中国陕西西安
坐标标注。直线箭头是绘制的。
 楼主| 发表于 2015-6-3 09:45:39 | 显示全部楼层 来自: 中国北京
非常感谢 !
我在研究下 ,实在不行 箭头和那直线 就只能手动绘制了
发表于 2015-6-3 21:04:33 | 显示全部楼层 来自: 中国广东佛山
本帖最后由 hfmgh 于 2015-6-3 21:05 编辑

在AutoCAD Mechanical中一个命令全部标出来,请看视频文件。
QQ截图20150603210054.jpg

绘制视频.rar

2.17 MB, 下载次数: 3

发表于 2015-6-3 21:26:15 | 显示全部楼层 来自: 中国广东佛山
搞了一张GIF的,上面的视频不用下载了。
jdfw.gif
 楼主| 发表于 2015-6-4 14:35:25 | 显示全部楼层 来自: 中国北京
哥们,你这个是怎么标记出来的
是用的插件吗?
要是插件 能给我传一份吗。
 楼主| 发表于 2015-6-4 15:45:59 | 显示全部楼层 来自: 中国北京
我刚看到 你说用 AutoCAD Mechanical  标出来的  
我去学习学习
以前都没用过
非常感谢
发表于 2015-6-4 19:03:35 | 显示全部楼层 来自: 中国广东佛山
上帝情节 发表于 2015-6-4 15:45 static/image/common/back.gif
我刚看到 你说用 AutoCAD Mechanical  标出来的  
我去学习学习
以前都没用过

以前用的也是各种插件和外挂,07年接触了AutoCAD Mechanical以后其它的外挂和插件都没用了,从2010版之后除了软件大点和启动速度慢点,但用起来是非常好用的,当你定制好了模板,图框,标题栏和明细表样式之后,用起来就更顺手了。
 楼主| 发表于 2015-6-5 11:13:43 | 显示全部楼层 来自: 中国北京
我也下载了一个2014  装上了  还是有个别的 地方用着 别扭
和CAD 还是有点差别的
 楼主| 发表于 2015-6-5 11:16:37 | 显示全部楼层 来自: 中国北京
尺寸标注 怎么捕捉不了 其他的边线都可以捕捉
就是尺寸线捕捉不了
 楼主| 发表于 2015-6-5 12:06:33 | 显示全部楼层 来自: 中国北京
OK 了  解决了 已经
发表回复
您需要登录后才可以回帖 登录 | 注册

本版积分规则


Licensed Copyright © 2016-2020 http://www.3dportal.cn/ All Rights Reserved 京 ICP备13008828号

小黑屋|手机版|Archiver|三维网 ( 京ICP备2023026364号-1 )

快速回复 返回顶部 返回列表