QQ登录

只需一步,快速开始

登录 | 注册 | 找回密码

三维网

 找回密码
 注册

QQ登录

只需一步,快速开始

展开

通知     

全站
9天前
查看: 5154|回复: 2
收起左侧

[分享] 利用配置管理焊件轮廓——切割清单说明属性自定义方法

[复制链接]
发表于 2017-1-3 16:14:32 | 显示全部楼层 |阅读模式 来自: 中国广东深圳
安装
主题分类用于问题归类:

马上注册,结识高手,享用更多资源,轻松玩转三维网社区。

您需要 登录 才可以下载或查看,没有帐号?注册

x

/ q* }+ r7 ]2 X
利用配置管理焊件轮廓
                                                ——切割清单说明属性自定义方法
ICT-Jack 孔祥龙

' r0 b$ C9 O- G- K$ J8 b0 D
" R5 R) _" A2 L1 [4 v3 z) h  P9 `  k3 Z

  ^  W1 y) q! J& B【智诚科技/孔祥龙/Jack Kong】
8 i8 }* S9 A1 R9 S" b  @1 D/ qSOLIDWORKS焊件快速完成焊件结构的模型创建,由于默认的焊件轮廓都是独立文件,存在于安装目录下,在这个过程中如果需要对轮廓进行属性添加/更改或者是定义材料等操作,即使只针对同一规格,也将会产生较繁琐的操作,这里我们利用SOLIDWORKS配置来将焊件轮廓进行整合管理,提高在焊件使用中的效率。0 M) i& h7 N  s1 h4 {  N4 h
关键字:焊件、轮廓、SOLIDWORKS、配置. g: {6 v$ `7 T) e5 H9 h3 K

- x- a. N3 M( e, w: |* ]& e6 l" M3 D' F% d8 O
1.        将同类型多个焊件轮廓利用配置整理为一个焊件轮廓
7 R+ u& w  v! C首先,在如下目录找到对应的焊件轮廓(红色部分代表SOLIDWORKS安装盘)
3 O$ b: T5 c' _X:\Program Files\SolidWorks Corp2014\SolidWorks\lang\chinese-simplified\weldment profiles
4 Y' ~  _+ c! @- N9 v* B' q! B' Z, H此文件夹中找到需要整合的类目(此处以ISO的方管为例), ?$ k5 q7 {$ h3 A4 B6 f* @
①复制一个方管下的文件到ISO目录下,并重命名。" b# h4 ]' H. C7 F/ o
1.png 0 X3 i! h2 \/ Y! p7 t; m& O/ P7 G9 Q
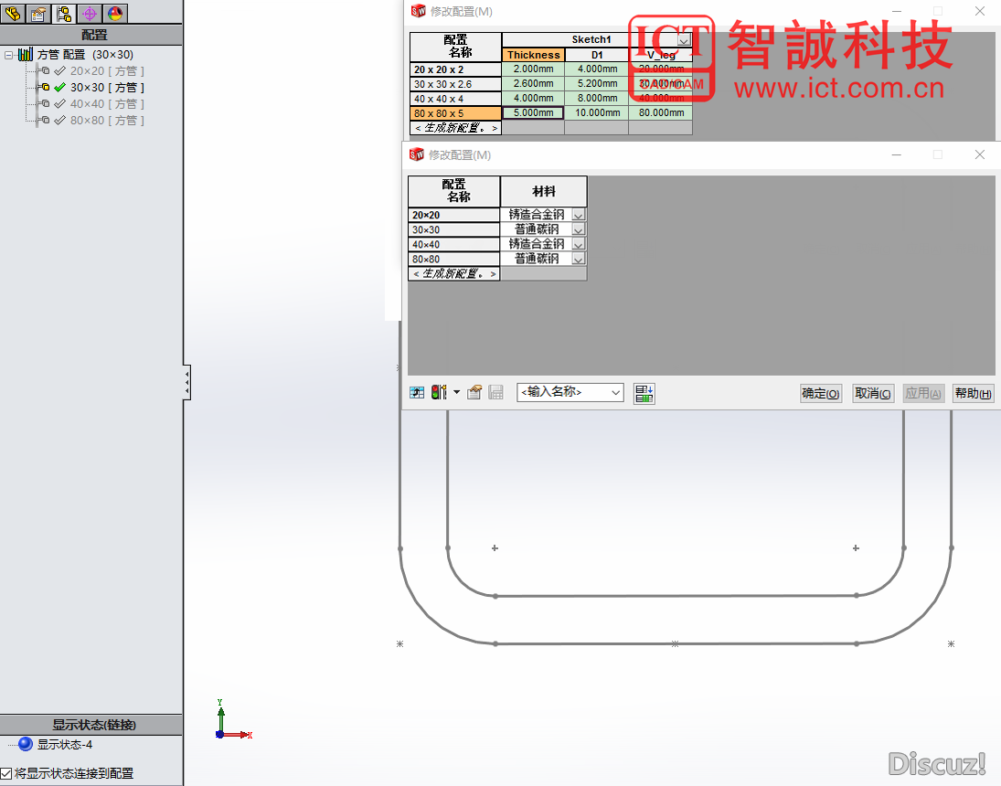
②打开此轮廓文件并对其增加配置,并配置尺寸。(同样支持配置材料)
0 u2 M& ]5 B8 Z0 j. ^$ l+ L" s8 [' R, v 2.png & ]* B. @' U$ v& i- e
③配置完成之后,确认保存即可
. o$ f# \: J6 i4 f2 k& Y( c, ^④在焊件中生成结构件的时候就可以直接在类型中选择到此配置文件,简化数据内容,再多的轮廓,通过配置可以轻松的管理
! }2 X- {0 b8 g: m3 T 3.png
" p7 h; w, h2 K+ l" A! _+ q  n+ d* X9 B7 |0 G: R2 Z% ~
0 [  e% {; f% P
2.自定义此类焊件轮廓的属性
9 e% ?$ V7 g6 Q: h* T完成配置之后,我们需要对管理他们在焊件清单中的属性显示(如图,红框中显示的为轮廓的属性说明)- f$ h( i$ Y$ l! s  r
4.png
: v& _, }( z. K5 p通过一个文件来管理多个轮廓的说明属性:
6 q+ i$ J" y( E5 L由于使用配置管理焊件轮廓,这里需要使用配置特定属性来定义他们,这里设定结果为:名称+截面长宽——例:“方管,40×40”% T! r! u8 R( K( B% e  i
①将自定义属性中的说明复制到配置特定中,根据要求定义表达式。; }$ H) ?* W, K3 z
5.png
: V6 N7 v( e4 N$ [* [7 D②以此类推,完成其他的配置特定。/ R+ ?3 M. h! ]  e3 K
完成后,我们可以在使用这个轮廓后将此处定义的配置属性在焊件清单中显示。
) p/ h+ Q" h1 ~( H) [5 M4 u 6.png : s' m( k) s2 _$ ?# g
根据配置的方法可以在一个文件中管理多个焊件轮廓,而且这样的方式可以支持批量添加焊件轮廓,只需要在配置中调用设计表批量添加即可完成,快速高效。7 v. d0 i- {. n8 A

" _* Z* Z2 b  A9 U7 c
+ Z5 ^! C4 m0 Z
' R; }( A" r9 f8 o* b$ q0 e' F  L" `5 b8 M3 A! e# O/ M) }  N6 ~
发表于 2017-1-20 12:28:04 | 显示全部楼层 来自: 中国广东深圳
yangdz 发表于 2017-1-3 16:27
" D: F$ J2 B' g; X/ u* r) \2 j0 R- k好方法!5 @- f. i) {8 ?
但有一点疑问:根据焊接轮廓的实际来看,这个,对方管、圆管等有效,对角钢、槽钢之类的,好像也 ...
3 o' B$ F5 ]  d: |
这个使用的原理都是一样的,你在文中提示的路径下找到一个角钢的轮廓,然后进行尝试就知道了
发表于 2018-4-23 08:06:38 | 显示全部楼层 来自: 中国江苏无锡
本帖最后由 arter 于 2018-4-23 11:36 编辑
$ b# m7 C2 |. V- E' L9 \' p- z. \5 ]! ]$ Y' U( E1 W" V' S
感谢楼主分享,本来想问的问题已经解决
111.PNG
000.jpg
发表回复
您需要登录后才可以回帖 登录 | 注册

本版积分规则


Licensed Copyright © 2016-2020 http://www.3dportal.cn/ All Rights Reserved 京 ICP备13008828号

小黑屋|手机版|Archiver|三维网 ( 京ICP备2023026364号-1 )

快速回复 返回顶部 返回列表