QQ登录

只需一步,快速开始

登录 | 注册 | 找回密码

三维网

 找回密码
 注册

QQ登录

只需一步,快速开始

展开

通知     

查看: 2719|回复: 9
收起左侧

[已答复] 请大家看看这轴结构,轴承的用法有什么缺点?

[复制链接]
发表于 2017-3-4 11:04:12 | 显示全部楼层 |阅读模式 来自: 中国广东肇庆

马上注册,结识高手,享用更多资源,轻松玩转三维网社区。

您需要 登录 才可以下载或查看,没有帐号?注册

x
本帖最后由 WWXGO 于 2017-3-4 11:12 编辑 4 w$ o- _2 @: u6 X
2 d# ~1 T0 T1 n3 y7 Y1 T
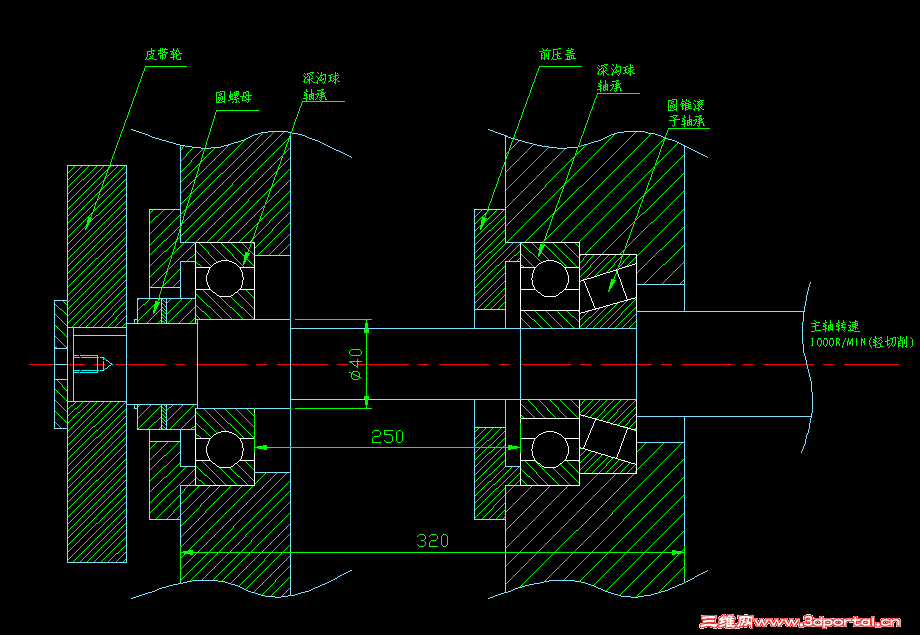
请大家看看这轴结构,轴承的用法有什么缺点?
, {* ?9 {! Y: A0 b& X: [
图片1.jpg
发表于 2017-3-4 22:36:09 | 显示全部楼层 来自: 中国河南焦作
是画着玩的,还是考试题?右边的一组轴承如何装到轴上?
发表于 2017-3-6 10:20:44 | 显示全部楼层 来自: 中国黑龙江哈尔滨
是呀,右边咋装呀,还有轴承的外形尺寸根本不是按照标准画的。

评分

参与人数 1三维币 +2 收起 理由
plc + 2 鼓励积极应答和参与的回帖。

查看全部评分

发表于 2017-3-6 16:41:57 | 显示全部楼层 来自: 中国江苏常州
这个图纸装配关系不明--无法装,无法拆; \: V& r# _9 g" }7 ~' {
轴承的使用原理不明--为什么要那个圆锥轴承?后面的球轴承为什么要变小?, o3 b3 f" A* O: g) T% D& `
轴承的润滑不明
5 K7 k2 |% U5 S主轴的结构原理不明
* a" A5 a8 Z5 a  E& s螺纹的紧固情况不好。
( b8 m8 S  n( k. {8 J
2 h+ f- X6 `; r+ r1 |

评分

参与人数 1三维币 +2 收起 理由
plc + 2 鼓励积极应答和参与的回帖。

查看全部评分

发表于 2017-3-18 15:40:13 | 显示全部楼层 来自: 中国陕西
圆锥轴承设计有问题
$ @, v  c5 M( @9 r1 b
发表于 2017-3-19 21:09:55 | 显示全部楼层 来自: 中国湖南
有点乱,不好评价。
发表于 2017-3-29 13:22:15 | 显示全部楼层 来自: 中国广东深圳
楼主的圆锥轴承是与右侧未画出的一个配对使用吗?
. Q4 A; N- C0 H2 y* g- q1 o圆锥轴承外径怎么不与向心轴承外径一样大(箱体加工性能不好)?为什么要用两种轴承组合使用?. R" A0 @2 V6 o( Y+ I
左端轴承装配直径减小,以便中间的轴承能顺利装配。
 楼主| 发表于 2017-4-1 14:20:45 | 显示全部楼层 来自: 中国广东肇庆
对不起大家,图弄错了。1 K9 H  F* O' C- N/ q% F# k
其实是想表达,
/ R9 J( p; f. q8 D, N3 r: q1.当两端使用深沟球轴承,同时单只使用圆锥滚子轴承,两种轴承组合使用的时候,是否合理;
* b) v& O! @8 q  g5 G$ m; l2.是否使用于有轴向力的情况;
; v8 [8 @% Y' T1 v4 h$ {3.以及单只使用圆锥滚子轴承时,间隙的调整问题?
发表于 2017-4-7 11:42:51 | 显示全部楼层 来自: 中国黑龙江哈尔滨
建议你重新画一张再问问题吧,1尺寸要按实际的零件尺寸来画。2用圆螺母固定,要在250尺寸的地方加个套,这样圆螺母才能紧死,要不轴承受力会不平衡。
发表于 2017-4-13 15:15:24 | 显示全部楼层 来自: 中国广西贵港
建议找一轴承手册学习一下。
发表回复
您需要登录后才可以回帖 登录 | 注册

本版积分规则


Licensed Copyright © 2016-2020 http://www.3dportal.cn/ All Rights Reserved 京 ICP备13008828号

小黑屋|手机版|Archiver|三维网 ( 京ICP备2023026364号-1 )

快速回复 返回顶部 返回列表